Lagerlokal, Bultgatan 16, Kungälv, Göteborg
- 216 m²
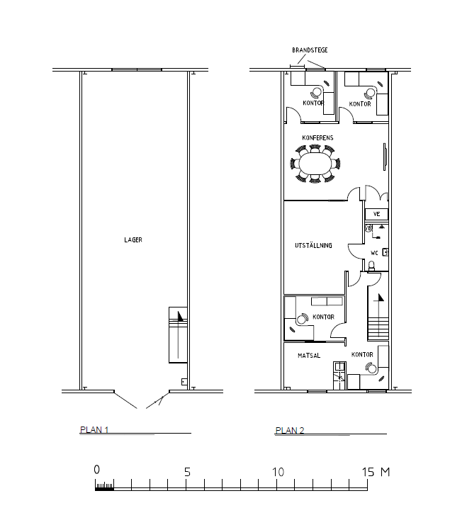
Lokalens egenskaper: Här erbjuds en praktisk och yteffektiv lokal med både kontor och lager-/industriyta. Kontorsdelen är belägen på entresolplan ov
Om lokalen
- Lokaltyp
- Lagerlokal
- Total yta
- 216 m²
- Adress
- Bultgatan 16
- Område
- Kungälv
- Kommun
- Göteborgs kommun
- Hiss
- Nej
- Objektsnummer
- 41959746
Beskrivning
Lokalens egenskaper:
Här erbjuds en praktisk och yteffektiv lokal med både kontor och lager-/industriyta. Kontorsdelen är belägen på entresolplan ovanför lokalen och lämpar sig väl för 2–4 arbetsplatser. Lokalen nås via gemensam trucklösning för lastning och lossning, vilket underlättar den dagliga hanteringen. Fastigheten erbjuder goda bekvämligheter såsom WC, dusch, fiberanslutning samt tillgång till gym. Observera att bilrelaterad verksamhet såsom bilförsäljning eller rekond ej är önskvärd.
Område:
Lokalen är centralt belägen i Rollsbo, ett etablerat verksamhetsområde med närhet till flera restauranger, butiker och träningsanläggningar. För den som uppskattar lunchpromenader finns även grönområden i närheten.
Kommunikationer:
Fastigheten har ett mycket bra skyltläge mot Bultgatan med hög trafik. Enkel tillgänglighet från E6 via Rollsbomotet samt goda parkeringsmöjligheter i direkt anslutning, inklusive laddplatser för elbil.
Snabbfakta:
-Gemensam truck för lastning och lossning
-Fiberanslutning
-Tillgång till gym
-Parkering ingår
-Elbilsladdning
-Bra skyltläge mot Bultgatan
Har ni frågor eller vill ni boka tid för en visning?
Välkommen att kontakta oss på 031-3504900 eller hej@loqalo.se



















