Kontor, Bergkällavägen 31C, Bredden, Sollentuna
- 160 m²
- Enligt överenskommelse
Trivsamt kontor i bra skick med pentry och konferensrum
Om lokalen
- Lokaltyper
- Kontor / Övrig lokal / Vårdlokal
- Total yta
- 160 m²
- Adress
- Bergkällavägen 31C
- Område
- Bredden
- Kommun
- Sollentuna kommun
- Byggår
- 1988
- Hiss
- Ja
- Våning
- 2 av 4
- Tillträde
- Enligt överenskommelse
- Objektsnummer
- 41993582
Beskrivning
Trivsamt kontor i bra skick med pentry och konferensrum
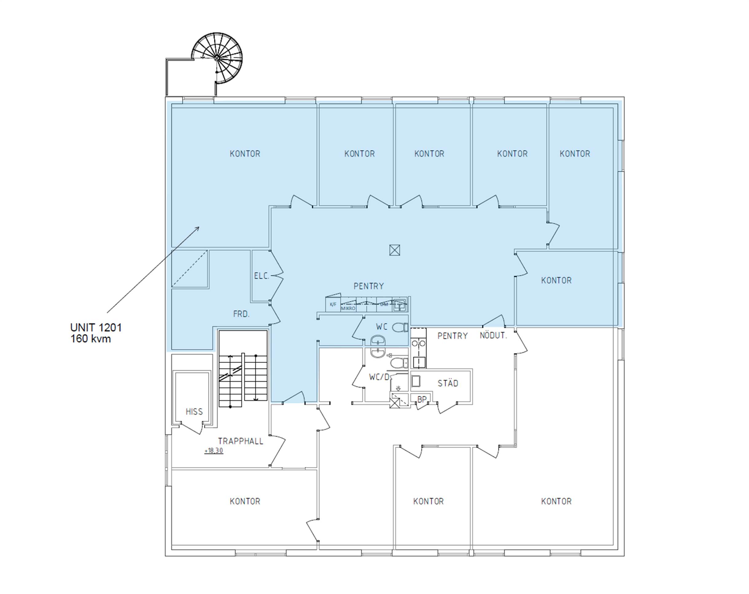
Just nu finns en ledig kontorslokal om 160 kvadratmeter på plan 2. Lokalen är i mycket bra skick och erbjuder en ljus och trevlig arbetsmiljö. Planlösningen består av flera kontorsrum i olika storlekar, ett konferensrum, matsal/pentry, förråd samt WC. Byggnaden har fri access från Bergkällavägen och det finns parkeringsplatser i direkt anslutning till lokalen.
Bredden (tidigare InfraCity) är ett välkänt och väletablerat företagsområde, strategiskt beläget mellan Stockholm och Arlanda. Härifrån når du E4an på bara ett par minuter med bil, centrala Stockholm på cirka 25 minuter och Arlanda på cirka 15 minuter. Området erbjuder en modern, flexibel och komplett företagspark med lättindustri, lager, handel och ett brett serviceutbud. Dessutom finns utmärkta kollektivtrafikförbindelser, med bussar som stannar precis utanför lokalen, vilket gör det enkelt att pendla både för anställda och besökare.
Omgivning
Flera grönområden finns för exempelvis en lunchpromenad eller löptur. Det planeras för ett bostadsområde i närheten, vilket kommer att göra området ännu mer levande med service dygnet runt.
Kommunikationer
Närsta hållplats "Bergkällavägen", bussar går regelbundet med anknytning till pendeltåg Rotebro, Kallhäll samt Upplands Väsby och till tunnelbanan Kista (blå linje). Med bil nås E4an inom ett par minuter, Stockholm C 25 min, Uppsala 35 min och Arlanda på ca 15 minuter.
Planlösning
Se bilder/PDF.
Parkering
Parkeringsplatser finns på fastigheten
Service
Brett serviceutbud i form av köpcenter, restauranger, matbutiker, gym, företagshälsovård, tandläkare, apotek, butiker, hotell etc.
Vägbeskrivning
Nära anslutning till E4
Skyltläge
Det tillgängliga läget bredvid E4:an gör det inte bara lättåtkomligt, utan ger också en hög synlighet och ett fantastiskt skyltläge. Som företag är Bredden därför en utmärkt plats att etablera sig på.
Närliggande företag
Bauhaus, SATS, Tesla, Swedbank, Lambertsson, Cramo, Mekonomen













