Lagerlokal, Handelsgatan 9, Bista, Örebro
- 780 m²
- 2026-05-01.
Lagerlokal med stor potential i Bista industriområde
Om lokalen
- Lokaltyper
- Lagerlokal / Kontor
- Total yta
- 780 m²
- Adress
- Handelsgatan 9
- Område
- Bista
- Kommun
- Örebro kommun
- Byggår
- 1970
- Våning
- 1
- Tillträde
- 2026-05-01.
- Objektsnummer
- 41996164
Beskrivning
Lagerlokal med stor potential i Bista industriområde
Cirka 3 kilometer sydväst om centrala Örebro, erbjuds denna yteffektiva lagerlokal om cirka 780 kvm. Lokalen har en takhöjd om 5,5 meter och nås via tre lasthus samt en egen entré. Inför inflytt kommer de tre lasthusen och portarna att bytas ut, vilket ytterligare förbättrar lokalens funktionalitet och logistikflöde.
Lokalen omfattar mindre kontorsrum, flera WC, två separata omklädningsrum samt en separat dusch. I dagsläget finns inget pentry, men detta kan installeras och anpassas efter hyresgästens behov.
Fastigheten är belägen på ett inhägnat område med stora rangerytor och fri parkering i direkt anslutning till lokalerna, vilket ger både god tillgänglighet och trygghet.
Bista är ett etablerat industriområde med mycket gott logistikläge nära E18 och E20. Området har goda kollektivtrafikförbindelser samt cykel- och gångvägar till centrala Örebro. Enklare service såsom lunchrestauranger finns i närområdet och centrala Örebros fulla serviceutbud nås på kort avstånd.
Kommunikationer
Goda kollektivtrafikförbindelser med buss till centrala Örebro
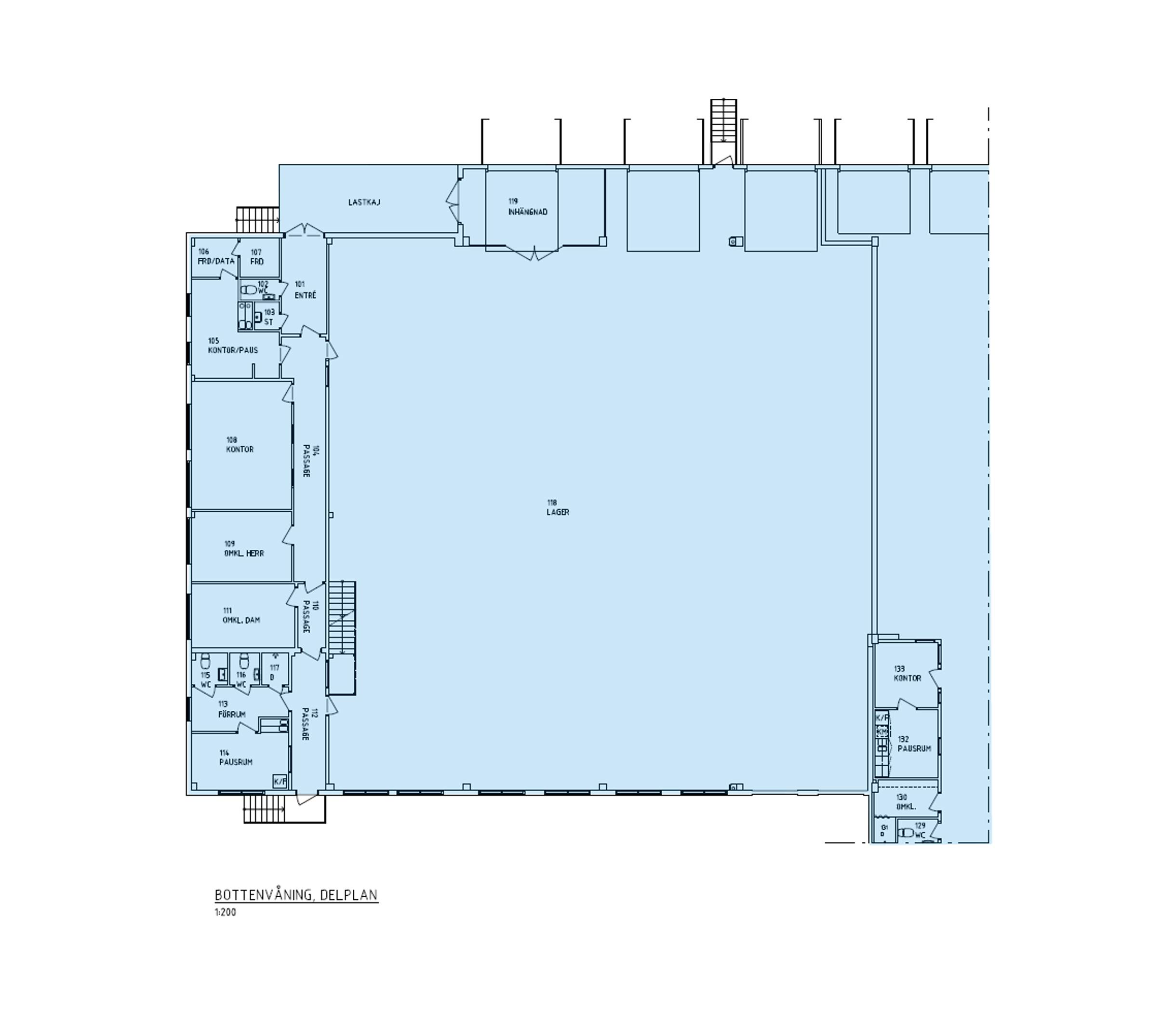
Planlösning
Se planritning bland bilder/ladda ned PDF.
Parkering
Fri parkering
Service
Enklare service med lunchservering finns i närområdet och fullt serviceutbud finns inom räckhåll i centrala Örebro
Vägbeskrivning
Direkt anslutning till E18 och E20
Närliggande företag
DSV Road AB, PostNord, XXL Logistics, Swedol Logistikcenter AB och Schenker AB












