Butikslokal, Datavägen 24, Högsbo/Sisjön, Askim
- 769 m²
- 2025-10-01
Butikslokal i markplan med bra skyltläge – Datavägen 24, Sisjön
Om lokalen
- Lokaltyp
- Butikslokal
- Total yta
- 769 m²
- Adress
- Datavägen 24
- Område
- Högsbo/Sisjön
- Kommun
- Göteborgs kommun
- Byggår
- 1990
- Hiss
- Ja
- Våning
- 1
- Tillträde
- 2025-10-01
- Objektsnummer
- 41992427
Beskrivning
Välkommen till en rymlig och lättillgänglig butikslokal om 769 kvm på Datavägen 24 – i Sisjöns expansiva handelsområde. Lokalen ligger i markplan och har en egen butiksentré från gatan vilket ger god synlighet och enkel åtkomst för både kunder och leveranser.
Den största delen av lokalen utgörs av en öppen butiksyta med stora möjligheter till anpassning efter verksamhetens behov. I bakkant finns ett mindre lagerutrymme med separat port för smidig in- och utlastning. Det finns även personalutrymmen inklusive pentry, wc och enklare kontorsrum.
Området – Sisjön
Sisjön är ett av Göteborgs mest välbesökta handelsområden, strategiskt beläget nära både centrala Göteborg och kranskommuner. Här finns ett brett utbud av detaljhandel, service och kontor med etablerade aktörer som Bauhaus, Elgiganten, COOP, Systembolaget, Jula, RUSTA och många fler. Området är lätt att nå via bil och kollektivtrafik, med närhet till Söderleden och goda parkeringsmöjligheter.
Omgivning
Sisjön har utvecklats och blivit ett starkt handelsområde med nybyggda varuhus så som Bauhaus.
Kommunikationer
Gott om parkeringsplatser intill fastigheten. Goda möjligheter att åka kollektivt med busshållplats ca 300 m från fastigheten, som trafikeras av flera linjer som gör det enkelt att ta sig in till centrala Göteborg eller kranskommunerna.
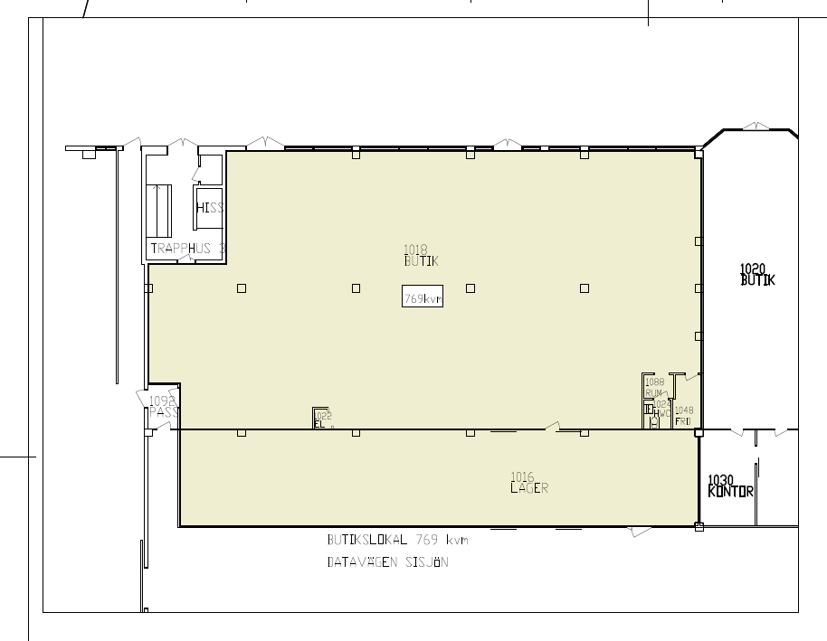
Planlösning
Lokalen om 769 kvm har en öppen och flexibel butiksyta i markplan med egen butiksentré. I bakkant finns ett mindre lager med separat port för in- och utlastning. Lokalen rymmer även personalutrymmen med pentry och wc samt ett enklare kontorsrum.
Service
Sisjön handelsområdet har växt och därmed finns all tänkbar service.
Övrigt
Kontorsfastighet med viss handel butikslokaler. Byggnaden består av tre våningar med butikslokaler på bottenvåningen och kontor på vån 1 och 2.













