Bultgatan 10, Nacksta, Sundsvall
Nyfosa Sundsvall
Annons plus1 382–3 000 m²
Hyra: Ej angiven
Tillträde: Enligt överenskommelse
Flexibla kontors-, lager- industri- eller utbildningslokaler i Nacksta i Sundsvall
I Nacksta företagsområde, i nära anslutning till Bergsgatan/E14 kan vi erbjuda dessa rymliga och flexibla lokaler med en mängd olika möjliga användningsområden, med mycket goda möjligheter till anpassning för att möta tillträdande hyresgästs behov och önskemål.
Ytorna kan exempelvis anpassas till rena kontorsytor, lager med butik eller som produktionsytor för lättare industri.
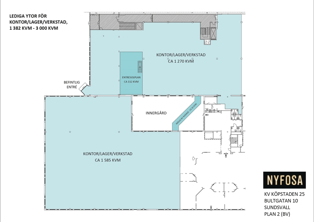
Lokalytorna ligger på plan 2, vilket är markplan vid den del av byggnaden där entrén till lokalerna finns, och det finns möjligheter att tillskapa fler entréer vid behov. Ytorna kan hyras såväl som en sammanhängande enhet om ca 3 000 kvm, eller delas upp i två stora ytor enligt föreslagen uppdelning som i bifogad planritning.
I ytan om ca 1 270 kvm finns även en extra yta i form av ett entresolplan om ca 112 kvm. Det finns även möjlighet att hyra ytterligare förrådsytor och omklädningsrum i fastighetens nedervåning, vilken nås med såväl trappor som hiss.
Här finns ypperliga möjligheter att anpassa planlösningar, ytskikt, tekniska installationer, m.m, för att skapa moderna och representativa lokaler att verka och trivas i för såväl medarbetare som besökare till ert företag.
Lokaltyper
Typ: Kontor, Butikslokal, Produktionslokal, Lagerlokal
Minsta storlek: 1382 m²
Största storlek: 3000 m²
Våningsplan: 0
Byggnad
Byggår: 1975
Villkor lokal
Tillträde: Enligt överenskommelse
Omgivning
Nacksta företagsområde ligger strategiskt placerat längs med Bergsgatan/E14, vilket ger utmärkt tillgänglighet. Området präglas i hög grad av företagande där bl.a. flera företag är verksamma inom fordonsindustrin, med Bilbolaget som en av de tongivande aktörerna.
Parkeringsmöjlighet: Det finns gott om parkeringsplatser med motorvärmare intill lokalen, och vid behov kan även fler p-platser tillskapas.
Närservice: I närområdet finns bl.a. flera bensinstationer, gym, Coop, Ica Kvantum, samt ett flertal restauranger med bl.a. thaikök, wok & Biteline.
Kommunikation
Det är mycket smidigt att ta sig till fastigheten genom dess omedelbara närhet till Bergsgatan/E14. Endast 200 meter från fastigheten finns hållplats för busslinjerna 2 (Navet/Birsta), 141 (Matfors) samt 191 (Ånge), och till den nyrenoverade tågstationen Sundsvall Västra är det ca 600 meter.
Planlösning
Ytorna i lokalerna ligger till övervägande del på det övre våningsplanet, vilket är markplan, i de huskroppar som bl.a. har fasad mot Bultgatan och den stora gårdsplanen med parkeringar.
Under det karakteristiska sågtaket med sin utpräglade äldre industrikänsla finns även ett entresolplan om cirka 112 kvm, och det finns även möjligheter att hyra förrådsytor och omklädningsrum i källarvåningen.
Ytorna har i dagsläget en varierad planlösning anpassad efter tidigare hyresgästs verksamhet, och ytorna anpassas med fördel för att passa nya former av verksamhet i stället.
Annonsinformation
Publicerad: 2026-02-16
Objektsnummer: 41996613

















