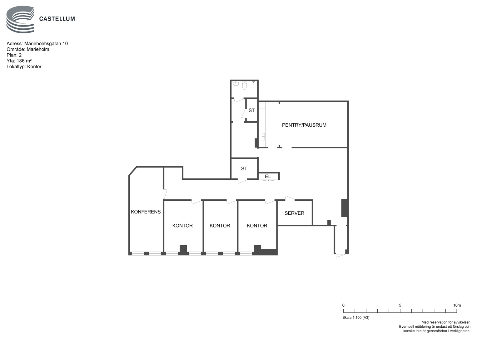
Kontor, Marieholmsgatan 10 B, Marieholm, Göteborg
- 220 m²
- 2025-07-01
Rumsindelat kontor på Marieholmsgatan 10 – 220 kvm
Om lokalen
- Lokaltyp
- Kontor
- Total yta
- 220 m²
- Adress
- Marieholmsgatan 10 B
- Område
- Marieholm
- Kommun
- Göteborgs kommun
- Byggår
- 1980
- Hiss
- Ja
- Våning
- 2
- Tillträde
- 2025-07-01
- Objektsnummer
- 41943745
Beskrivning
Välkommen till ett trevligt och funktionellt kontor på Marieholmsgatan 10! Denna lokal på 220 kvm är belägen på andra våningen av tre och erbjuder en rumsindelad planlösning som passar företag med behov av separata arbetsrum och mötesytor. Kontoret kan hyras i befintligt skick eller anpassas efter hyresgästens önskemål för att skapa en optimal arbetsmiljö.
För den som behöver extra utrymme finns även möjlighet att hyra ett lager om 100 kvm i nära anslutning till lokalen.
Marieholm är ett expansivt område med utmärkt tillgänglighet, endast några minuter från Göteborgs innerstad. Området erbjuder smidig anslutning till E45 och E6, vilket gör det lätt för både medarbetare och kunder att ta sig hit. Dessutom finns goda kollektivtrafikförbindelser och närhet till Göta älv, vilket ger en trivsam omgivning.
Här får du en kombination av närhet till city och smidig logistik – perfekt för företag som söker en praktisk, kostnadseffektiv och välbelägen arbetsplats.
Kontakta gärna mig om du vill boka en visning!
Omgivning
Vår fastighet ligger nära Göteborgs centrum och de stora trafiklederna. I området finns det bl. a. småverkstäder, kontor och grossister.
Kommunikationer
Hållplats, Vassgatan, för linjetrafik finns precis utanför fastigheten där buss 59, varje halvtimme, stannar/passerar. Det tar mindre än 10 min till Nils Ericsson Terminalen.
Planlösning
Lokalen på 220 kvm har en rumsindelad planlösning med flera separata kontorsrum och mötesyta, vilket passar företag som behöver avskilda arbetsplatser. Den kan hyras i befintligt skick eller anpassas efter hyresgästens behov.
Möjlighet att hyra till ett lager om 100 kvm finns.
Parkering
Parkering finns att hyra på området.
Service
Lunchrestaurang finns på området.
Övrigt
Fastigheten, som består av ett antal olika byggnader, ligger i industriområdet Marieholm.










