S:t Persgatan 27, Industrilandskapet, Norrköping
Corem Property Group
410 m²
Hyra: Ej angiven
Tillträde: Ej angivet
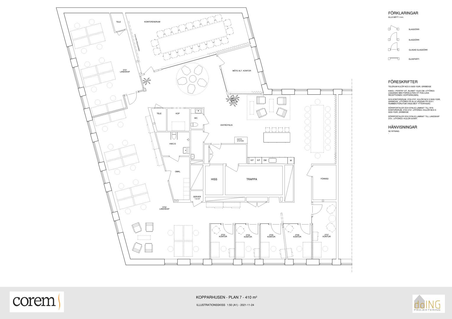
Toppmodernt kontor med härlig rymd
Nu finns en unik möjlighet att hyra en fantastisk lokal belägen på sjunde våningen med utsikt över stadens tak. Planlösningen består av ett öppet kontorslandskap och flera enskilda kontor, konferens- och samtalsrum. Lokalen har påkostade materialval med modern känsla. Här finns stora, öppna ytor och en härlig rymd. Du får också tillgång till fastighetens innergård med utemöbler och mysig belysning. Kopparhusen är miljöcertifierad enligt BREEM In-Use Very Good.
Kontakta oss gärna för mer information eller för att boka en visning.
Om lokalen
- Kommun
- Norrköpings kommun
- Tillgänglighet
- Enligt överenskommelse
- Objektsnummer
- 41995710
Omgivning
Industrilandskapet i Norrköping sträcker sig längs Motala ström och ligger intill vackra Åbackarna. Området domineras av strömmens forsande vatten och kringliggande industribyggnader som bevarats exteriört och idag är anpassade för annan verksamhet. Här befinner du dig i direkt närhet till idrottsarena, Folkets Park samt Campus Norrköping med tillhörande Linköpings Universitet. I området finns all önskvärd service så som gym, butiker, restauranger, frisör och apotek.
Parkering
I fastighetens gatuplan finns både besöksparkering och förhyrda platser.







![5736[1].jpg 5736[1].jpg](https://static.lokalguiden.se/filter/976x520,,90,cover/uploads/customer/113/b125c13e7267fb288c20024a8c233d1a.jpg)



