Kontor, Säve flygplatsväg 25, Säve, Björlanda
- 478 m²
- 2025-04-01
Modernt kontor med utsikt över flygplatsens landningsbana
Om lokalen
- Lokaltyp
- Kontor
- Total yta
- 478 m²
- Adress
- Säve flygplatsväg 25
- Område
- Säve
- Kommun
- Göteborgs kommun
- Byggår
- 2013
- Hiss
- Nej
- Våning
- 3
- Tillträde
- 2025-04-01
- Objektsnummer
- 41985051
Beskrivning
Ljust och trevligt kontor men stora fönster ut mot landningsbanan.
Öppna kontorsytor samt enskilda kontorsrum och inbjudande gemensamhetsytor. Planlösningen kan anpassas efter behov och önskemål för att få den bästa arbetsmiljön för ert företag. Skapa ett kontor att trivs i. Vid anpassningar för vi en tät dialog med er, arkitet och projektledare. Vi ombyggnaf försöker vi alltid ha återbruk och hållbarhet i åtanke.
Välkommen att kontakta oss för mer info och visning!
Omgivning
Nordic Hub Säve! Säve utvecklingsområde byter namn till Nordic Hub Säve. Det gamla flygplatsområdet omfattar närmare 3 miljoner kvadratmeter mark och ligger i ett av Nordens bästa logistiklägen, i en region som är världsledande inom elektromobilitet. Här möts innovation och hållbarhet för att driva framtidens affärer inom elektromobilitet och logistik. Avståndet till Göteborgs Hamn är bara ca 15 min. Göteborg och Västsverige är motorn i omställningen till elektrifierade fordon och tjugo procent av all utrikeshandel går via Göteborgs Hamn.
För den långsiktiga utvecklingen av området krävs nya detaljplaner. Tidplanen är att kunna starta om ett par år, utvecklingsarbete kommer pågå under många år framåt, kanske för alltid för ur ett perspektiv blir det aldrig färdigt. Vi kommer alltid att både vilja och behöva utveckla området över tid tillsammans med våra partners. Det pågår redan idag ett samarbete mellan SEEL, Chalmers och RISE, där det drivs forsknings- och utvecklingsarbete i absolut världsklass
I dagsläget har vi ca 65 st olika företag och verksamheter i området. Ett flertal av de hyresgäster som bedriver verksamhet i området är logistikföretag samt även företag inom fordonsindustrin, ett par av dessa med stark koppling till elektromobilitet. Vi har även flygverksamhet i form av helikopterflyg - ambulanshelikopter, sjöräddningshelikopter och polishelikopter som utgår härifrån. I området arbetar totalt ca 400 st personer i de olika verksamheterna. Utvecklingen av Säve skulle på sikt kunna tillföra mer än 7 000 nya jobb här på plats.
Kommunikationer
Med buss nr 36 tar man sig enkelt och smidigt mellan Hjalmar Brantingsplatsen och Säve Flygplats.
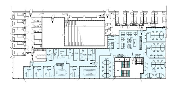
Planlösning
I dagsläget består lokalen av en blandad planlösning, öppna ytor och kontorsrum.
Parkering
Parkeringsmöjligheter vid fastigheten
Karta
Bilder på lokalen
Exteriör Ritning Säve Flygplats väg 478 km (1) 13080238_9-328-16_photo_web 13080238_10-328-16_photo_web Säve Flygplatsväg 478 kvm 13080238_3-328-16_photo_web 13080238_7-328-16_photo_web 13080238_8-328-16_photo_web 13080238_4-328-16_photo_web 13080238_2-328-16_photo_web 13080238_5-328-16_photo_web 13080238_6-328-16_photo_web Hotellet















