Grustagsvägen 2, Ältaberg, Älta

Mileway Sweden AB

Annons max

1 888

Building 1 Streamline Icon: https://streamlinehq.comKontorWarehouse Storage 2 Streamline Icon: https://streamlinehq.comLagerlokalCustomer Relationship Management Self Service Wrench Streamline Icon: https://streamlinehq.comVerkstad

Hyra: Ej angiven

Tillträde: Enligt överenskommelse

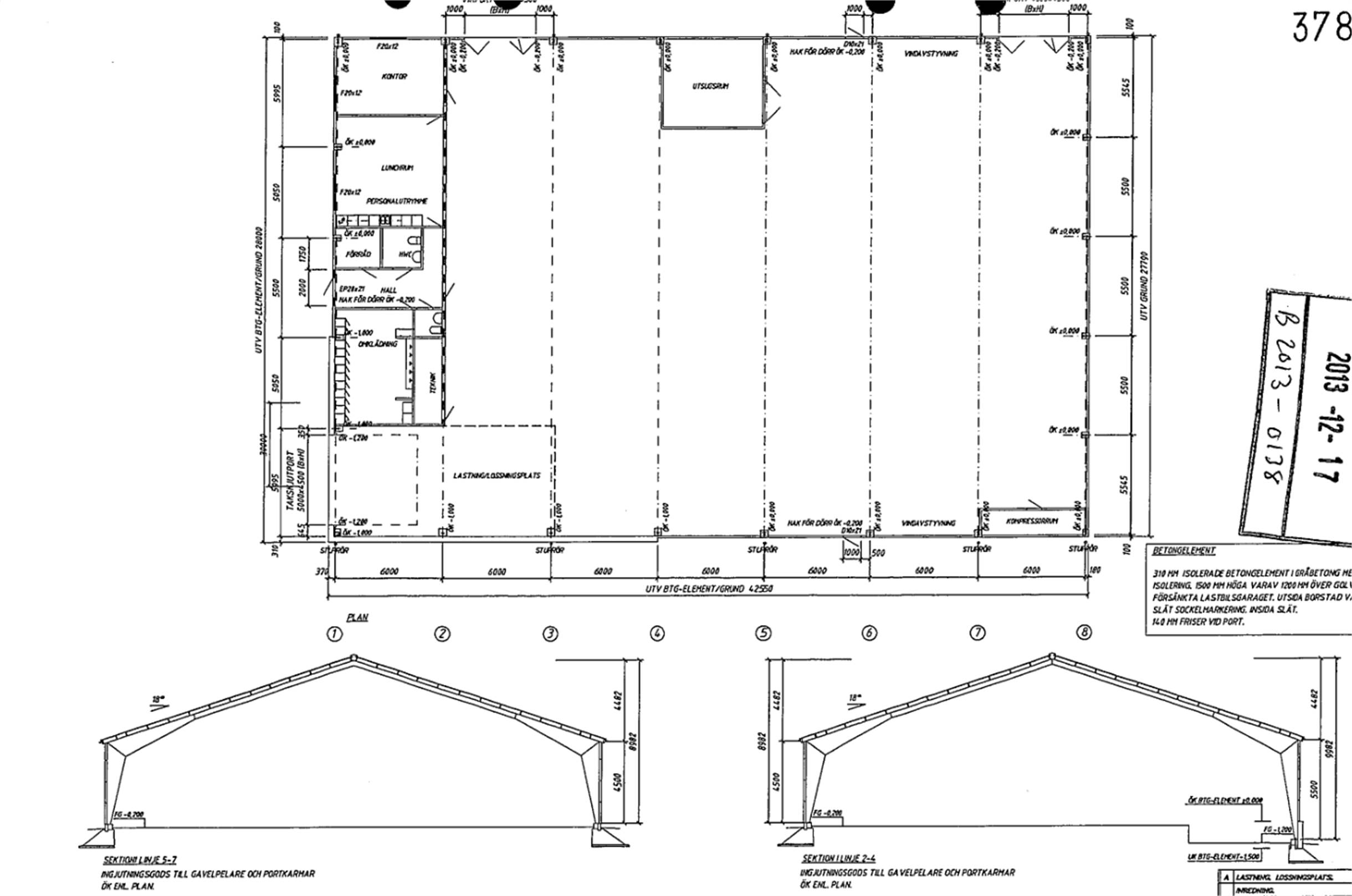
Modern lagerfastighet i attraktiva Ältaberg

Välkommen till en modern och välplanerad industrifastighet som erbjuder 1 888 kvm yta anpassad för både effektiv lagerhållning och produktion.

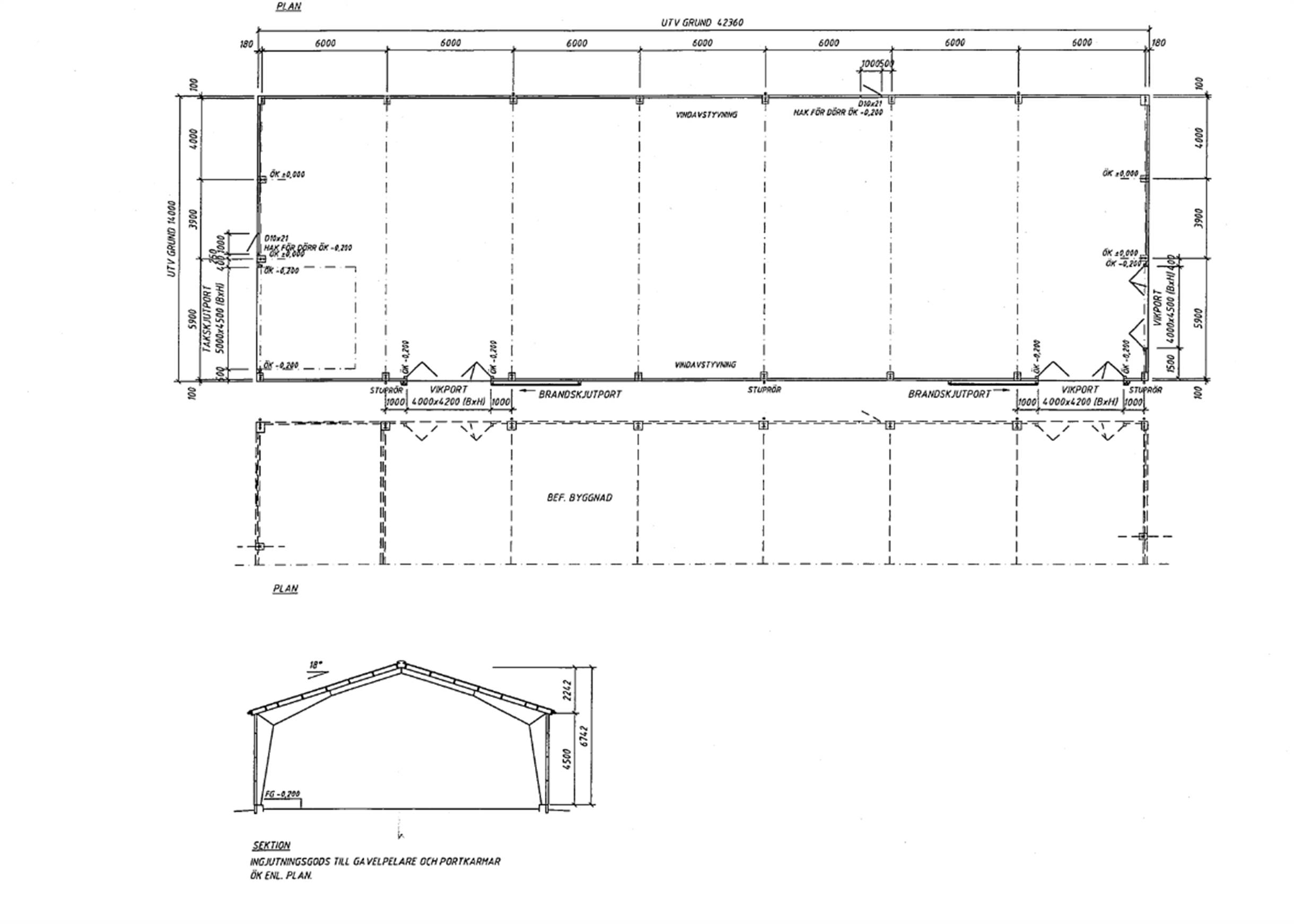
• Lagerdelen har en generös takhöjd på 5 meter och nås smidigt via två markportar, vilket möjliggör enkel in- och utlastning.

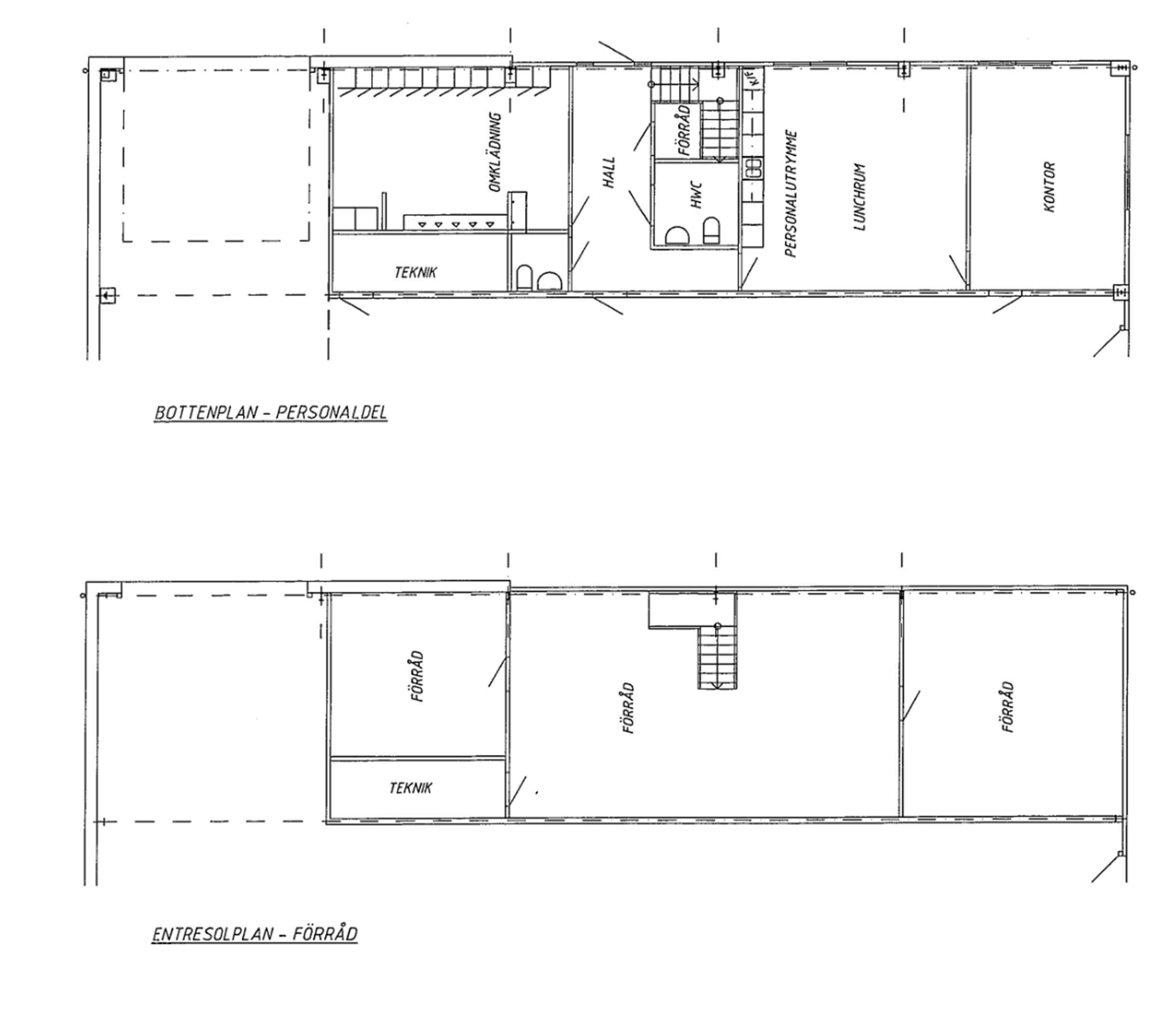
• Kontorsdel samt fräscha personalutrymmen med kök/pentry, dusch, WC och omklädningsrum ger en trivsam arbetsmiljö.

• Fastigheten är belägen på ett delvis inhägnat område med anslutande parkeringsplatser.

Höjdpunkter

• 1 888 kvm lager och kontor

• Två markportar och 5 m takhöjd

• Moderna personalutrymmen

• Parkeringsplatser på området

• Snabbt växande område med god service

• Närhet till väg 73 och centrala Stockholm

Strategiskt läge i Nacka

Fastigheten ligger i Ältaberg, cirka 15 km sydost om centrala Stockholm. Här finns utmärkta kommunikationer med närhet till motorvägar mot Nacka, Tyresö och Nynäsvägen samt goda kollektivtrafikförbindelser.

Ältaberg är ett snabbt växande industriområde som lockar många småindustrier och kontorsverksamheter. I närheten finns även handel, lunchrestauranger och butiker. Den strategiska placeringen mellan Älta och Tyresö ger närhet till service i både Älta Centrum och Tyresö Centrum.

Egenskaper

Bathroom Shower Streamline Icon: https://streamlinehq.com Dusch Toilet Sign 2 Streamline Icon: https://streamlinehq.com WC Parking P 1 Streamline Icon: https://streamlinehq.com Parkering Garage Door Closed Streamline Icon: https://streamlinehq.com LastportLastbrygga Meeting Remote Streamline Icon: https://streamlinehq.com meeting-remoteMötesrum School Locker Closed Streamline Icon: https://streamlinehq.com school-locker-closedOmklädningsrum Parking P 1 Streamline Icon: https://streamlinehq.com Besöksparkering Kitchen Storage Streamline Icon: https://streamlinehq.com Kök / pentry

Om lokalen

Kommun
Nacka kommun
Byggår
2013
Våning
1
Tillträde
Enligt överenskommelse
Objektsnummer
41979179

Omgivning

Nära till Storkällans naturreservat

Kommunikationer

Direkt anslutning till väg 73 och goda kollektivtrafikförbindelser

Planlösning

Se bilder.

Parkering

Fri parkering

Service

Älta centrum samt Tyresö centrum

Vägbeskrivning

Direkt anslutning till väg 73

Skyltläge

Bra skyltläge mot Grustagsvägen

Närliggande företag

Carglass Sweden, Speedy Bilservice Älta, Badrumsverket och MECA Bilservice

Karta

Bilder på lokalen