Ritarslingan 18, Arninge
Bergudden Smygvinkeln 11 AB
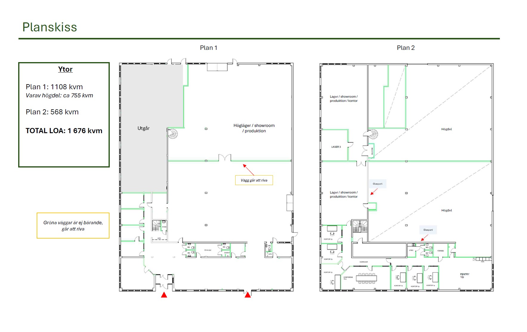
Annons plus1 676 m²
Hyra: Ej angiven
Tillträde: Enligt ö.k
EGEN BYGGNAD NYRENOVERAS - FLEXIBEL PLANLÖSNING - UPP TILL 6 METER I TAKHÖJD - SHOWROOM / PRODUKTION / LAGER / LOGISTIK / KONTOR
Möjlighet att anpassa flexibla lokaler i Arninge företagsområde. Byggnaden erbjuder ytor som lämpar sig perfekt för produktion, försäljning, lätt industri eller showroom.
Fastigheten genomgår omfattande renovering och hyresgäster har själva möjlighet att påverka ytorna.
Med en takhöjd på upp till 6 meter och en smart planlösning finns stora möjligheter att anpassa lokalerna efter din verksamhets behov. Fastigheten har flera portar för smidig in- och utlastning samt goda parkeringsmöjligheter direkt utanför.
Kort om lokalen:
Takhöjd upp till 6 meter
Flexibla ytor för lager, produktion eller showroom
Portar för enkel lastning och lossning
Bra parkeringsmöjligheter
Närhet till E18 och Roslagsbanan för smidiga transporter
Arninge är ett område i stark tillväxt med bra serviceutbud och utmärkta kommunikationer. Här sitter du strategiskt för att nå hela norra Storstockholm.
Lokaltyper
Typ: Kontor, Butikslokal, Produktionslokal, Lagerlokal, Övrig lokal, Verkstad, Träningslokal / gym, Livsmedelslokal, Kontor / Lager, Logistiklokal
Minsta storlek: 1676 m²
Största storlek: 1676 m²
Takhöjd: 600
Villkor lokal
Tillträde: Enligt ö.k
Omgivning
Parkeringsmöjlighet: Ja
Annonsinformation
Publicerad: 2026-04-09
Objektsnummer: 41998029








