Verkstad, Rörvägen 4, Jordbro-Haninge, Jordbro
- 237 m²
- Enligt överenskommelse
Möjlighet att tillskapa lager- och produktionsytor enligt era önskemål!
Om lokalen
- Lokaltyper
- Verkstad / Lagerlokal
- Total yta
- 237 m²
- Adress
- Rörvägen 4
- Område
- Jordbro-Haninge
- Kommun
- Haninge kommun
- Byggår
- 1983
- Hiss
- Ja
- Tillträde
- Enligt överenskommelse
- Objektsnummer
- 41986810
Beskrivning
Möjlighet att tillskapa lager- och produktionsytor enligt era önskemål!
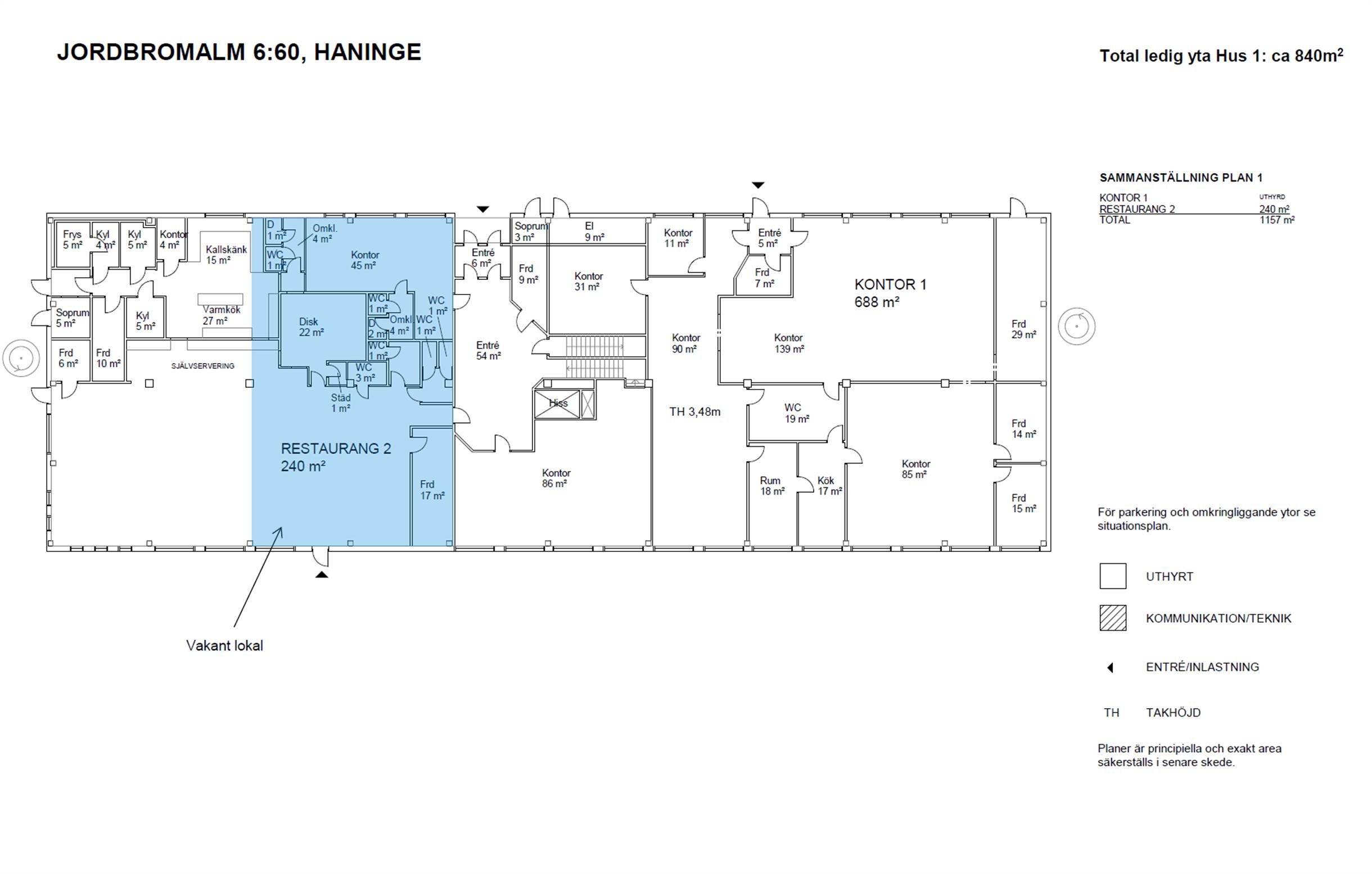
Nu finns möjligheten att hyra lager om 237 kvm. Vid behov finns även kontorsyta på plan 1 om ca 600 kvm.
Lokalen, en tidigare restaurang som nu byggs om till lager, erbjuder även möjlighet att anpassa lager- och produktionsytor efter era önskemål. Wc, dusch och omklädningsrum finns tillgängliga.
Byggnaden har fri access mot Rörvägen och erbjuder goda parkeringsmöjligheter på fastigheten.
Jordbro ligger cirka 25 kilometer söder om centrala Stockholm, på ett fantastiskt läge med nära anslutning till riksväg 73. Riksväg 73 går från Nynäshamn genom Jordbro och sträcker sig till centrala Stockholm, där ett nätverk av trafikleder över hela landet knyts samman. Fastigheten är belägen i Jordbro Företagspark som är ett av Stockholmsregionens största och mest expansiva industriområden. Området präglas av industri- och logistikverksamheter och hel del handel med stora aktörer. Serviceutbud med ett flertal restauranger, matvarubutik, gym och apotek finns i närområdet. Det finns goda kollektivtrafikförbindelser med buss och pendel till Stockholm med omnejd.
Kommunikationer
Goda kollektivtrafikförbindelser med buss och pendel till Stockholm med omnejd
Planlösning
Finns bland bilder/PDF.
Parkering
Parkeringsplatser i anslutning till lokalen
Service
Lokalt serviceutbud med bland annat lunchrestauranger, gym och apotek
Vägbeskrivning
Nära anslutning till riksväg 73
Närliggande företag
Coca-Cola, Bring, TD TechData, Frigoscandia, Dagab, Åhléns och Green Cargo










