Kontor, Norra Långebergsgatan 4, Högsbo/Sisjön, Göteborg
- 193 m²
- 2025-11-01
Liten kombinationslokal lager och kontor
Om lokalen
- Lokaltyper
- Kontor / Lagerlokal
- Total yta
- 193 m²
- Adress
- Norra Långebergsgatan 4
- Område
- Högsbo/Sisjön
- Kommun
- Göteborgs kommun
- Byggår
- 1980
- Hiss
- Nej
- Våning
- 1
- Tillträde
- 2025-11-01
- Objektsnummer
- 41956509
Beskrivning
Välkommen till en enkel lagerlokal med kontorsrum, lagret har en markentré med dubbeldörr 2x2 m samt ett halvt lastintag in till lokalens entrésol.
Till Lastintaget kan man flytta trappan för att få bättre framkomlighet vid leverans.
Välkommen att kontakta oss för mer info och visning!
Omgivning
Närområdet kring fastigheten domineras av bilfirmor som sitter i moderna fastigheter med hög standard. Bra exponeringsläge ut mot leden. En ny avfart har kompletterat motet just intill vår fastighet vilket ger goda kommunikationer med bil.
Kommunikationer
Goda möjligheter att resa med kollektivtrafik. Hållplatsen ligger ca 150 m från fastigheten och trafikeras av flera linjer.
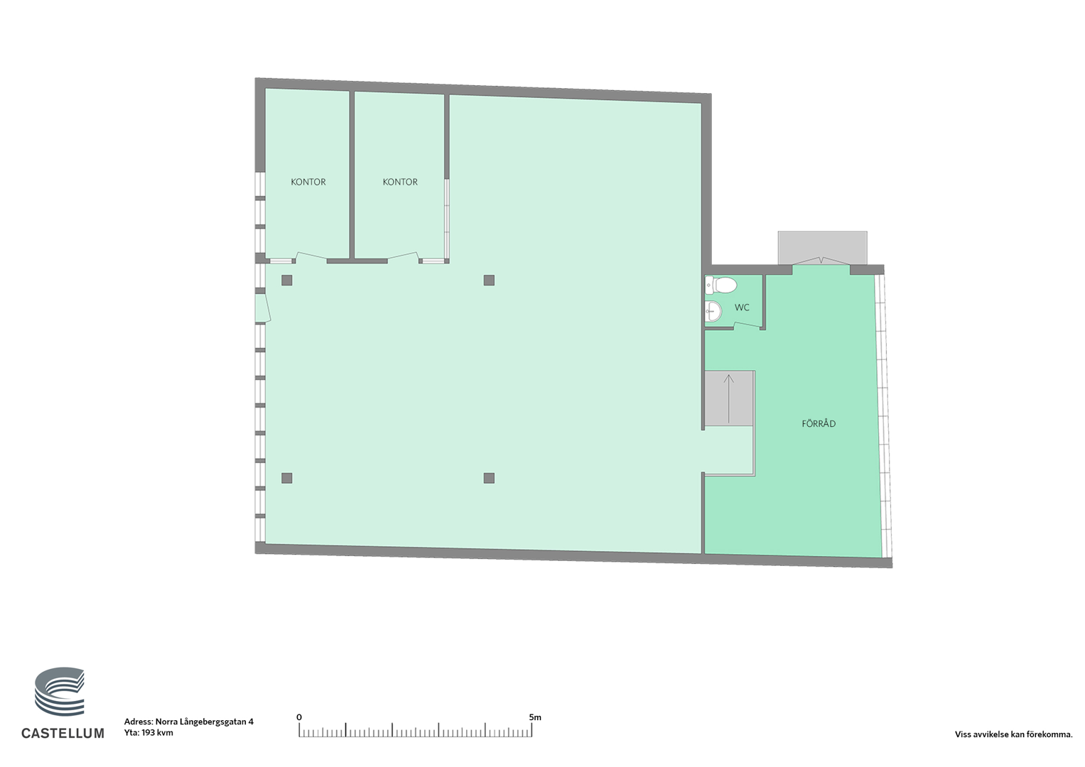
Planlösning
En stor öppen lageryta samt kontorsrum.
Service
Restaurang i grannfastigheten och närhet till Köpcenter 421 med Ica Maxi, butiker och shopping
Övrigt
Kontorshus i två våningar med stor parkering för hyresgästerna på framsidan, samt en inhägnad markyta för parkering på baksidan.









