Gustaf Dalénsgatan 19, Norra Göteborg och Hisingen, Göteborg
loqalo AB
208–837 m²
Hyra: Ej angiven
Tillträde: Ej angivet
Lokalens egenskaper:
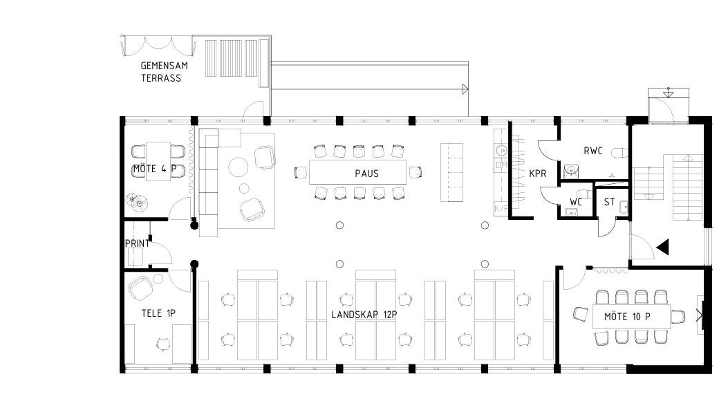
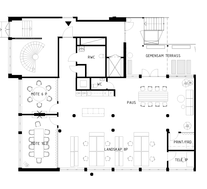
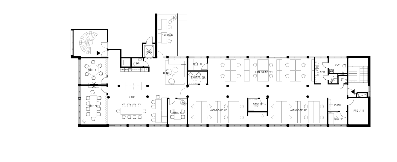
Nu erbjuds en helt nyrenoverad kontorslokal i två plan om totalt 837 kvm, med möjlighet att dela ned ytan till 208 kvm. En ny hyresgäst kan vara med och påverka planlösning och utformning, vilket skapar en unik möjlighet att skräddarsy kontoret efter verksamhetens arbetssätt och behov.
Lokalen är ljus med mycket fönster och bra takhöjder. WC och RWC med dusch finns i båda våningsplanen och är nyrenoverade med smakfullt kakel och klinker. Inomhusmiljön är modern med god ventilation och kyld tilluft för bästa komfort.
Ni når lokalen via två olika trapphus, via hiss, eller via lastbrygga/uteplats. På övre plan finns dessutom en trevlig balkong. Lokalen är under uppbyggnad och färdigställs efter avstämning med ny hyresgäst (förslag på planlösning finns bifogat).
Område:
Lokalen har ett mycket bra läge på Hisingen, centralt vid Backaplan, med stort utbud av service runt hörnet. Här finns lunchrestauranger, gym och Backaplans handelsområde på ett stenkast. Dessutom ligger lokalen nära Hisingsparken, Göteborgs största parkområde – perfekt för lunchpromenader och återhämtning under dagen.
Kommunikationer:
Kommunikationerna är utmärkta. Busshållplatsen Swedenborgsplatsen ligger bara några meter från fastigheten med täta avgångar. Med buss 17 tar du dig till Hjalmar Brantingsplatsen på cirka 3 minuter och till Nordstan på cirka 8 minuter. Läget är även mycket bra för bilpendlare med snabb access till större trafikleder.
Parkering finns att hyra på fastigheten, även med möjlighet till elbilsladdning.
Snabbfakta:
• Adress: Gustaf Dalénsgatan 19, 417 05 Göteborg
• Område: Hisingen / Backaplan
• Yta: 208–837 kvm (total yta 837 kvm, kan delas ned till 208 kvm)
• Kontor i två plan
• Helt nyrenoverad – möjlighet att påverka planlösning och utformning
• Ljus lokal med mycket fönster och bra takhöjd
• Nyrenoverade WC samt RWC med dusch på båda plan
• God ventilation och kyld tilluft
• Access via två trapphus, hiss samt lastbrygga/uteplats
• Balkong i anslutning till övre plan
• Busshållplats Swedenborgsplatsen precis intill
• Parkering finns att hyra (inkl. elbilsladdning)
Har ni frågor eller vill ni boka en visning?
Välkommen att kontakta oss på 031-350 49 00 eller hej@loqalo.se!
Om lokalen
- Kommun
- Göteborgs kommun
- Hiss
- Nej
- Objektsnummer
- 41994805













