Fiskhallsvägen 18, Årsta, Stockholm

Svenska Hus AB

Annons max

520

Wrench Streamline Icon: https://streamlinehq.comProduktionslokalWarehouse Storage 2 Streamline Icon: https://streamlinehq.comLagerlokalÖvrig lokal

Hyra: Ej angiven

Tillträde: Ej angivet

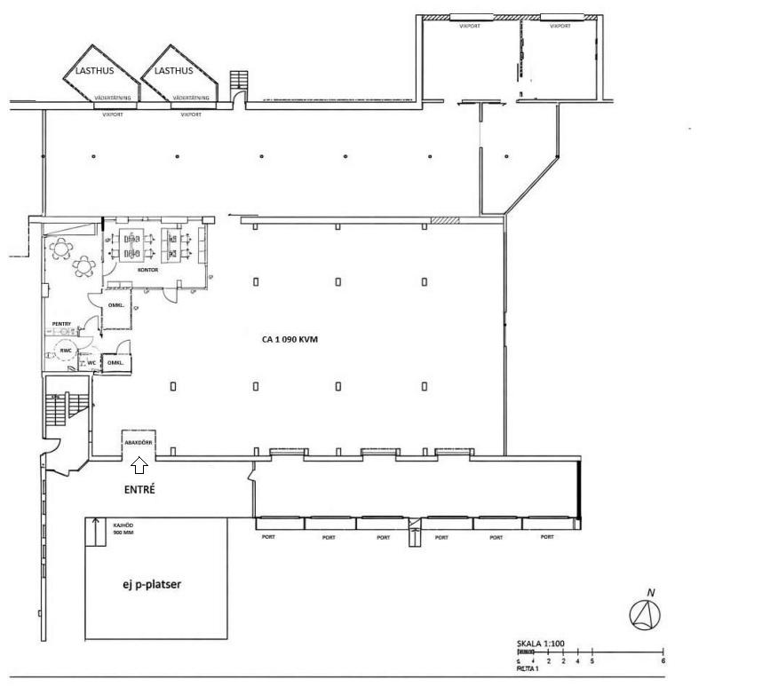
Lager- och produktionslokal med fyra lastportar – effektiv logistik i Årsta Partihallar!

Nu finns möjlighet att hyra en yteffektiv lager- och produktionslokal om ca 520 kvm i entréplan med mycket goda logistiska förutsättningar i Årsta Partihallar, ett av Stockholms viktigaste områden för livsmedel, grossistverksamhet och distribution. Lokalen är utrustad med fyra lastportar i lastkajshöjd, vilket skapar mycket goda förutsättningar för smidig och effektiv godshantering. Portarnas placering gör att in- och utlastning kan ske rationellt även vid högre flöden. Planlösningen är öppen och mycket yteffektiv, med en större sammanhängande lager- och produktionsyta som ger stor flexibilitet för olika typer av verksamheter. Lokalen erbjuds i dagsläget som en öppen verksamhetsyta, vilket ger kommande hyresgäst möjlighet att tillsammans med hyresvärden utforma och anpassa ytan efter sina behov. Vid behov finns goda möjligheter att skapa kontor, personalutrymmen, omklädningsrum och WC på lämplig plats i lokalen, vilket innebär att hyresgästen kan få helt nya och verksamhetsanpassade funktioner som integreras i planlösningen på ett effektivt sätt. Lokalens styrkor ✅ Fyra lastportar i lastkajshöjd – mycket effektiv in- och utlastning ✅ Ca 520 kvm yteffektiv lager- och produktionsyta i entréplan ✅ Öppen och flexibel planlösning som kan anpassas efter verksamhetens behov ✅ Möjlighet att skapa kontor och personalutrymmen såsom omklädningsrum och WC i samråd med hyresvärden ✅ Strategiskt logistikläge i Årsta Partihallar ✅ Parkeringsplatser finns att hyra i direkt anslutning till fastigheten Kontakta uthyrningsansvarig för fullständiga hyresuppgifter eller för att boka en visning!

Om lokalen

Kommun
Stockholms kommun
Objektsnummer
41997400

Omgivning

Lokalen ligger i Årsta Partihallar, ett av Stockholms största och mest centrala nav för hantering av gods och livsmedel. Området präglas av liv och rörelse, med gott om utrymme för transporter och logistik. Här finns en härlig blandning av grossistföretag, livsmedelsproduktion och andra verksamheter, samt flera restauranger och serviceinrättningar.

Parkering

Parkeringsplatser finns att hyra intill fastigheten.

Karta

Bilder på lokalen