Argongatan 35-39 Boglundsängen, Boglundsängen, Örebro
ÖrebroBostäder AB
716 m²
Hyra: Ej angiven
Tillträde: Ej angivet
Kontor med tillhörande lager/verkstad
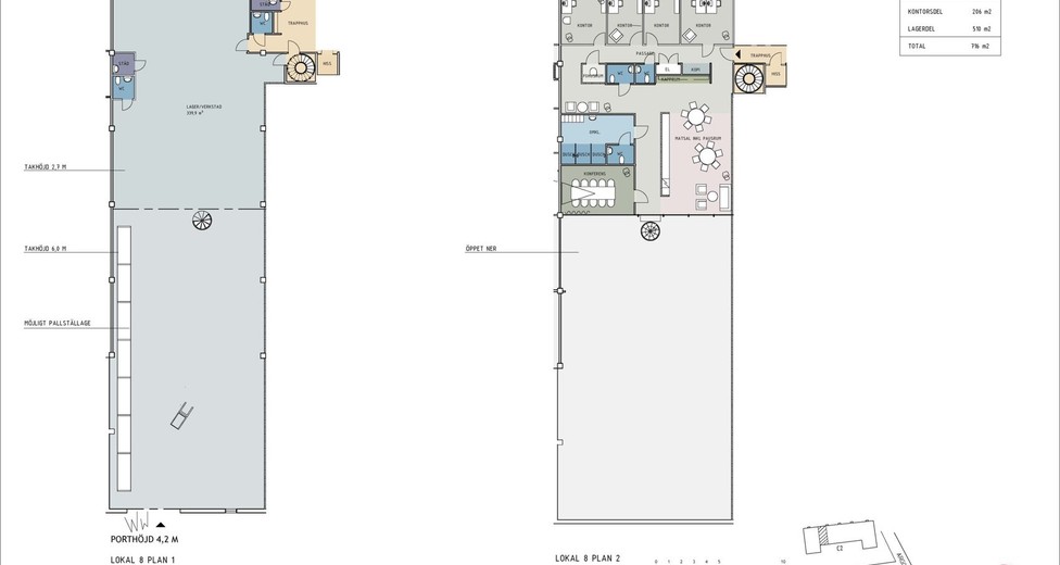
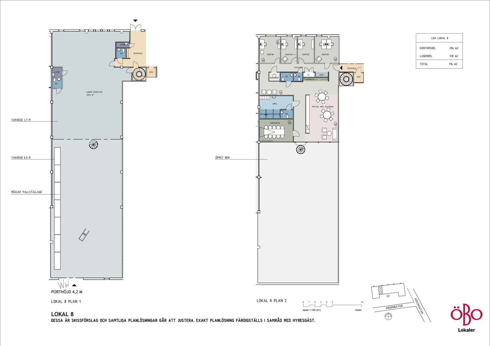
Lokalen är förlagd på två plan och omfattar totalt 716 kvadratmeter, varav 206 kvadratmeter kontor och 510 kvadratmeter lagerytor. Kontorsdelen har några arbetsrum, ett mindre konferensrum, kök/matrum och ett omklädningsrum. Här finns goda möjligheter att skapa en flexibel lösning för lager, industri eller annan verksamhet. Fastigheten erbjuder en inhägnad gård med grindar som låses nattetid, vilket ger en trygg och säker miljö. På området finns även personalparkering. I närområdet finns ett brett utbud av service med företagsverksamheter, stormarknader, bensinstationer och restauranger, vilket gör läget både praktiskt och attraktivt för företag och medarbetare.
Läget
Boglundsängen är ett väletablerat verksamhets- och handelsområde i norra Örebro med ett strategiskt läge nära både E20 och Västerleden. Området har under de senaste åren utvecklats till ett starkt företags- och handelsnav med många välkända aktörer och god tillgänglighet för både kunder och transporter.
Här finns en bra mix av handel, service, lager och industri, vilket skapar ett levande företagsklimat och goda affärsmöjligheter. Närheten till stora handelsplatser, restauranger och service gör området attraktivt både för företag och besökare.
Om lokalen
- Kommun
- Örebro kommun
- Objektsnummer
- 41998296





