Åbyvägen 3, Bista, Örebro
Mileway Sweden AB
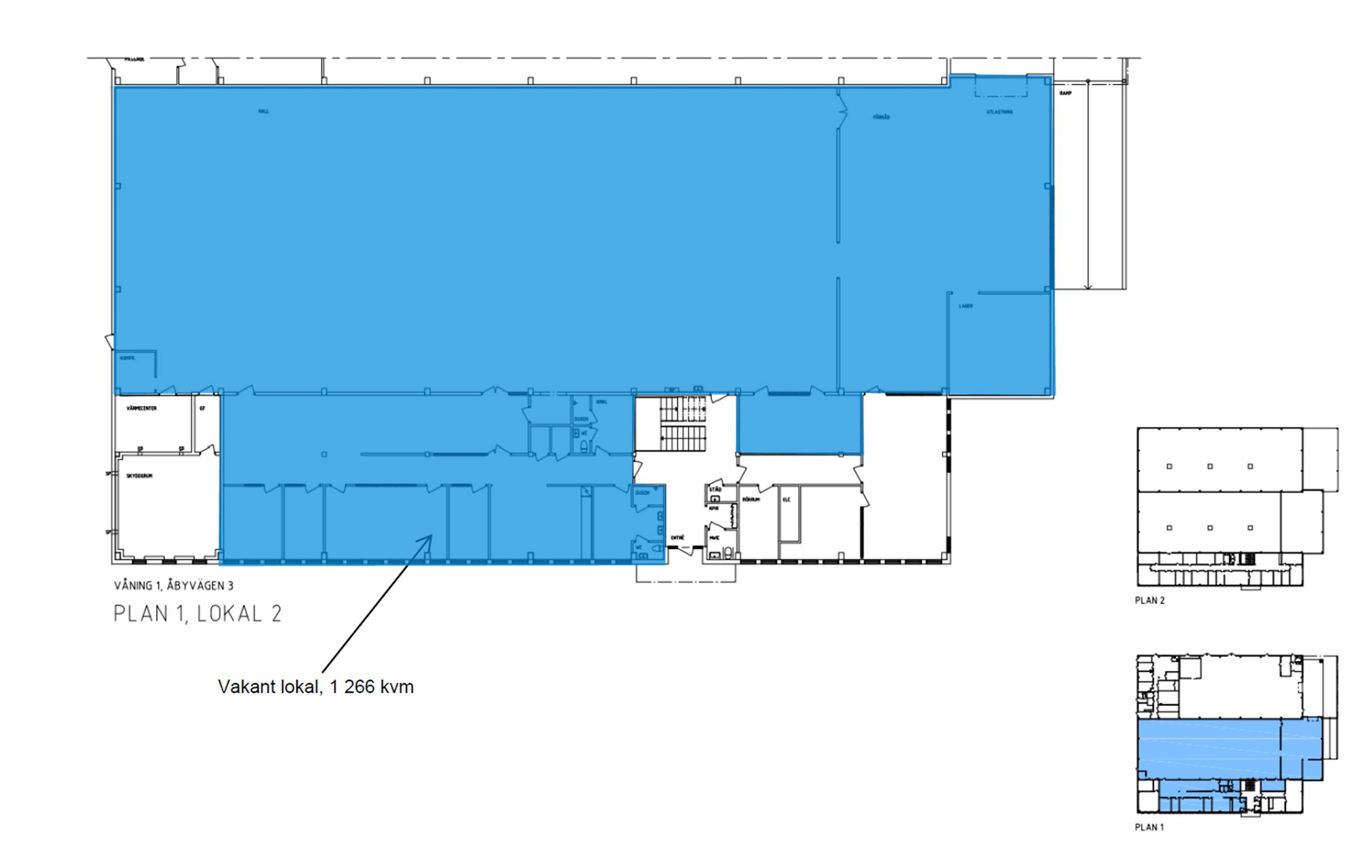
Annons max1 266 m²
Hyra: Ej angiven
Tillträde: Enligt överenskommelse
Effektiv lagerlokal om 1 266 kvm i populära Bista industriområde
Nu finns möjlighet att hyra en välplanerad lagerlokal om totalt 1 266 kvm, belägen i attraktiva Bista industriområde – ett av Örebros mest populära logistiklägen. Här kombineras tillgänglighet, funktion och smidiga kommunikationer på bästa sätt.
Lager och hanteringLokalen erbjuder ett rymligt lager med en takhöjd om 7 meter, idagsläget finns ett nedpedlat akustiktak som kan tas bort vid behov. Ytan är utrustad med LED-belysning för energieffektiv drift och har tillgång till en egen lastkaj för smidig in- och utlastning.
Kontor och personalytorI anslutning till lagret finns mindre kontorsytor samt praktiska personalutrymmen såsom kök, omklädningsrum och WC.
Fastigheten erbjuder kostnadsfria parkeringsplatser med plats för cirka 50 bilar.
Läge – Bista IndustriområdeBista industriområde ligger ca tre kilometer sydväst om Örebros centrum och erbjuder ett optimalt logistikläge nära både E18 och E20. Här finns goda kollektivtrafikförbindelser med buss samt cykel- och gångvägar.
Området erbjuder en blandning av lager- och logistikfastigheter, kontor och butiker.
Dokument
Lokaltyper
Typ: Kontor, Lagerlokal, Verkstad
Minsta storlek: 1266 m²
Största storlek: 1266 m²
Våningsplan: 1
Fastighet
Fastighetsbeteckning: Kontrollanten 9
Byggnad
Byggår: 1975
Egenskaper
Villkor lokal
Tillträde: Enligt överenskommelse
Omgivning
Pilängen Industriområde 3 km från centrala Örebro. Naturskönt närområde intill Svartån och Åbyparken.
Parkeringsmöjlighet: 50 parkeringsplatser
Närservice: Lunchrestauranger och dagligvarubutiker finns i närområdet.
Kommunikation
Kollektivtrafikförbindelser med buss till Vaktelvägen avgår var 10:e minut från Örebro C och tar crika 20 minuter inklusive promenad sista biten.
Annonsinformation
Publicerad: 2025-10-03
Objektsnummer: 41992589

















