Storgatan 50, Centrum, Sollefteå
Företag & Kommersiella fastigheter
Annons plus93 m²
Hyra: Ej angiven
Tillträde: Ej angivet
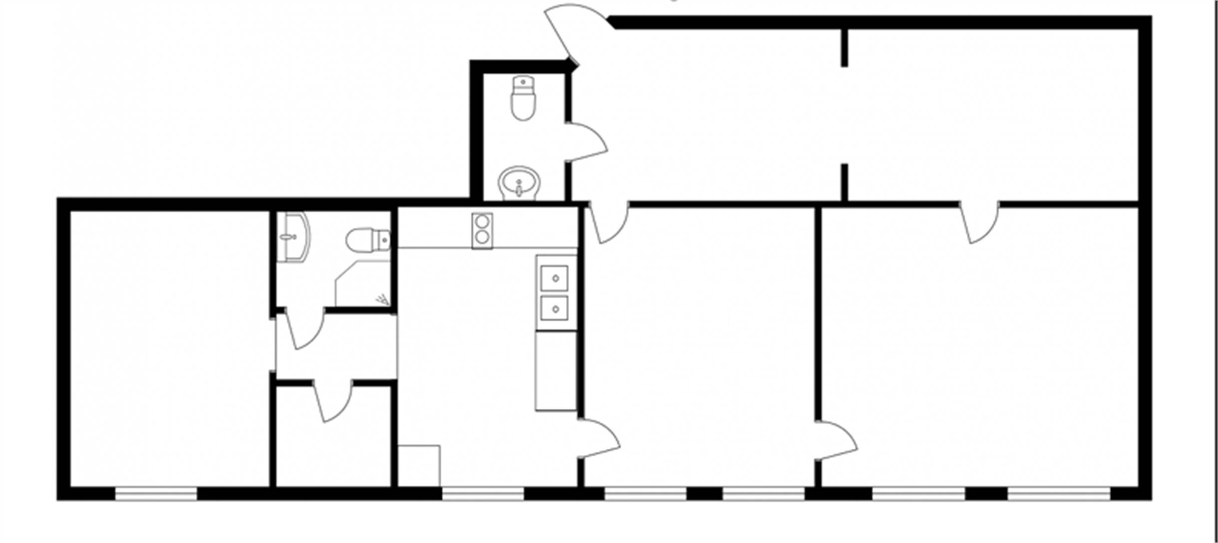
Nu finns möjlighet att hyra en trevlig och funktionell lokal om ca 90 kvm på Storgatan 50 – mitt i Sollefteå centrum. Lokalen ligger på andra vån...
Nu finns möjlighet att hyra en trevlig och funktionell lokal om ca 90 kvm på Storgatan 50 – mitt i Sollefteå centrum. Lokalen ligger på andra våningen och passar utmärkt för tandläkarmottagning, vårdverksamhet, skönhetsklinik eller kontor. Lokalen erbjuder ljusa rum med stora fönster mot gatan, vilket ger både ett fint ljusinsläpp och ett mycket bra skyltläge. Planlösningen kan anpassas efter verksamhetens behov. Möjlighet finns till behandlingsrum, väntrum, reception, sterilrum och personalutrymmen. Vänligen kontakta oss för mer information!
Om lokalen
- Kommun
- Sollefteå kommun
- Objektsnummer
- 41993507
Omgivning
Lokalen ligger i ett centralt och välbesökt handelsstråk med närhet till butiker, caféer, banker och service.
Gångavstånd till ICA Kvantum, KappAhl, apotek, restauranger och andra verksamheter i stadskärnan.
Kommunikationer
Busshållplats inom några minuters gångavstånd (linje 90 m.fl.)
Nära Sollefteå resecentrum med regional busstrafik
Goda parkeringsmöjligheter i direkt anslutning till fastigheten



