Produktionslokal, Maskingatan 3, Haga, Jönköping
- 230–456 m²
- 2026-08-01
Maskingatan 3
Om lokalen
- Lokaltyper
- Produktionslokal / Kontor / Lagerlokal
- Total yta
- 230–456 m²
- Adress
- Maskingatan 3
- Område
- Haga
- Kommun
- Jönköpings kommun
- Hiss
- Nej
- Våning
- 1
- Tillträde
- 2026-08-01
- Objektsnummer
- 41992952
Beskrivning
Lokalen är i dagsläget tom och har makadam på golvet, vilket gör att den kan inredas helt utifrån era önskemål. Ytan kan även delas av på mitten, vilket ger en lokal på cirka 230 kvm. Passar bra för verksamheter inom service, bygg eller butik.
Ritningen som visas är en skiss och kan anpassas efter era behov och bilden är framtagen som prototyp.
Fastigheten ligger i Haga Företagspark, ett av de första områdena man möter vid infarten till Göteborg – ofta kallad ”Göteborgsbacken”. Läget intill Riksväg 40 ger både bra skyltläge och enkel tillgång till motorvägen. Området har mindre trafikerade gator och en blandning av service- och industrifastigheter. Cirka 40 000 fordon passerar förbi varje dag, vilket bidrar till god exponering.
Omgivning
Haga är beläget söder om Jönköpings centrum och har en strategisk placering vid motorvägarna E4 och riksväg 40. Det är ett industriområde som har utvecklats sedan 1950-talet. Platsen har blivit attraktiv för företagsetableringar tack vare sitt läge vid en stor trafikkorsning, Trafikplats Ljungarum. Dessutom sträcker sig Tabergsån genom stadsdelen och bidrar till dess natursköna omgivningar.
Kommunikationer
Läge i anslutning till riksväg 40 och E4:an
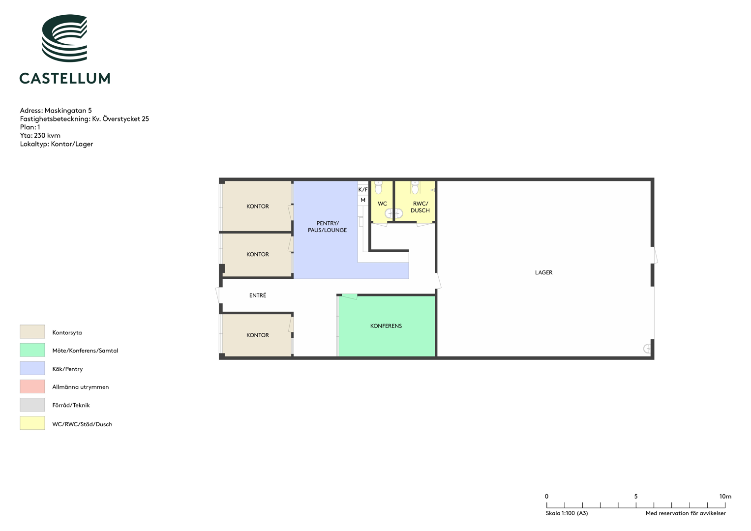
Planlösning
Planlösningen har tagits fram som ett förslag på hur lokalen kan disponeras på ett genomtänkt och praktiskt sätt. Tanken är att skapa en bra balans mellan kontor, gemensamma ytor och lager, där flödet mellan delarna fungerar smidigt i vardagen.
Förslaget visar tre kontorsrum, ett konferensrum samt en paus- och loungeyta med pentry. I anslutning finns även WC och RWC med dusch. Den stora lagerytan ligger lättillgängligt från kontorsdelen och kan anpassas efter verksamhetens behov.
Skissen är framtagen för att illustrera en möjlig utformning som gör det mesta av lokalens yta. Självklart kan planlösningen justeras efter önskemål och hur den nya ni vill utforma er lokal efter era behov.
Parkering
Parkeringsplatser till fastighetens hyresgäster och deras besökare finns i anslutning till fastigheten
Övrigt
Överstycken 25 är en imponerande fastighet belägen längs riksväg 40 med utmärkt skyltläge. Den har snabb tillgång till E4:an och gott om parkeringsmöjligheter. Byggd år 2018, sträcker sig fastigheten över nästan 4000 kvadratmeter och erbjuder en rymlig och modern plats för olika typer av verksamheter.






