Verkstad, Kraftvägen 28, Brunna
- 500–1 331 m²
- Omgående
Anpassningsbar lokal med lager & kontor – från 500 kvm
Om lokalen
- Lokaltyper
- Verkstad / Kontor / Lagerlokal
- Total yta
- 500–1 331 m²
- Adress
- Kraftvägen 28
- Område
- Brunna
- Kommun
- Upplands-Bro kommun
- Byggår
- 1992
- Hiss
- Ja
- Tillträde
- Omgående
- Objektsnummer
- 41975387
Beskrivning
Anpassningsbar lokal med lager & kontor – från 500 kvm
Nu finns möjligheten att hyra en rymlig och välunderhållen lager- och kontorslokal i ett modernt företagsområde med smidig logistik. Lokalen kan hyras i flexibla storlekar från ca 500 kvm upp till 1 331 kvm, beroende på behov. Ett exempel på en mindre yta är ca 350 kvm lager kombinerat med ca 150 kvm kontor.
Lokalens fördelar:
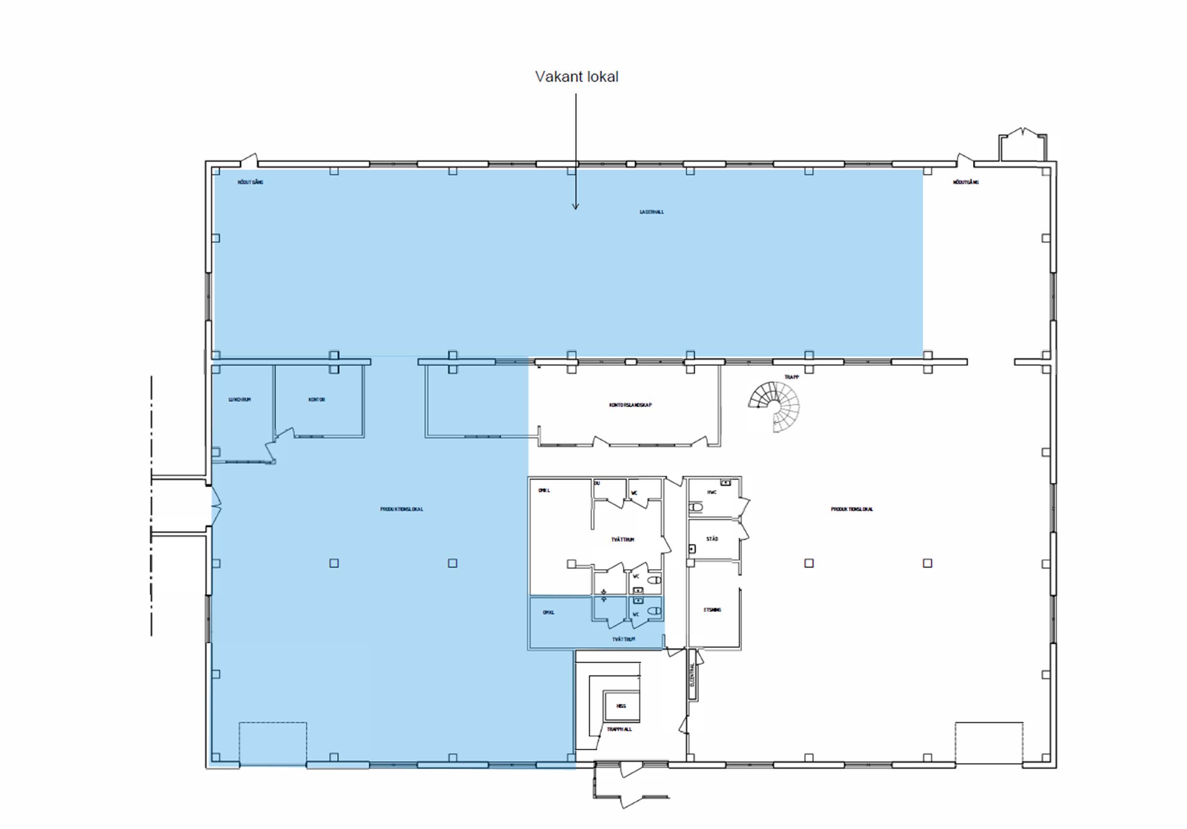
Effektivt lager & produktion– Upp till 733 kvm lager på markplan med 3,95 m takhöjd och hög golvbärighet (1 500 kg/kvm).– Möjlighet att installera markport för smidig in- och utlastning.– För mindre förhyrningar kan lagerdelen anpassas, t.ex. ca 350 kvm.
Flexibla kontorsytor– Upp till 598 kvm kontor på plan ett med 3,65 m takhöjd, kontorsrum, pentry/kök, WC samt omklädningsrum med dusch (golvbärighet 520 kg/kvm).– Kontorsytan kan anpassas efter behov, exempelvis ca 150 kvm vid en total yta runt 500 kvm.
Modern & uppgraderad– Lokalen är nyligen utrustad med energieffektiv LED-belysning.
Säkerhet & tillgänglighet– Fastigheten ligger inom ett inhägnat område med goda parkeringsmöjligheter precis intill byggnaden.
Optimalt läge– Brunna i Upplands-Bro erbjuder snabb access till E18 och E4, vilket ger effektiva transportmöjligheter till Stockholm och Mälardalen.
Här får ni en flexibel lokal med moderna bekvämligheter och ett strategiskt läge. Kontakta oss för mer information eller för att boka en visning!
Kommunikationer
Goda kollektivtrafikförbindelser med pendeltåg och buss till centrala Stockholm
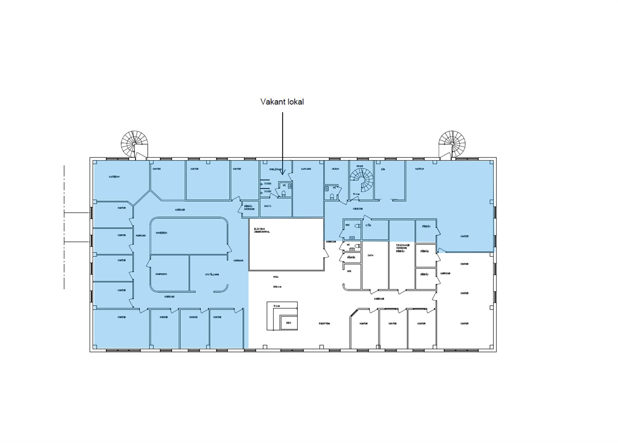
Planlösning
Se planritning bland bilder/PDF.
Parkering
Parkeringsmöjligheter på fastigheten
Service
Ett visst serviceutbud av butiker och lunchrestauranger i närområdet
Vägbeskrivning
Nära anslutning till E18 och E4
Närliggande företag
Altia Sweden, Swedish Match, Ramirent, Bilia och Svensk Kosttillskott


















