Esbogatan 11, Akalla, Sollentuna
Lokal Direkt
Annons plus500–10 500 m²
Hyra: Ej angiven
Tillträde: Enligt överenskommelse.
30 MW Power i Stockholms logistiknav – Esbogatan 11 är redo för er expansion! Lokaler med extrem teknisk prestanda, unik takhöjd och hög säkerhet!
Vid E4:an och Förbifart Stockholm erbjuder vi nu lager- och kontorsytor med upp till 150 MW potential. Säkert, skalbart och redo för framtiden!
Här erbjuds nu unika möjligheter i en av Stockholms mest robusta infrastrukturfastigheter. Med ett ursprung som ett av Europas modernaste tryckerier är byggnaden lämplig för verksamheter med höga krav på säkerhet, elförsörjning och bärighet. Fastigheten är en central del av Stockholm Data Parks och erbjuder unika förutsättningar för datacenter, höglager, myndigheter och industri.
Fastigheten
Byggnaden uppfördes på 90-talet med historia som Europas kanske mest moderna tryckeri. Fastigheten på cirka 95 000kvm är idag hem för datacenter (Digital Reality), myndigheter, tryckeriverksamhet (Bold Printing), logistik (Pressens Morgontjänst) och andra verksamheter med höga krav på teknisk och fysisk säkerhet.
Fastigheten är en del av Stockholm Data Parks och har tilldelats ytterligare 30 MW effekt som blir spänningssatt i slutet av 2027. Efter 2030 finns möjlighet till ännu mer effekt eftersom ny, bredvidliggande spänningsstation kommer att vara förberedd för att kunna hantera upp till 150 MW.
Här finns fiberinfrastruktur i toppklass och närhet till Exergis anläggning för kylsystem och återvinningslösningar för spillvärme.
Fastigheten erbjuder hög robusthet, redundans och driftssäkerhet (kyla, ventilation, luftfuktighet, värme etc.).
Fastigheten är BREEAM In-Use certifierad med betyget “Very Good”.
Om lokalerna:
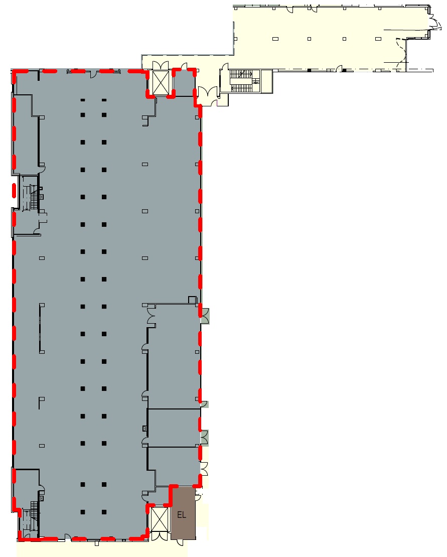
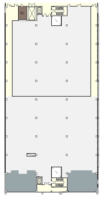
Industrilokal / höglager
F.d. tryckerihall på ca 2 300 m² med 15,4 m meters takhöjd. Tryckhallen kan utökas till ca 7 000 m² med installation av 2 nya våningsplan som fastighetsägaren bekostar. Ytan är mycket lämplig för exempelvis datacenter med stora effektbehov. Fastigheten kommer att betjänas av ytterligare 30 MW effekt som blir spänningssatt i slutet av 2027. Efter 2030 finns möjlighet till ännu mer effekt då ny, bredvidliggande spänningsstation kommer att vara förberedd för att kunna hantera upp till 150 MW.
Lagerlokaler
Lagerlokaler om totalt ca 2 000 m² tillgängliga. God tillgänglighet med rymliga lasthissar som hanterar upp till 9 ton. Det är även möjligt att köra till lokalen med mindre lastbil. På fastigheten finns både höga markportar och lastkaj.
Idag är lagerytan avdelad på två lagerlokaler om ca 800 m² och 1200 m² men det är enkelt att skapa en sammanhängande yta om ca 2 000 m².
Kontor
Tillgängligt kontor upp till ca 1820 m² beläget högst upp i byggnaden med bekväm access via hiss och trapphus. Planlösningen utgörs av cellkontor, mötesrum samt ett socialt pentry i öppen lösning. Det är möjligt att dela av ytan till mindre lokaler.
I lokalens hjärta finns två ljusgårdar med dörrar till trevliga uteplatser.
Lokalen håller redan idag en genomgående god standard med fräscha ytskikt. De flesta väggarna är vitmålande med vitt undertak. Golven har mörkgrå textilmatta för optimal akustik.
Samtliga lokaler kan anpassas efter önskemål och verksamhetens behov.
Bredband: Fiberanslutning finns.
Ventilation: Mekanisk till- och frånluftsventilation samt kyla.
BREEAM
Den här certifieringen är världens mest använda. Breeam används för befintliga och nybyggda kommersiella byggnader. 2013 kom en svensk version som utgår från svensk lagstiftning, svenska metoder och arbetssätt. Breeam är en heltäckande certifiering med många indikatorer. Här görs bedömningar inom projektledning, energianvändning, inomhusklimat, vattenhushållning, avfallshantering, markanvändning, påverkan på närmiljön, byggmaterial och föroreningar samt byggnadens läge i förhållande till allmänna kommunikationsmedel.
Om lokalen
- Kommun
- Sollentuna kommun
- Byggår
- 1992
- Hiss
- Ja
- Tillgänglighet
- Llastkaj, lastport och hissar (Kan ta laster upp till 9 ton)
- Våning
- 1-5
- Tillträde
- Enligt överenskommelse.
- Objektsnummer
- 41998533
Omgivning
• Tillväxtnav: Miljardinvesteringar i datacenter och digital infrastruktur säkrar områdets betydelse.
• Levande stadsmiljö: En expansiv mix av kommersiell service, mötesplatser och moderna bostäder.
Kommunikationer
Oslagbar logistik – på väg mot framtiden
Esbogatan 11 erbjuder en av Stockholms mest lättillgängliga adresser, oavsett färdsätt:
• Snabba spår: Gångavstånd till både pendeltåg (Helenelund) och tunnelbana (Akalla).
• Buss vid dörren: Fyra linjer stannar precis utanför och knyter ihop hela norra orten.
• Bilpendlarens dröm: Direktaccess till E4/E18. Den kommande Förbifart Stockholm öppnar dessutom upp södra Stockholm helt.
• Global närhet: Strategiskt läge mellan Bromma och Arlanda för smidiga affärsresor.
Kort sagt: Maximal tillgänglighet idag – ännu bättre imorgon.
Parkering
Ja
Service
På Esbogatan 11 börjar servicen redan i dörren. Med en bemannad reception i huvudentrén får dina besökare ett professionellt välkomnande och du en smidigare vardag. Närmiljön erbjuder allt du behöver för en inspirerande arbetsdag. Inom räckhåll på Esbogatan hittar du ett generöst utbud av populära restauranger och caféer, perfekt för såväl affärsluncher som en snabb kaffe. För den aktiva finns både gym och sporthall precis i närheten, vilket gör det enkelt att få in träningen i schemat.
Närliggande företag
Tele2, Samsung Electronics, Nokia, Street, Posten, OKI Systems samt många bilrelaterade företag.
Övrigt
Hyresvärden har fri prövningsrätt vad gäller val av hyresgäst och verksamhet. Vänligen respektera hyresvärdens önskemål att all kontakt och visningar skall ske via mäklaren.
Karta
Bilder på lokalen
27.jfif 3.jfif 1.jfif 2.jfif 4.jfif 5.jfif 6.jfif 7.jfif 8.jfif 9.jfif 10.jfif 11.jfif 12.jfif 13.jfif 14.jfif 15.jfif 16.jfif 17.jfif 18.jfif 19.jfif 20.jfif 21.jfif 22.jfif 23.jfif 24.jfif 25.jfif 26.jfif 28.jfif 29.jfif 30.jfif 31.jfif 32.jfif 33.jfif 34.jfif 35.jfif 36.jfif 37.jfif 38.jfif 39.jfif 40.jfif 41.jfif 42.jfif 43.jfif 44.jfif 45.jfif 46.jfif 47.jfif Kontor ritning Plan 5.jpg Lager ritning-Plan 3.jpg ritning kontor plan 5.jfif Tryckhall ritning-plan 1.jpg LAGER RITNING.jpg





















































