Kontor / Lager, Bultgatan 28, Kungälv
- 263 m²
Lokal med kombination av kontor och mindre lager i bra läge nära motorvägen. Passar exempelvis för e-handel, showroom eller försäljningskontor. Lugnt område med skyltläge och närhet till restauranger, ...
| Lokaltyp | Kontor / Lager |
| Total yta | 263 m² |
| Adress | Bultgatan 28 |
| Område | Kungälv |
| Kommun | Kungälvs kommun |
| Hiss | Nej |
| Objektsnummer | 41993269 |
| Lokalitet | Kungälv, Kungälv |
Beskrivning
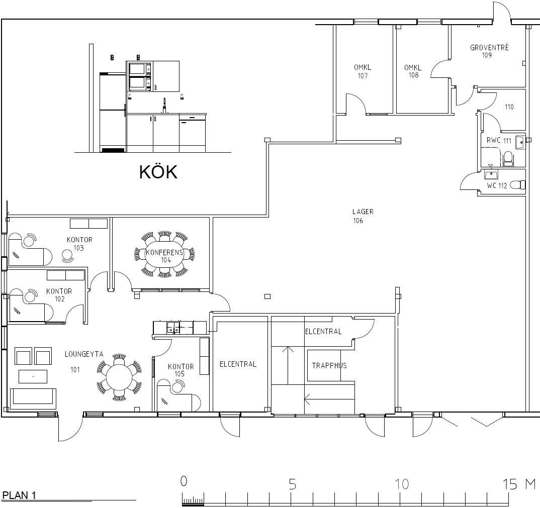
Välkommen till en flexibel lokal som lämpar sig väl för företag med behov av kontor i kombination med mindre lager. Lokalen passar exempelvis för e-handel, försäljningskontor eller showroom.
Fastigheten har ett bra läge med närhet till motorvägen och flera lunchrestauranger. I huset sitter främst kontorsverksamheter, vilket gör att vi söker en hyresgäst som inte är högljudd.
Fördelningen av ytan är kontor 126 kvm och lager/logistik 137 kvm.
Kontorsdelen ligger i anslutning till lagret med entré från framsidan. Lagret har en rejäl markport. I den bakre delen finns en groventré och möjlighet till fler kontorsrum eller omklädningsrum.
Varmt välkommen att kontakta oss för att boka en visning.
Omgivning
Området är ett aktivt företagsområde med närhet till natur och promenadstråk. I närområdet finns flera butiker som Jula, Rusta, Elon, Watski och Jysk. Tre gymkedjor finns också i området; Friskis, STC och Nordic Wellness.
Parkering
Ja
Skyltläge
Nej