Bergkällavägen 27, Bredden, Upplands Väsby
Mileway Sweden AB
Annons max175 m²
Hyra: Ej angiven
Tillträde: Enligt överenskommelse
Flexibel kombilokal - lager med markport & modernt kontor i attraktivt läge i Bredden
Nu finns en attraktiv och funktionell kombilokal om totalt ca 175 kvm tillgänglig i markplan och plan 1 - perfekt för företag som söker en smidig lösning med både lager och kontor i samma enhet.
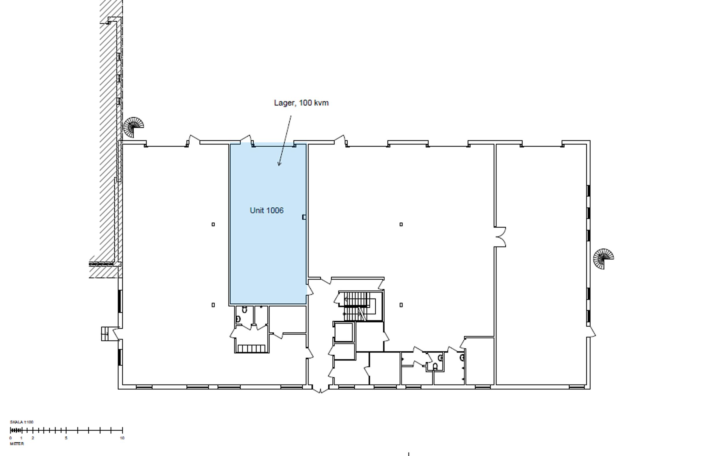
Lokalen erbjuder ett lager om ca 100 kvm i markplan med generös takhöjd om ca 3,5 meter och en markport (B 3,6 m x H 3,0 m), vilket ger goda förutsättningar för leveranser och logistik. I lagret finns även tillgång till vatten via utslagsback (ej anpassat för biltvätt eller spolning).
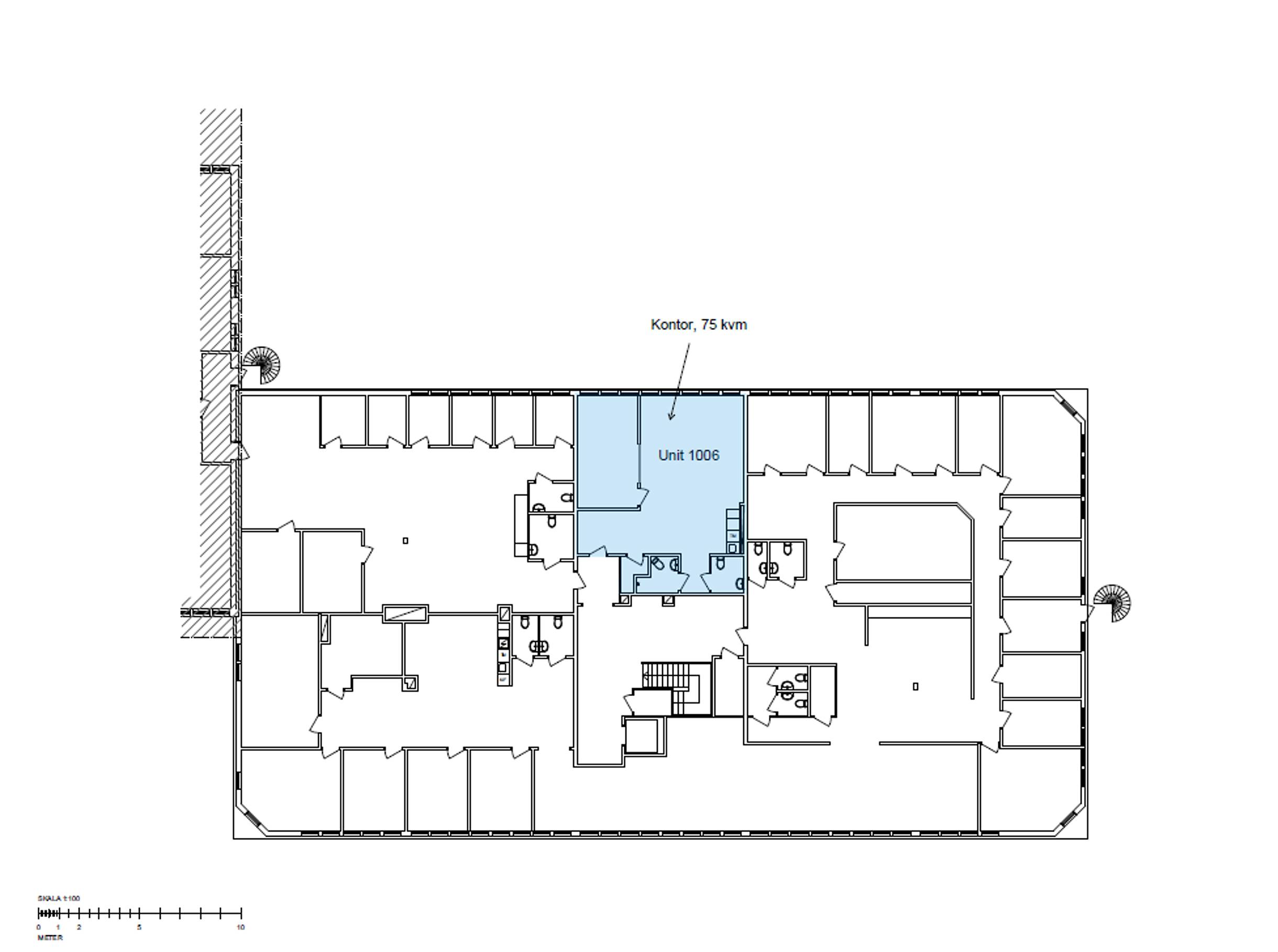
Kontorsdelen är belägen på plan 1 och nås via invändigt gemensamt trapphus. Här möts du av en ljus och öppen planlösning i anslutning till ett fullt utrustat kök med diskmaskin och mikro. Vidare finns ett större, avskilt rum som lämpar sig utmärkt som konferensrum eller enskilt kontor. Lokalen erbjuder även två WC, varav den ena är utrustad med dusch.
Strategiskt läge i BreddenBredden, tidigare känt som InfraCity, är ett attraktivt företagsområde med ett utmärkt läge mellan Stockholm och Arlanda. Härifrån når du E4:an på bara några minuter, vilket ger smidiga transporter och enkel tillgänglighet. Parkering finns i direkt anslutning till lokalen.
Centrala Stockholm: ca 25 minuterArlanda: ca 15 minuter
Området erbjuder ett brett serviceutbud med restauranger, handel och annan företagsservice - perfekt för verksamheter som vill ha allt inom räckhåll.
Ta chansen att etablera din verksamhet i denna flexibla och välplanerade lokal - kontakta oss redan idag för mer information eller visning!
Dokument
Egenskaper
Om lokalen
- Kommun
- Upplands Väsby kommun
- Byggår
- 1986
- Tillträde
- Enligt överenskommelse
- Objektsnummer
- 41997847
Omgivning
Flera grönområden finns för exempelvis en lunchpromenad eller löptur. Det planeras för ett bostadsområde i närheten, vilket kommer att göra området ännu mer levande med service dygnet runt.
Kommunikationer
Närsta hållplats "Bergkällavägen", bussar går regelbundet med anknytning till pendeltåg Rotebro, Kallhäll samt Upplands Väsby och till tunnelbanan Kista (blå linje). Med bil nås E4an inom ett par minuter, Stockholm C 25 min, Uppsala 35 min och Arlanda på ca 15 minuter.
Planlösning
Se planritning bland bilder/PDF.
Parkering
Gott om parkeringsplatser finns på fastigheten
Service
Brett serviceutbud i form av köpcenter, restauranger, matbutiker, gym, företagshälsovård, tandläkare, apotek, butiker, hotell etc.
Vägbeskrivning
Nära anslutning till E4
Skyltläge
Det tillgängliga läget bredvid E4:an gör det inte bara lättåtkomligt, utan ger också en hög synlighet och ett fantastiskt skyltläge. Som företag är Bredden därför en utmärkt plats att etablera sig på.
Närliggande företag
Bauhaus, SATS, Tesla, Swedbank, Lambertsson, Cramo, Mekonomen












