Norra Gubberogatan 32, Gårda, Göteborg
Nya Kvadrat Kommersiellt
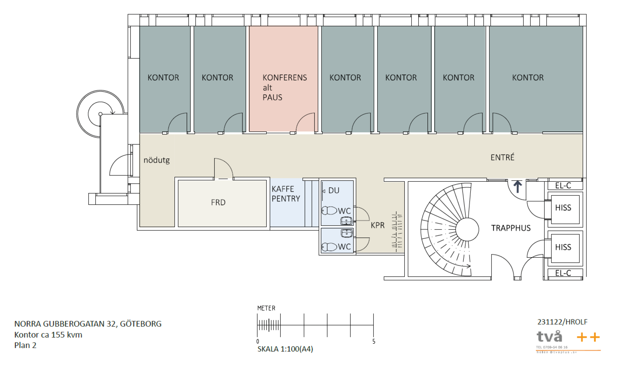
Annons plus155 m²
Hyra: Ej angiven
Tillträde: Ej angivet
Ljus och funktionell lokal med plats för upp till sju personer. Här sitter ni med bra skyltläge, nära centrum och med smidig access till de stora lederna. Garageplatser finns att hyra.
Välkommen till en trivsam arbetsplats med kontorsplats för upp till sju personer. Lokalen består av flera cellkontor som ger både fokus och arbetsro, perfekt för det mindre bolaget som vill kombinera funktion med känsla.
Här får ni ett fint skyltläge och enkel access till E6, E20 och R40, samtidigt som city finns på bara några minuter bort. För den som kör bil finns garageplatser att hyra i fastigheten.
Lokaltyper
Typ: Kontor
Minsta storlek: 155 m²
Största storlek: 155 m²
Takhöjd: 249
Våningsplan: 2
Egenskaper
Omgivning
Parkeringsmöjlighet: Ja
Kommunikation
Bara ett stenkast bort går buss 60 med täta turer in mot centrum. På kort promenadavstånd finns också Olskrokstorget och Svingeln, knutpunkter med flera buss- och spårvagnslinjer som snabbt tar dig till Centralstationen.
Annonsinformation
Publicerad: 2025-10-15
Objektsnummer: 41992977
Karta
Bilder på lokalen
DJI_20251007115654_0434_D.jpg DJI_20251007115730_0436_D.jpg DJI_20251007115818_0438_D.jpg DJI_20251007115805_0437_D.jpg DJI_20251007115903_0440_D.jpg DJI_20251007120209_0445_D.jpg DJI_20251007120047_0442_D.jpg DJI_20251007115931_0441_D.jpg DJI_20251007120121_0443_D.jpg Skärmavbild 2025-10-13 kl. 23.16.01.png











