Osmundgatan 10, Holmen, Örebro
Mileway Sweden AB
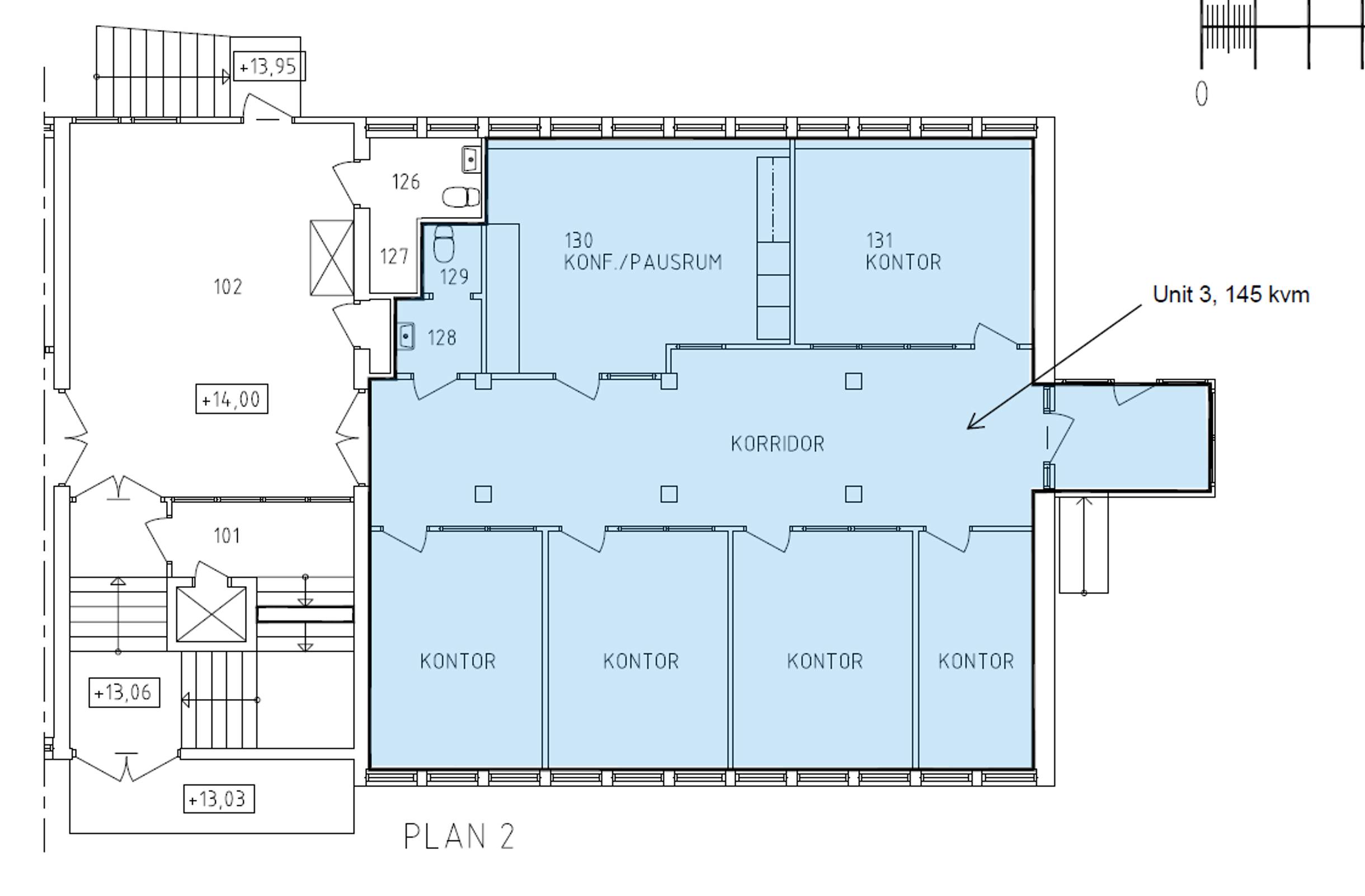
Annons max145 m²
Hyra: Ej angiven
Tillträde: Omgående
Ledigt kontor i växande område nära centrala Örebro
Nu finns möjlighet att hyra ett ljust och modernt kontor om 145 kvm i Holmen, med närhet till centrala Örebro. Lokalen erbjuder en funktionell och välplanerad arbetsmiljö som passar olika typer av verksamheter.
Planlösningen består av separata kontorsrum som ger goda möjligheter till enskilt arbete, ett konferensrum för möten samt WC och pentry. Ytorna är ljusa och lättmöblerade, vilket gör det enkelt att anpassa lokalen efter verksamhetens behov.
Holmen är ett område i utveckling med närhet till service såsom butiker, restauranger och träningsanläggningar. Det finns goda bussförbindelser till centrala Örebro, vilket underlättar pendling för både medarbetare och besökare.
Kontakta oss för mer information eller för att boka visning.
Dokument
Lokaltyper
Typ: Kontor
Minsta storlek: 145 m²
Största storlek: 145 m²
Våningsplan: 2
Fastighet
Fastighetsbeteckning: Järnmalmen 1
Byggnad
Byggår: 1963
Egenskaper
Villkor lokal
Tillträde: Omgående
Omgivning
Parkeringsmöjlighet: Fri parkering på fastigheten
Närservice: Närliggande handelsområde erbjuder ett brett serviceutbud med butiker, restauranger och träningsfaciliteter
Företag i närheten: Byggmax, Svensk Cater AB, Biltema, Autoexperten och Coop
Vägbeskrivning: Direkt anslutning till E18 och E20
Kommunikation
Goda kollektivtrafikförbindelser med buss till centrala Örebro
Planlösning
Se planritning bland bilder / PDF.
Annonsinformation
Publicerad: 2026-02-12
Objektsnummer: 41996487











