Butikslokal, Värtavägen 55, Gärdet, Stockholm

  • 132 m²

Om lokalen

Lokaltyper
Butikslokal / Kontor / Övrig lokal
Total yta
132 m²
Adress
Värtavägen 55
Område
Gärdet
Kommun
Stockholms kommun
Objektsnummer
41994287

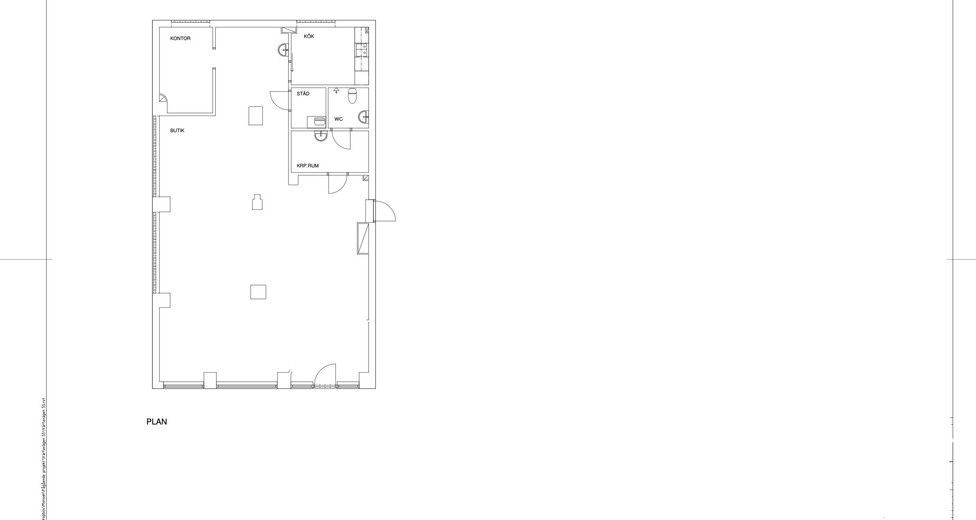
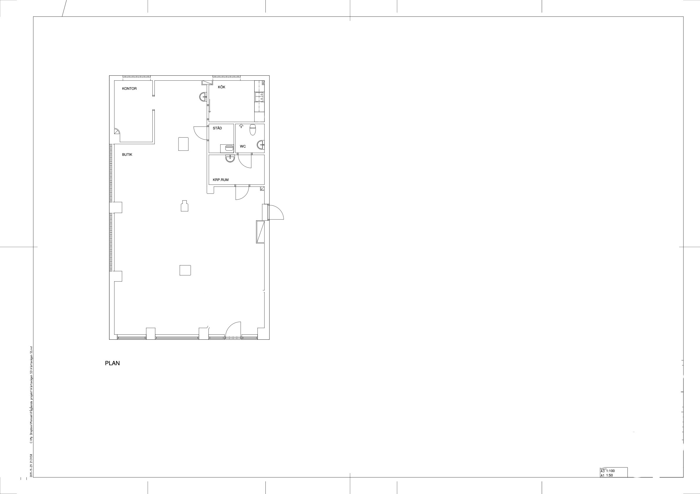
Beskrivning

Möjlighet att hyra denna trevligt belägna butikslokal om 132 kvm med adress Värtavägen 55, utan överlåtelseavgift!

Lokalen är belägen på en vältrafikerad gata, med ett högt antal besökare årets alla dagar. Här blir du granne med bland annat Lill-Jansskogen, Gärdet och det breda serviceutbud som finns längs Valhallavägen. Det direkta närområdet huseras till stor del av boenden, men här finns även en hel del kontor samt flertalet butiker av stor variation. Flera välkända och trevliga restauranger finns etablerade i området. Området erbjuder goda kommunikationer med Gärdets tunnelbana, Stadion samt flertalet busslinjer längs både Värtavägen och Valhallavägen.

Lokalen nås via en egen ingång direkt från gatan, eller via fastighetens huvudentré. Väl inne består lokalen av en stor öppen yta. Här finns ett trevligt ljusinsläpp från de massiva skyltfönstren, som också bidrar till en mycket god exponering. I lokalen finns även förvaringsyta, pentry samt en W/C med dusch. Lokalen är utrustad med god infälld belysning och en mekanisk ventilation som bidrar till ett gott arbetsklimat.

Lokalen lämpar sig mycket väl både som kontor och butik, eller dessa två kombinerat.

Ingen överlåtelseavgift utgår!

Yta: 132 kvm
Hyra: 33 500 kr/mån ex moms
Fastighetsskatt: Tillkommer

Nextor Group AB
Viktor Ritterstrandh
viktor@nextor.se
0736-877397
08-309200

Karta

Bilder på lokalen