Tuna Industriväg 35, Järna
Catena AB
Annons max4 410 m²
Hyra: Ej angiven
Tillträde: Enligt överenskommelse.
Lager i industrifastighet i perfekt läge nära E4 ca 4 mil söder om Stockholm.
Här finns chansen att hyra ett höglager om 4410 kvm i en industrifastighet med perfekt läge. Fastigheten ligger i Järna, Södertälje kommun, cirka 4 mil söder om Stockholm. Direkt nära E4:an, vilket ger snabb tillgång till Stockholmsregionen och vidare till Mälardalen och södra Sverige. Trafikplats Järna ligger endast ca 2 km bort, vilket möjliggör effektiv distribution och transporter.
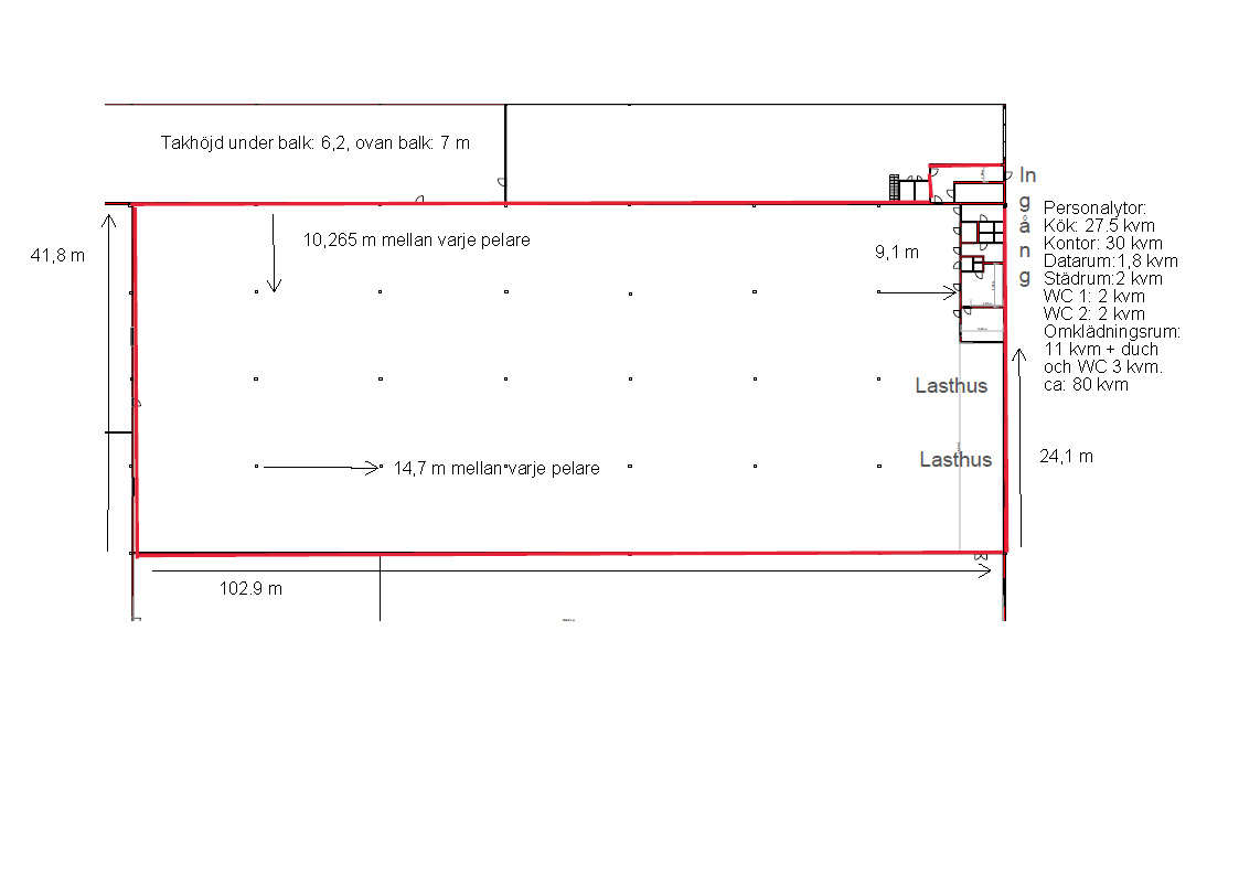
På plan 1 finns lager med tillhörande kontor och pentry. På plan 2 finns möjlighet till större kontorsytor. Fastigheten ska miljöcertifieras 2026 i BREEAM In Use.
Dokument
Lokaltyper
Typ: Lagerlokal
Minsta storlek: 4410 m²
Största storlek: 4410 m²
Villkor lokal
Tillträde: Enligt överenskommelse.
Kommunikation
Pendeltåg: Järna station ligger inom rimligt gång- eller cykelavstånd, med pendeltåg mot Stockholm och Södertälje
Planlösning
Lager med tillhörande kontor och pentry på plan 1. Möjlighet till större kontorsytor på plan 2.
Annonsinformation
Publicerad: 2025-03-21
Objektsnummer: 41976525






