Övrig lokal, Nymärsta Gränd 5, Märsta Centrum, Märsta
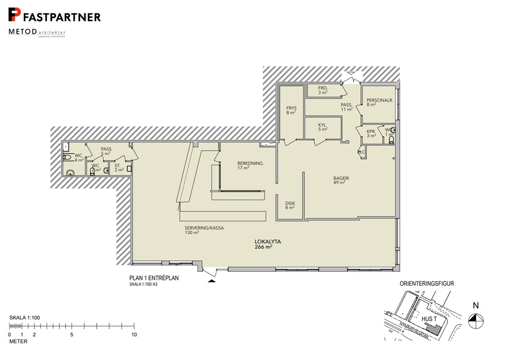
- 266 m²
- Enligt överenskommelse
Mångsidig lokal med attraktiv placering i Märsta Centrum
Om lokalen
- Lokaltyper
- Övrig lokal / Kontor / Butikslokal
- Total yta
- 266 m²
- Adress
- Nymärsta Gränd 5
- Område
- Märsta Centrum
- Kommun
- Sigtuna kommun
- Hiss
- Nej
- Tillträde
- Enligt överenskommelse
- Objektsnummer
- 41992166
Beskrivning
Välkommen till en ljus och rymlig lokal om 266 kvm i Märsta Centrum, med bra läge precis vid busstorget där många människor passerar dagligen. Lokalen ligger i markplan och har stora fönsterpartier som ger ett härligt ljusinsläpp och bra exponering mot förbipasserande. Här finns även möjlighet att nyttja en egen uteplats eller uteservering, perfekt för café, men även för att skapa en inbjudande entré till butik eller kontor.
Ritningen för lokalen visar hur den ser ut idag men den lämpar sig utmärkt för en rad olika verksamheter såsom butik, café, kontor, showroom, salong eller annan publik verksamhet. Kombinationen av ett attraktivt läge, goda skyltmöjligheter och flexibilitet i användning gör detta till en idealisk plats för dig som vill etablera eller utveckla din verksamhet i ett levande centrum.
Kontakta oss gärna för mer information eller för att boka en visning.
Omgivning
Märsta Centrum är en levande knutpunkt med butiker, service, vårdcentral, gym och restauranger. Här rör sig människor hela dagen, och platsen är särskilt välbesökt under rusningstider tack vare närheten till kollektivtrafiken.
Märsta och Sigtuna är en växande och attraktiv region både som plats att bo och leva på och som etableringsplats för företag. I och med de nya satsningar som Fastpartner gör ökar den attraktionskraften ytterligare.
Kommunikationer
Märsta är centralort i Sigtuna kommun och ligger nästan mittemellan Stockholm och Uppsala, med direkt närhet till E4:an. Restid till Stockholm med bil cirka 35 minuter, till Uppsala cirka 30 minuter och Arlanda cirka 10. Från Märsta station går pendeltåg till Stockholms centralstation. Även fjärrtågen mellan Stockholm och Uppsala stannar i Märsta. Bra bussförbindelser finns till Sigtuna, Valsta, Steningehöjden och Arlanda. Gångavstånd från Märsta station till Märsta Centrum. Buss trafikerar sträckan och tar ett par minuter. Samtliga större busslinjer passerar dessutom Märsta C.
Parkering
Besöksparkering gratis, 2 tim/dygn, för registrerade medlemmar 4 tim./dygn
Service
Märsta centrum erbjuder ett brett utbud av handel, tjänster och restauranger. Det är den centrala handelsplatsen i Sigtuna.

