Lagerlokal, Kraftvägen 50, Brunna
- 2 631 m²
Om lokalen
- Lokaltyper
- Lagerlokal / Kontor / Butikslokal / Produktionslokal
- Total yta
- 2 631 m²
- Adress
- Kraftvägen 50
- Kommun
- Upplands-Bro kommun
- Objektsnummer
- 41995501
Övrigt
Nu finns möjligheten att hyra en modern och expansiv industrifastighet på Kraftvägen 50 i Brunna, Kungsängen. Fastigheten erbjuder välplanerade lager, kontor och showroom med effektivt logistikflöde och ett strategiskt läge i direkt anslutning till E18.
Möjlighet att hyra uppställningsyta och parkering om cirka 3 400 kvm på Kraftvägen 52 i direkt anslutning till fastigheten, vilket skapar mycket goda förutsättningar för verksamheter med stora behov av fordonsuppställning eller utomhuslager.
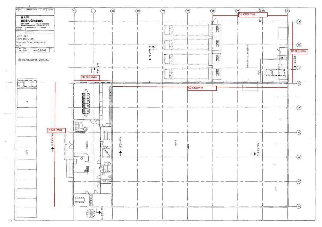
Fastigheten omfattar totalt 2 628 kvm och lämpar sig väl för lager, logistik, produktion eller handelsverksamhet.
Om fastigheten
Totalyta: 2 628 kvm
Byggår: 2013
Lager 1 653 kvm
Höglager med pallställ enligt ritning (se bilder i annonsen)
Takhöjd 8,5-9,5 m.
Effektiv godsmottagning för in och utlastning
Lastportar
Fyra portar med lastkaj
En större markport med tvätthall
En mindre markport för lättare transporter
Kontor och showroom 975 kvm fördelat på tre plan
Plan 1, 325 kvm: Showroom och kontor, lämpat för kundmottagning och försäljning
Plan 2, 325 kvm: Moderna kontorsytor för administration och personal
Plan 3, 325 kvm: Oinredd yta med ventilationsrum och hissmaskinrum, redo att anpassas efter verksamhetens behov
Hållbarhet och tomt
Uppvärmning via bergvärme samt solpaneler på taket
Mekanisk till och frånluftsventilation
Tomtyta: 4 526 kvm med goda uppställnings och rangerytor
Parkering: Generöst med parkeringsplatser på fastigheten
Externt tillägg
Uppställningsyta och parkering om cirka 3 400 kvm kan hyras på Kraftvägen 52
Läge och kommunikationer
Fastigheten är belägen i Brunna företagsområde, ett av Stockholmsregionens mest expansiva logistiklägen.
Snabb anslutning till E18 och E4 med god räckvidd till Stockholm och Mälardalen.
Arlanda och Bromma nås på cirka 30 minuter med bil.
Busshållplats inom gångavstånd med anslutning till Kungsängens pendeltågsstation.
Närservice och omgivning
Området erbjuder butiker, restauranger och ett brett serviceutbud. Flera etablerade bolag är redan verksamma i området vilket skapar ett attraktivt företagskluster.
Lämplig för
Lager och logistik
E handel
Bygg och grossistverksamhet
Showroom med bakomliggande lager och kontor
Kontakta oss gärna för mer information eller för att boka visning. Fastigheten erbjuder en komplett och flexibel lösning med mycket goda expansionsmöjligheter.
Locus Advice är ett fastighetskonsultbolag med fokus på kommersiella fastigheter och lokaler.
Vi arbetar med
Lokaluthyrning
Lokalöverlåtelser
Sökuppdrag på spotmarknaden eller tenant rep
Transaktionsrådgivning
Värdering
Projektledning
Vi representerar även hyresgäster som vill ha hjälp med sitt lokalsökande.
Genom etablerade samarbeten med både stora och små fastighetsägare har vi tillgång till ett stort utbud av lokaler utöver vad vi kan marknadsföra i vår egen regi. Via dessa samarbeten kan vi med stor sannolikhet hjälpa er hitta den lokal ni söker efter.























