Produktionslokal, Gränsbovägen 8, Södertälje
- 1 854 m²
- 2024-05-01
Lager- och kontorslokal med starkt logistiskt läge
Om lokalen
- Lokaltyper
- Produktionslokal / Lagerlokal
- Total yta
- 1 854 m²
- Adress
- Gränsbovägen 8
- Område
- Södertälje
- Kommun
- Södertälje kommun
- Byggår
- 1983
- Hiss
- Nej
- Tillträde
- 2024-05-01
- Objektsnummer
- 41975702
Beskrivning
Lager- och kontorslokal med starkt logistiskt läge – Gränsbovägen 8, Södertälje
Välkommen till denna moderna lager- och kontorslokal om ca 1 854 kvm i ett väletablerat industriområde på Gränsbovägen 8 i Södertälje. Lokalen erbjuder flexibla ytor för både produktion, lager och kontor, med direkt access via lastportar och närhet till E4:an – perfekt för verksamheter med höga krav på logistik och tillgänglighet.
Ytor och planlösning
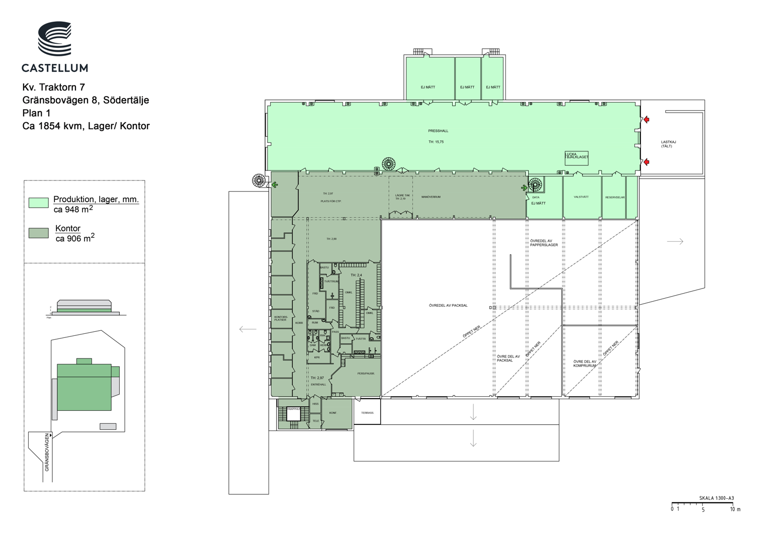
Enligt ritningen omfattar lokalen totalt ca 1 854 kvm fördelat på:
Produktion/lager: ca 948 kvm – rymlig yta med god takhöjd, perfekt för effektiv logistik eller lätt industri
Kontor: ca 906 kvm – moderna kontorsutrymmen med flera rum, pausutrymmen och gemensamma ytor för personal
Layouten möjliggör en naturlig koppling mellan lager och kontor, vilket ger effektiv intern logistik och en smidig arbetsmiljö för verksamheten.
Egenskaper och specifikationer
Access: via lastkaj och lastportar med direkt åtkomst till produktionsytorna
Takhöjd: 15,75 meter
Elkapacitet: kraftfull 3 000 A, lämpad för energikrävande verksamheter
Bärighet: robust golvkonstruktion med hög lasttålighet
Ljus och miljö: ljusa ytor och rationell planlösning för en trivsam arbetsmiljö
Läge och omgivning
Gränsbovägen 8 har ett mycket strategiskt läge, endast några minuter från E4:an, vilket ger utmärkta förbindelser till både Stockholm, Mälardalen och södra Sverige.
Området präglas av stabila industriverksamheter och god infrastruktur. Bland grannarna finns välkända företag som Ramirent, Swedol och Autoexperten.
Sammanfattning
Detta är en flexibel och funktionell lokal som kombinerar moderna kontorsytor med effektiv lager- och produktionskapacitet. Tack vare det utmärkta läget, de smidiga lastmöjligheterna och den starka tekniska infrastrukturen är detta en attraktiv lösning för företag som vill växa i Södertälje.
Välkommen på visning – upptäck möjligheterna på Gränsbovägen 8!
Omgivning
Fastigheten Traktorn 7 är en industri/lager lokal belägen i Södertälje. Södertälje är beläget mellan Strängnäs, Nyköping och Stockholm. Alltså enkelt att pendla från många olika håll
Kommunikationer
Kommunikationen i Södertälje består av både buss och pendeltåg. Det tar ca 45 minuter från Stockholm city. Inte långt från fastigheten svänger man av från Södertäljevägen. Vilket gör det snabbt och smidigt för de som vill köra bil.
Bussar nr 760 ,761 går från Södertälje och smidigt tar dig till Moraberg.
Planlösning
Lager med produktionsyta och möjlighet att hyra yta med pentry och kontorsrum.
Övrigt
Fastigheten är en industrifastighet belägen strax utanför Södertälje i Moraberg. Den ligger nära E4:an med bra skyltläge och är en singel fastighet med inhägnat markområde.
Bärighet:
Terassbjälklag: 10 kN/kvm
Golv i ställverk: 5 kN/kvm
Golv i presshall: 15 kN/kvm
Golv i manöverrum: 5 kN/kvm (tillika kontorsytorna och omklädningsrum på plan 1)
Golv i fläktrum: 5 kN/kvm
Byggnadsbeskrivning
Stomme: Stål och betong
Fasader: Tegel och puts
Yttertak: Papp
Uppvärmning: Luftburen fjärrvärme
Ventilation: Mekanisk till- och frånluft med värmeåtervinning och kyla







