Kontor, fleminggatan 38, Kungsholmen, Stockholm
- 300 m²
- Omgående
Rymligt kontor med generös entré, flera rum och entresolplan. Perfekt för både kontor och mötesytor, med tillgång till innergård och centralt läge.
Om lokalen
- Lokaltyp
- Kontor
- Total yta
- 300 m²
- Adress
- fleminggatan 38
- Område
- Kungsholmen
- Kommun
- Stockholms kommun
- Hiss
- Nej
- Tillträde
- Omgående
- Objektsnummer
- 41991439
Beskrivning
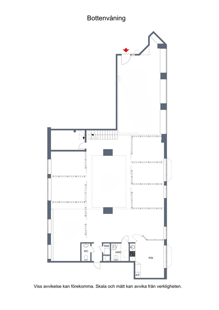
Lokalen välkommnar med en rymlig entré som lämpar sig perfekt för mottagning, lounge eller en inspirerande välkomstyta för besökare. Den öppna mittsektionen med extra takhöjd på cirka 4,9 meter skapar en ljus och luftig känsla, vilket ger rummet en imponerande rymd och ett inspirerande arbetsklimat. Från hallen vetter kontorsrummen ut mot den öppna ytan, vilket ger en känsla av transparens och samhörighet utan att kompromissa med arbetsro.
Lokalen är utrustad med entresolplan som erbjuder flexibla ytor för arbetsplatser, möten eller social yta. Nedre plan rymmer totalt 8 kontors-, telefon- eller mötesrum, och entresolplanen ger ytterligare 3 rum perfekt för att skapa separata arbetsområden eller mötesplatser.
Köket är fullt utrustat och tillsammans med praktiska ytor för förvaring och service erbjuder lokalen en funktionell arbetsmiljö som underlättar både vardagliga rutiner och större projekt. Hyresgäster får dessutom tillgång till fastighetens innergård en lugn och trivsam plats för lunch, paus eller korta möten utomhus, vilket är en uppskattad tillgång i ett centralt läge.
Lokalen är på 300 kvadratmeter och kombinerar generösa ytor med smarta lösningar som gör det enkelt att anpassa arbetsmiljön efter företagets behov. Den centrala placeringen nära Fridhemsplan innebär mycket goda kommunikationer med både tunnelbana och bussar, samtidigt som området erbjuder ett brett utbud av restauranger, caféer och service.
Välkommen att boka in dig på en visning!
Kommunikationer
Fridhemsplans tunnelbana ligger en minut bort från lokalen, här går tunnelbannans gröna och blåa linje. Stockholm central och Odenplan för byte till pendeltåg når du på två minuter.













