Lagerlokal, Flöjelbergsgatan 8, Mölndal
- 750–900 m²
Lagerlokal – Flöjelbergsgatan 8 B, Mölndal Välkommen till en modern och flexibel lager- och produktionslokal om cirka 750 kvm i hjärtat av Mölndal
Om lokalen
- Lokaltyp
- Lagerlokal
- Total yta
- 750–900 m²
- Adress
- Flöjelbergsgatan 8
- Område
- Mölndal
- Kommun
- Mölndals kommun
- Hiss
- Nej
- Objektsnummer
- 41993146
Beskrivning
Lagerlokal – Flöjelbergsgatan 8 B, Mölndal
Välkommen till en modern och flexibel lager- och produktionslokal om cirka 750 kvm i hjärtat av Mölndal! Här får du en yteffektiv lokal med egen lastbrygga, perfekt för företag som värdesätter smidig logistik och praktisk tillgänglighet.
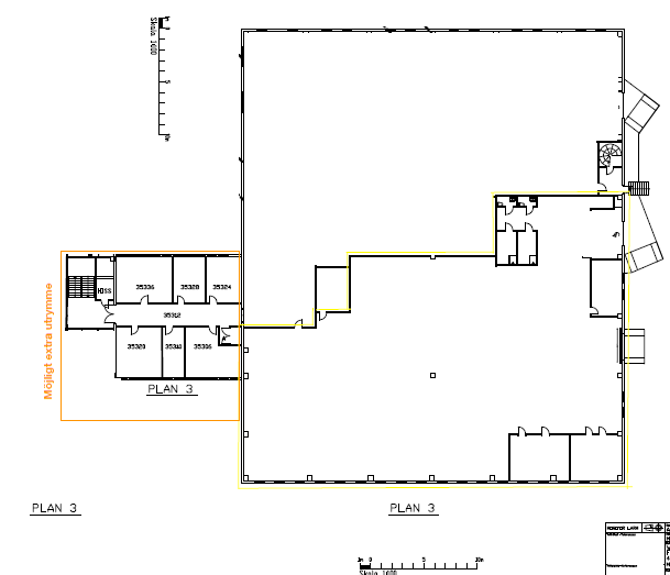
Lokalen har en öppen och ljus planlösning med gott om utrymme för både produktion och lager. Här finns dessutom kontorsrum integrerade i lokalen, vilket skapar en smidig arbetsmiljö där administration och verksamhet möts på samma plats. För den som önskar en tydligare uppdelning finns möjligheten att öppna upp väggen och skapa en separat kontorsdel om cirka 150 kvm – markerad med orange på planritningen.
Läget på Flöjelbergsgatan är både praktiskt och attraktivt, med goda parkeringsmöjligheter för både personal och besökare. Närheten till E6:an gör att du snabbt och smidigt når centrala Göteborg såväl som övriga regionen.
Har ni frågor eller vill ni boka tid för en visning? Välkommen att kontakta oss på 031-3504900 eller hej@loqalo.se!






