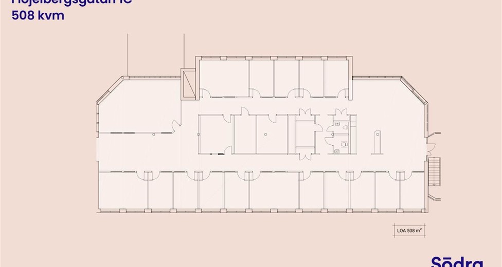
Kontor, Flöjelbergsgatan 1C, Lackarebäck, Mölndal
- 508 m²
- Enligt överenskommelse
Högt upp i huset med fantastiskt ljusinsläpp.
Om lokalen
- Lokaltyp
- Kontor
- Total yta
- 508 m²
- Adress
- Flöjelbergsgatan 1C
- Område
- Lackarebäck
- Kommun
- Mölndals kommun
- Hiss
- Ja
- Våning
- 4 av 6
- Tillträde
- Enligt överenskommelse
- Objektsnummer
- 41992554
Beskrivning
Högt upp i huset med fantastiskt ljusinsläpp.
Vi kan nu erbjuda 495 kvm kontor i fint skick som ligger på våning 4/6 med utsikt över stora delar av Göteborg. Lokalen går såklart att anpassa utifrån era behov om ni exempelvis önskar en mer öppen planlösning. Takhöjden är väldigt bra och flertalet ljusinsläpp gör att lokalerna upplevs som rymliga och lättmöblerade. Längs med ena långsidan har vi nyligen anlagt en helt ny innergård. Se längre ner för fler bilder.
Omgivning
Fina naturomgivningar en kort promenad bort.
Kommunikationer
Busshållplatsen ligger precis intill fastigheten och bussen avgår var 10:e minut.
Parkering
Goda möjligheter till parkeringsplatser både i p-hus och utvändigt.
Service
Vi har två lunchrestauranger, en konferensanläggning och en reception med ett serviceutbud.
Vägbeskrivning
Se www.hitta.se
Skyltläge
Mycket bra skyltläge ut mot E6:an.
Närliggande företag
VGR, IF, Papyrus, Qrtech
Karta
Bilder på lokalen
Flöjelbergsgatan 1C Flöjelbergsgatan 1C Flöjelbergsgatan 1C Flöjelbergsgatan 1C Flöjelbergsgatan 1C Flöjelbergsgatan 1C Flöjelbergsgatan 1C Flöjelbergsgatan 1C Flöjelbergsgatan 1C Flöjelbergsgatan 1C Flöjelbergsgatan 1C Flöjelbergsgatan 1C Flöjelbergsgatan 1C Flöjelbergsgatan 1C Flöjelbergsgatan 1C Flöjelbergsgatan 1C
















