Kontor, Eriksbergsgatan 8, Östermalm, Stockholm
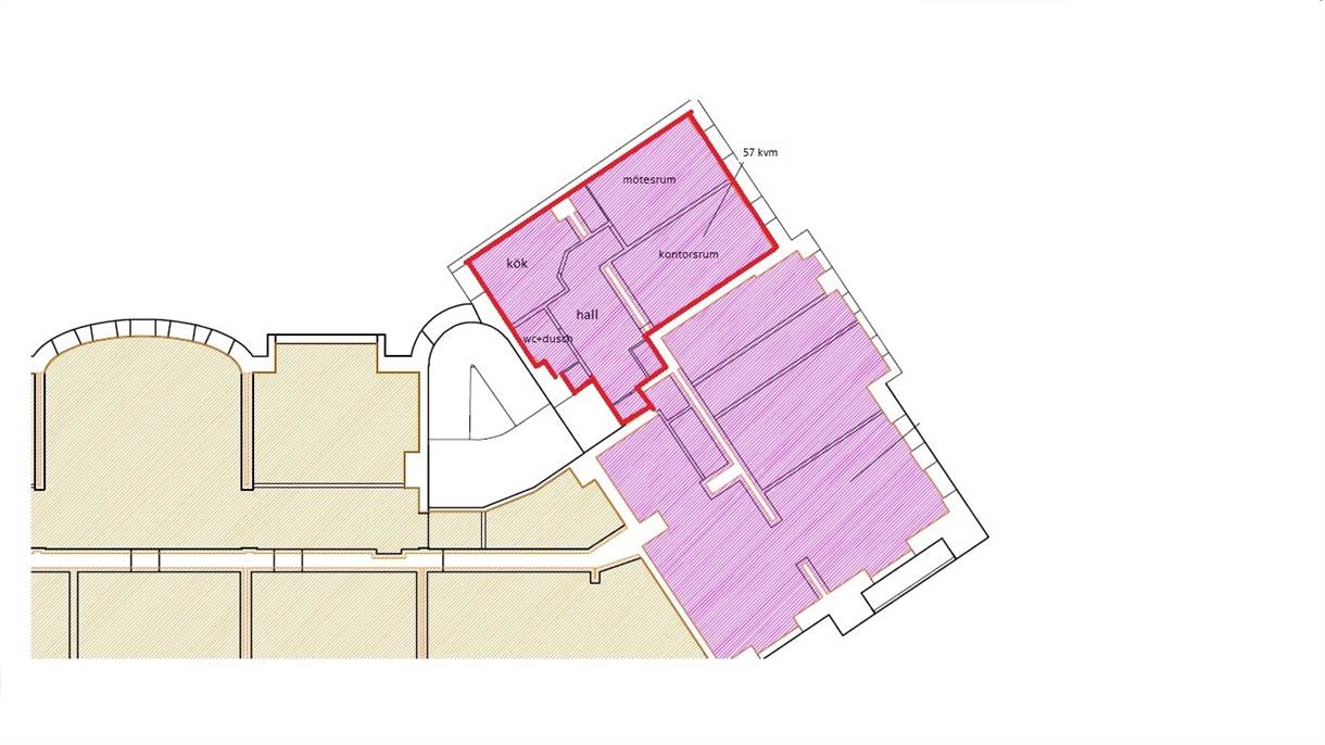
- 57 m²
- 3 rum
- 2026-01-01
I bästa läge på Östermalm med Stureplan och Humlegården runt hörnet. Nu finns fint litet kontor med två rum, stort kök, wc med dusch, högt i tak, terrass högst upp!
Om lokalen
- Lokaltyp
- Kontor
- Total yta
- 57 m²
- Adress
- Eriksbergsgatan 8
- Område
- Östermalm
- Kommun
- Stockholms kommun
- Våning
- 4 av 6
- Antal rum
- 3
- Tillträde
- 2026-01-01
- Objektsnummer
- 41994009
Beskrivning
Vill du bli granne med flera spännande, kreativa små och stora entreprenörsföretag, attraktiv gata och fastighet.
Lokalen är i fint skick med trägolv, vitmålade väggar, nytt kök med diskmaskin, samt wc med dusch.
Lokalens yta är fördelat på två kontorsrum varav ett lämpar sig som mötesrum för 4-6 pers samt det andra för 4 kontorsplatser.
Övrig yta består av kök med matdel, wc med dusch samt två förråd.
Lokalen har en generös takhöjd om ca 3,2 vilket ger en härlig rymd vilket gör att ytorna känns väldigt luftiga.
I fastigheten finns även välbesökta gymmet SPR-Athletefactory som servar fantastiska hälsosamma sallader, bowls, smoothies, bars m.m Kolla gärna in på https://www.spr-athletefactory.com/
Fastigheten har en härlig gemensam terrass som är belägen högst upp i huset och som får nyttjas av alla hyresgäster på baksidan finns även en stor innergård.
Kommunikationer
Belägen i ett av Stockholms mest attraktiva lägen har Fastigheten
mycket bra kommunikationer. Ett par av SLs busslinjer trafikerar i fastighetens närhet med buss 2 utmed Birger Jarlsgatan
och buss 1 utmed Kungsgatan och Sturegatan. Tunnelbanestationerna
Östermalmstorg, Rådmansgatan och Hötorget ligger inom några hundra meters avstånd.
Med bil nås E4:an och E:18 enkelt genom att följa Birger Jarlsgatan
norrut mot Roslagstull.
Service
På Östermalm finns det mesta man kan önska sig. Med Stureplan på kort promenad avstånd finns ett brett serviceutbud för alla smaklökar, restauranger, caféer, butiker allt nödvändig service. Invid fastigheten huserar mysiga café Saturnus.
Närliggande företag
Hoss Agency, Awelin, We are Era, SPR Gym, Mileway, Sesamy, Moko, The Talent Company, Colony Agency Production AB, Augment Partners, AK Security Group.
Övrigt
På Birger Jarlsgatan endast på 3min promenad finns Brunkebergs garage för den som vill hyra garage-plats.







