Kontor, Energiplan 3, Gällivare
- 160–335 m²
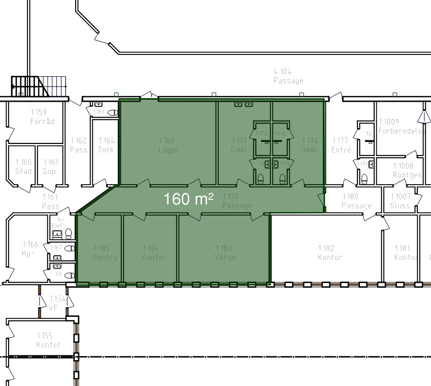
Lokal med kontor, dubbla omklädningsrum, generösa garage- och lagerytor
Om lokalen
- Lokaltyper
- Kontor / Lagerlokal
- Total yta
- 160–335 m²
- Adress
- Energiplan 3
- Kommun
- Gällivare kommun
- Objektsnummer
- 41992156
Beskrivning
Nu finns möjligheten att hyra en lokal lämplig för kontor med tillhörande omklädningsrum, lager- och garageytor. Lokalen kan anpassas utifrån verksamhetens behov.
Det finns möjlighet att arrendera utomhusytor och parkeringsplatser i nära anslutning till lokalen.
Omgivning
Övriga hyresgäster i byggnaden är Lantmäteriet, Ahlsell, Autotech, Fastighetssnabben, Sveaskog m.fl.
Service
Fastigheten är belägen ca 800 meter från Malmhedens handels- och industriområde där ni hittar matvarutbutiker, bilaffär, maskinuthyrning m.m.







