Drivhjulsvägen 42, Hägersten, Stockholm
Catena AB
Annons max596 m²
Hyra: Ej angiven
Tillträde: Enligt överenskommelse
Nyrenoverade kontorslokaler i två plan i Hägersten! Kontorsrum, landskap, konferensrum & pentry – på perfekt läge.
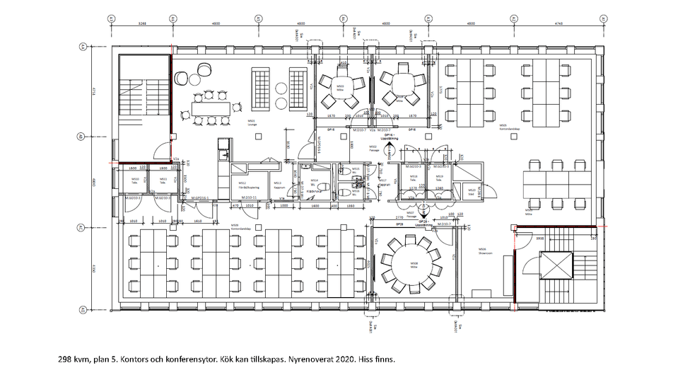
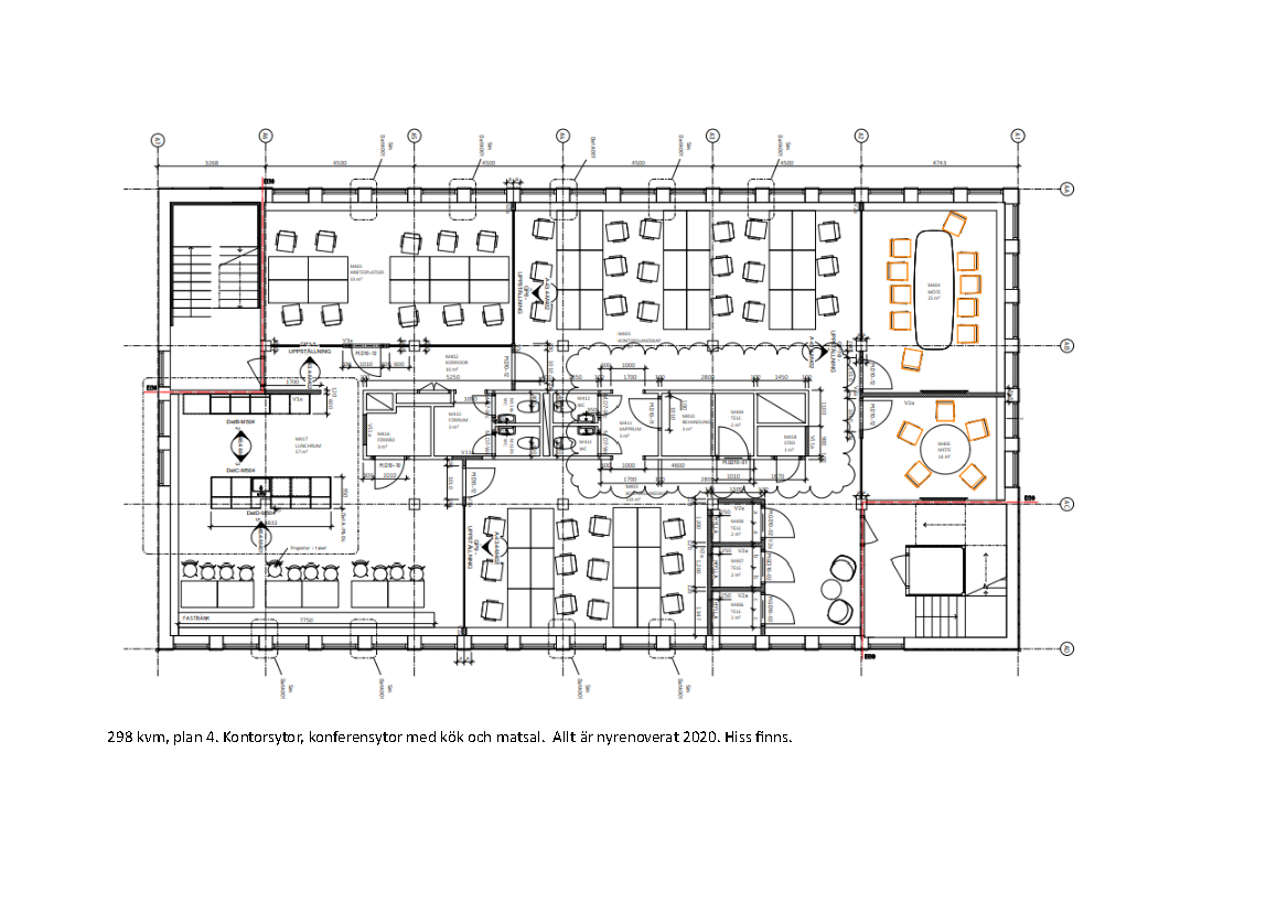
Här har du möjligheten att hyra moderna och renoverade kontorslokaler i två plan, där varje våningsplan är 298 kvm. Du kan välja att hyra antingen båda planen tillsammans eller ett av dem separat. Lokalerna innehåller kontorsrum, öppna kontorslandskap, konferensrum samt pentry och matsal. Samtliga ytor renoverades 2020 och erbjuder en fräsch och modern arbetsmiljö.
Dokument
Om lokalen
- Kommun
- Stockholms kommun
- Tillträde
- Enligt överenskommelse
- Objektsnummer
- 41987366
Kommunikationer
Närhet till buss och pendeltågsförbindelser.















