Björns Trädgårdsgränd 1, Södermalm/Inom tull, Stockholm
New Property AB
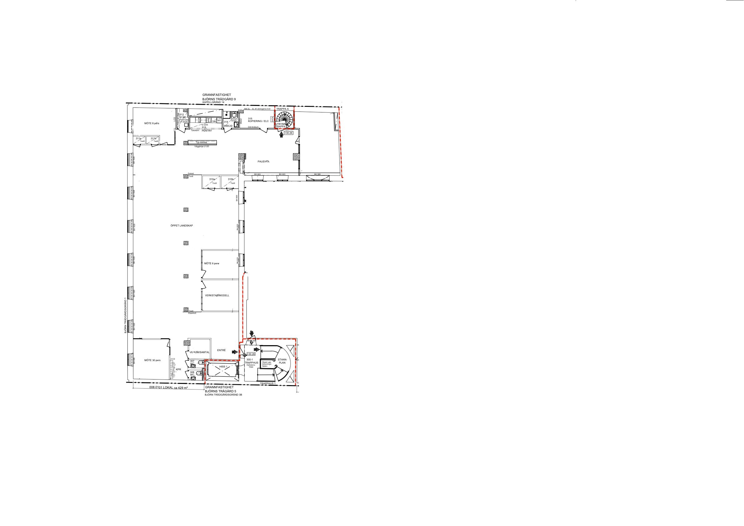
Annons max429 m²
Hyra: Ej angiven
Tillträde: Enligt ök
Öppen kontorslokal med industrikaraktär vid Medborgarplatsen!
Ljus och karaktärsfull lokal mitt på Söder!
På Björns trädgårdsgränd 1 finns nu möjlighet att hyra en rymlig och ljus lokal om ca 428 kvm, belägen 2 trappor upp. Lokalen har en härlig industrikänsla med högt i tak, stora fönsterpartier och en öppen planlösning som gör den flexibel för flera typer av verksamheter – perfekt för kontor, showroom, studio eller kreativt bolag.
-Ca 429 kvm, 2 tr
-Öppen och lättmöblerad planlösning.
-Högt i tak och industrikaraktär
-3 WC varav en större med dusch.
-Generöst med ljusinsläpp från två väderstreck
-Fönster mot både Björns Trädgård och lugn innergård
Fastigheten & gården
Trevlig innergård som kan nyttjas av hyresgäster
Cykelparkering på innergården.
Tillträde
Från 1/3 eller enligt överenskommelse.
Avtalstid
3 år.
Varmt välkommen på visning!
Lokaltyper
Typ: Kontor
Minsta storlek: 429 m²
Största storlek: 429 m²
Takhöjd: 300
Byggnad
Byggår: 1929
Egenskaper
Villkor lokal
Tillträde: Enligt ök
Omgivning
Närservice: All tänkbar service i direkt närhet runt Medborgarplatsen.
Kommunikation
T-bana: Grön linje från Medborgarplatsen, ca 100 meter från entrén
Annonsinformation
Publicerad: 2025-11-12
Objektsnummer: 41993689
Karta
Bilder på lokalen
10ccc61c-a843-4f42-99de-227f53c97069.jpg 238f8ab4-86ed-4f6d-9e83-47fdd1d990fe.JPG 0109ce7a-fa26-491d-97cb-110ce50cf68b.JPG 40f15493-3620-4b85-b457-5a4fdce52ec0.JPG c4e1244b-a5c4-4195-bf0b-36de74307f5f.JPG 1cd29cc9-b162-4241-bbe5-e55cc8026967.JPG 694d4419-148b-4f99-857b-990023fcd6ac.JPG 916ba22a-3ddc-4751-90f0-91e38f2e70ee.JPG 952dc080-9d6e-4071-aaea-24ed1721a530.JPG 525745c8-8fe0-4aa4-93bd-a9c523298738.JPG f84961ac-3a74-41dd-8c03-1dc3c85255ee.JPG Ritning, 429 kvm.jpg













