Björksgatan 10, Väster, Eskilstuna
Tunafastigheter i Eskilstuna AB
Annons plus125 m²
Hyra: Ej angiven
Tillträde: Enligt överenskommelse
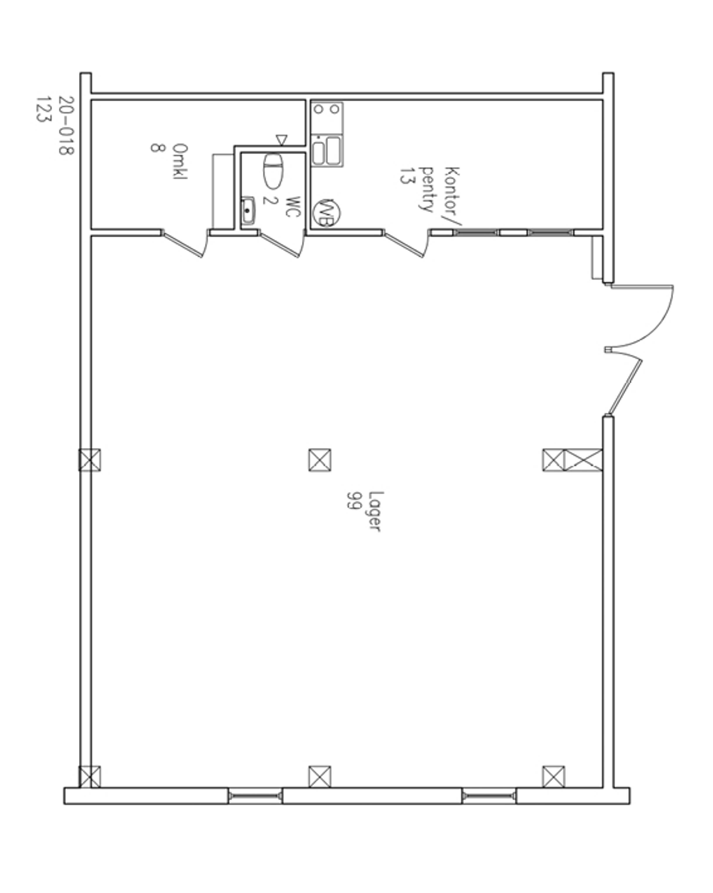
Lager-/verkstadslokal om 125 kvm med industriportar
Centralt belägen lokal om cirka 125 kvadratmeter i ett kommersiellt kluster på Väster. Lokalen ligger på bekvämt gångavstånd till bussstationer, matbutiker och restauranger.
Lokalen inleds med en port om 2,5 x 2,5 m som öppnar upp till en rymlig yta om cirka 99 kvm. Nuvarande hyresgäst har valt att dela in ytan (se bilder). Utöver detta finns en personaldel med pentry samt dusch och toalett.
Takhöjden i den öppna ytan varierar mellan ca 2,95 och 3,4 meter, vilket skapar en luftig och trivsam arbetsmiljö. Lokalen är även utrustad med utsug.
Gemensam parkering finns i anslutning till fastigheten.
Sammanfattning
• 2,5 x 2,5 m port
• 99 kvm öppen yta som lämpar sig för lager/verkstad
• Pentry, omklädningsrum och WC
• Utsug
• Gemensam parkering
Dokument
Lokaltyper
Typ: Lagerlokal, Verkstad
Minsta storlek: 125 m²
Största storlek: 125 m²
Fastighet
Fastighetsbeteckning: Valnöten 4
Byggnad
Byggår: 1937
Uppvärmning: Fjärrvärme
Egenskaper
Villkor lokal
Tillträde: Enligt överenskommelse
Omgivning
Gångavstånd till närliggande promenadstråk längs Eskilstunaån samt grönområden som Rinmansparken (800 m) och Rothoffsparken (1 km). Munktellområdet 1 km.
Parkeringsmöjlighet: Gemensam parkering för hyresgäster finns i anslutning till fastigheten. Kommunala parkeringsplatser finns också i närheten.
Närservice: Member24, Actic, Padel Sports Club, Willys, Apoteksgruppen, Konditori Amarant med flera.
Företag i närheten: Certego, Elektroskandia, Colorama, Snabbgross m.fl.
Kommunikation
Cirka 1 kilometers promenad till centralstationen (Ungefär 10 minuter). Busshållplats finns cirka 50 meter från lokalen.
Annonsinformation
Publicerad: 2026-04-10
Objektsnummer: 41998053












