Kontor, Vallgatan 9, Solna
- 1 065 m²
Välkommen till Vallgatan 9 i Solna. Här finns 275-1065 kvm stor ljus och trevlig kontorslokal.
| Lokaltyp | Kontor |
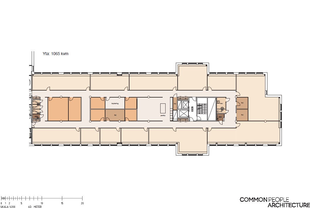
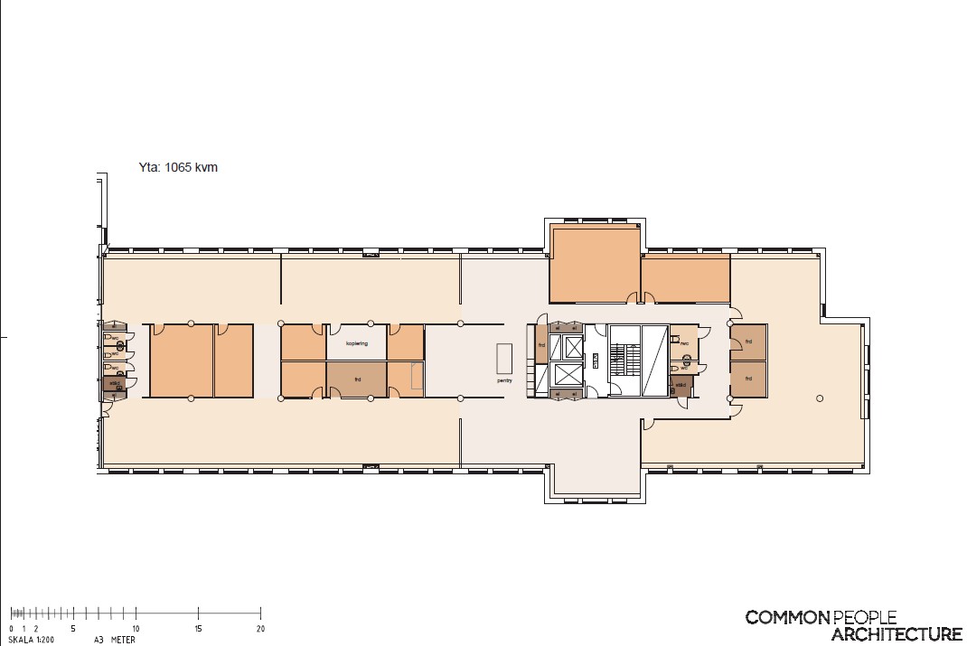
| Total yta | 1 065 m² |
| Adress | Vallgatan 9 |
| Område | Solna |
| Kommun | Solna kommun |
| Hiss | Ja |
| Våning | 3 |
| Objektsnummer | 41993186 |
| Lokalitet | Solna, Solna |
Beskrivning
Trivsam och ljus lokal med vita väggar och ett genomgående textilmatta på golv. I lokalen finns flertalet arbetsrum, konferensrum samt toalett och RWC.
De flesta arbetsrum och konferensrum har textilmatta på golven som skapar en trivsam akustik i rummet. Lokalen nås via hiss eller trappor. I byggnaden finns det både hotell- och konferensmöjligheter och en uppskattad lunchrestaurang.
Lokalens totala yta är 1065 kvm men går att dela av i flear mindre lokaler, se alternativa planlösningar som mäter 728 kvm respektive 275 kvm.
Befintlig rumsindelning går också att ändra så att lokalen får öppen planlösning.
Omgivning
Järva Krog är en småskalig kvartersstad med plats för både företag och boende. Här blandas av ett brett restaurangutbud, service, butiker, bostäder och kontor intill ett stort grönområde.
Förgyll lunchrasten med en promenad, lunch eller picknick i Ulriksdals naturreservat som du når på endast några få minuters promenad.
Kommunikationer
Pendeltåg
Ulriksdal station ligger nära Järva Krog och trafikeras av Pendeltåg linje 40 och 41.
Tågen går frekvent och tar ca 10 minuter till Stockholm City.
Busslinjer
Flera busslinjer passerar Järva Krog, vilket gör området lättillgängligt från olika delar av Stockholm:
176, 177, 526, 690, 516 Regionala och lokala bussar som förbinder Järva Krog med bl.a. Kista, Danderyd, Sundbyberg och Cityterminalen.
Flygbussarna Direktförbindelse till Arlanda flygplats.
FlixBus Långdistansbussar till andra städer i Sverige och Europa.
Tunnelbana
Närmaste tunnelbanestationer är Solna centrum och Näckrosen, båda på Blå linjen.
Dessa ligger ca 10 15 minuters promenad eller en kort bussresa från Järva Krog
Gång- och cykelvägar
Området är välförsett med gångvägar och cykelbanor, vilket gör det enkelt att ta sig till fots eller med cykel från närliggande områden som Arenastaden, Solna Business Park och Råsunda.
Parkering
Betalparkering och möjlighet att hyra parkering i närområdet utomhus.
P-garage på andra sidan av gatan samt Circle K med supercharger för den som behöver ladda sin elbil.
Service
Restauranger & Caféer
Pocket in the Park ca 300 meter.
Café Marrakech ca 350 meter.
Restauranger i Solna Business Park ca 300 500 meter.
Shopping & Dagligvaror
ICA Maxi Solna ca 450 meter.
Solna Centrum ca 900 meter (utanför 500 m-radien, men nära).
Träning & Hälsa
Nordic Wellness Solna Business Park ca 400 meter.
F9 Solna Business Park ca 450 meter.
TeamFysiq AB ca 350 meter.
Vård & Hälsa
Mama Mia Solna ca 400 meter.
To Care Vårdcentral ca 450 meter.
Övrig Service
Nayanour (skomakare, nyckelservice, kemtvätt) ca 300 meter.
Bravida (elservice) ca 450 meter.
Regus (kontorshotell) ca 400 meter.
Postnord (postservice) ca 450 meter.
Hotell & Boende
Solna Park & Hotel Utgångspunkt.
Maude s Hotel Solna Business Park ca 400 meter.
Best Western Solna Business Park ca 450 meter.