Kontor, Gamla Brogatan 26, City, Stockholm
- 204 m²
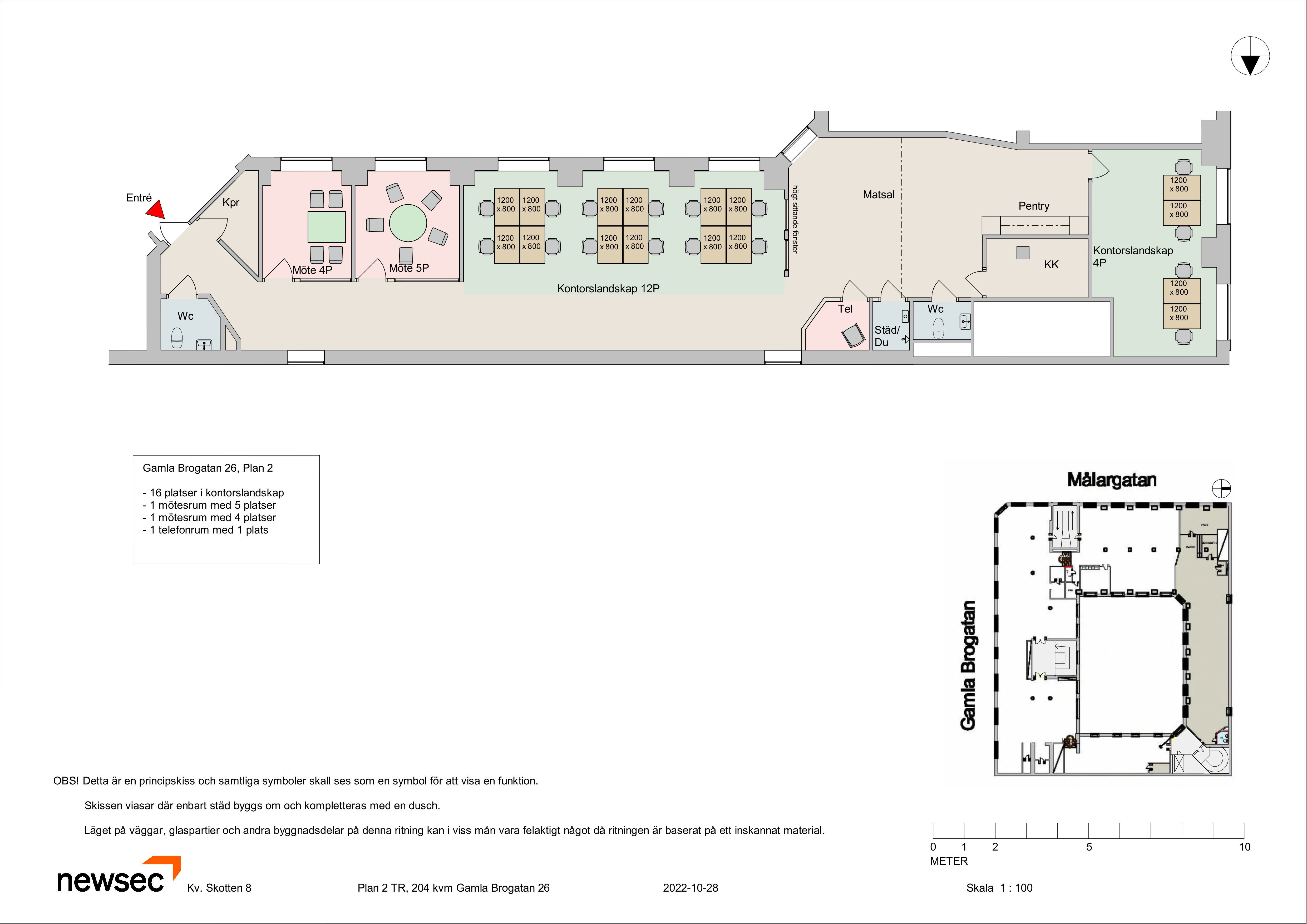
Om lokalen
- Lokaltyp
- Kontor
- Total yta
- 204 m²
- Adress
- Gamla Brogatan 26
- Område
- City
- Kommun
- Stockholms kommun
- Objektsnummer
- 41994273
Beskrivning
Modern kontorslokal med i en representativ fastighet och ett mycket bra cityläge vid Hötorget, Centralstation och Drottninggatans puls. Lokalen är i mycket gott skick och i genomgående ljusa kulörer. Planlösningen består av ett flertal kontor och mötesrum samt en öppen yta, telefonrum, pentry och två wc. Trevlig innergård med planteringar och uteplatser för intag av fika och luncher. Tillträde enligt ö k.
Hyra ca 125 000 kr/mån ex skatt
Ytan 204 kvm
Nextor Group AB
jorgen@nextor.se













