Kontor, Barnhusgatan 22, Norrmalm, Stockholm
- 235 m²
- Enligt överenskommelse
Fint kontor om 235 kvm på Barnhusgatan 22, perfekt läge vid Norra Bantorget med citypulsen nära till hands
Om lokalen
- Lokaltyp
- Kontor
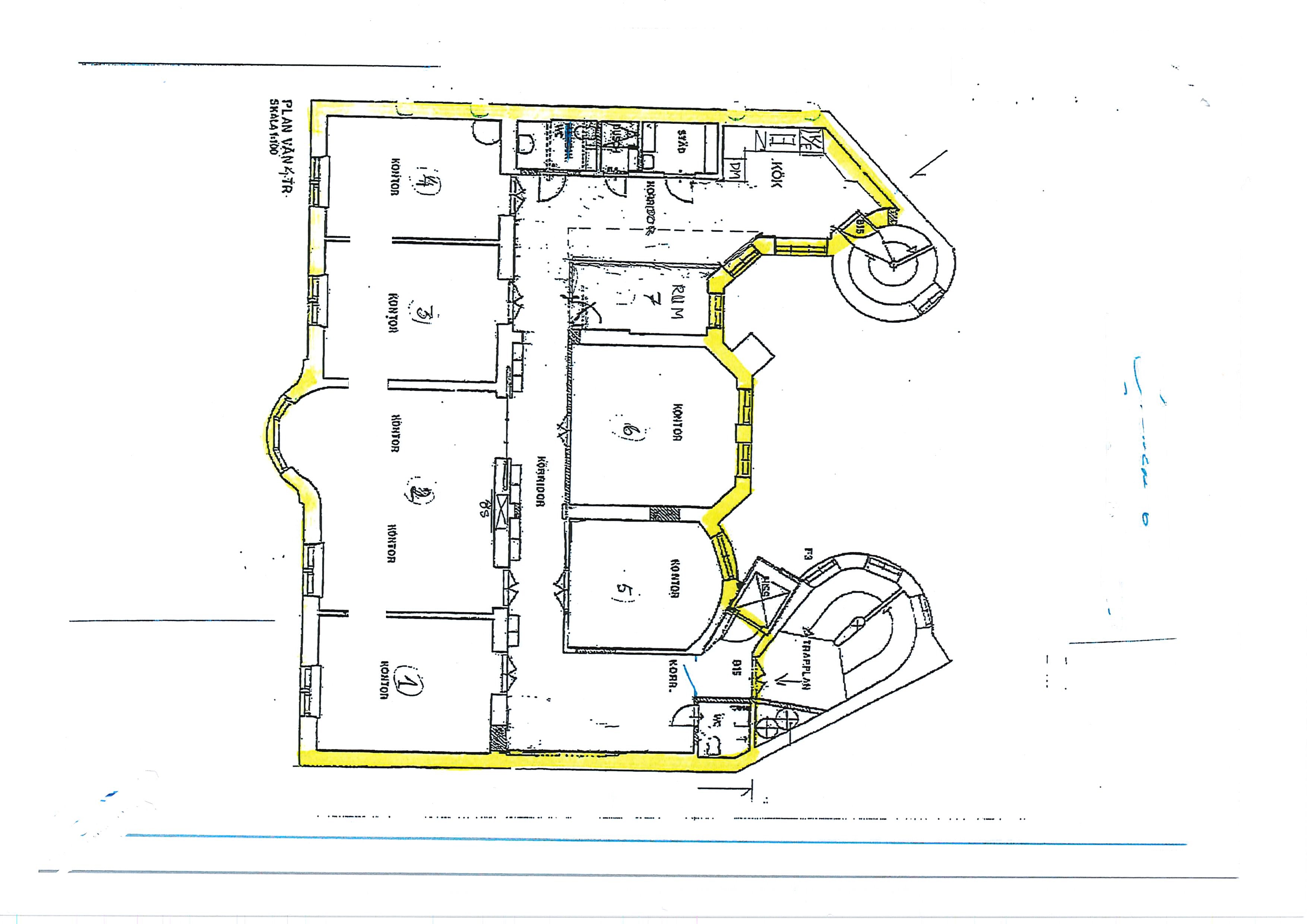
- Total yta
- 235 m²
- Adress
- Barnhusgatan 22
- Område
- Norrmalm
- Kommun
- Stockholms kommun
- Hiss
- Ja
- Våning
- 4
- Tillträde
- Enligt överenskommelse
- Objektsnummer
- 41996940
Beskrivning
Varmt välkommen till Barnhusgatan 22 och denna mycket fina kontorslokal belägen fyra trappor upp i fastigheten!
Här erbjuds en elegant och representativ kontorslokal i vacker sekelskiftesstil. Lokalen präglas av generös takhöjd, tidstypiska detaljer och en genomgående hög standard.
De stora fönsterpartierna ger ett fantastiskt ljusinsläpp och bjuder på fri utsikt mot Norra Bantorgets grönskande park.
Lokalen erbjuder bland annat:
-En välplanerad planlösning med en bra mix av rum i olika storlekar
-Rymligt och fullt utrustat pentry med plats för matbord
-Vackra trägolv genomgående, med fiskbensparkett i flera rum
-Tre st WC varav en med dusch
-Mindre förrådsutrymme i lokalen
Lokalen helrenoverades för några år sedan och håller ett mycket gott skick.
Varmt välkommen att kontakta oss för mer information och/eller för att boka en personlig visning!
Omgivning
Lokalen ligger på trivasam adress vid Norra Bantorget. Här har du bland annat Centralstationen och Arlanda Express på bekvämt promenadavstånd samt föertalet trevliga restauranger.
Kommunikationer
Nära Centralstationen med tillgång till tåg, buss, t-bana och Arlanda Express. Närmaste T-bana är Hötorget och/eller T-Centralen.
Service
Stor utbud av butiker och resturanger inom promenadavstånd.
Vid Norra Bantorget har du en stor kongresshall, goda parkeringsmöjligheter samt Clarion Hotel Sign.
Gott om träningsmöjligheter på bl.a. Centralbadet m.fl. för dig som vill träna på lunchrasten.
Karta
Bilder på lokalen
Barnhusgatan 22 Barnhusgatan 22 Barnhusgatan 22 Barnhusgatan 22 Barnhusgatan 22 Barnhusgatan 22 Barnhusgatan 22 Barnhusgatan 22 Barnhusgatan 22 Barnhusgatan 22 Barnhusgatan 22 Barnhusgatan 22 Barnhusgatan 22 Barnhusgatan 22 Barnhusgatan 22 Barnhusgatan 22 Barnhusgatan 22 Barnhusgatan 22 Barnhusgatan 22 Barnhusgatan 22 Barnhusgatan 22 Barnhusgatan 22 Barnhusgatan 22 Barnhusgatan 22 Barnhusgatan 22 Barnhusgatan 22 Barnhusgatan 22 Barnhusgatan 22 Barnhusgatan 22 Barnhusgatan 22 Barnhusgatan 22 Barnhusgatan 22 Barnhusgatan 22 Barnhusgatan 22




































