Kontor, Svangatan 2 B, Olskroken, Göteborg
- 322 m²
- 2025-01-01
Unik kontorslokal i Pellerins Margarinfabrik i charmiga Olskroken
Om lokalen
- Lokaltyp
- Kontor
- Total yta
- 322 m²
- Adress
- Svangatan 2 B
- Område
- Olskroken
- Kommun
- Göteborgs kommun
- Hiss
- Ja
- Våning
- 2
- Tillträde
- 2025-01-01
- Objektsnummer
- 41992740
Beskrivning
Välkommen till en karaktärsfull kontorslokal belägen i anrika Pellerins Margarinfabrik, mitt i hjärtat av Olskroken – ett område med både historia och stark utveckling.
Lokalen är belägen på våning två med hiss och erbjuder en blandad planlösning med både öppna ytor och rum i varierande storlek. Den generösa takhöjden, de vackra pelarna och de välvda fönstren ger rummet en unik karaktär och ett ljusinsläpp utöver det vanliga – perfekt för den som söker en inspirerande miljö med industriell känsla.
Lokalen är i behov av renovering vilket ger nästa hyresgäst en fantastisk möjlighet att vara med och påverka både layout och ytskikt efter egna behov och önskemål. Här finns chansen att skapa något helt unikt i en historisk byggnad med själ och personlighet.
Välkommen att kontakta oss för mer info och visning!
Omgivning
Ligger i ett bostadsområde nära E20 och nära kommunikationer.
Kommunikationer
Goda. Gångavstånd till Redbergsplatsen där ett flertal buss- och spårvagnslinjer passerar. Följande spårvagsnlinjer passar fastigheten 4, 6, 7, 9, 11.
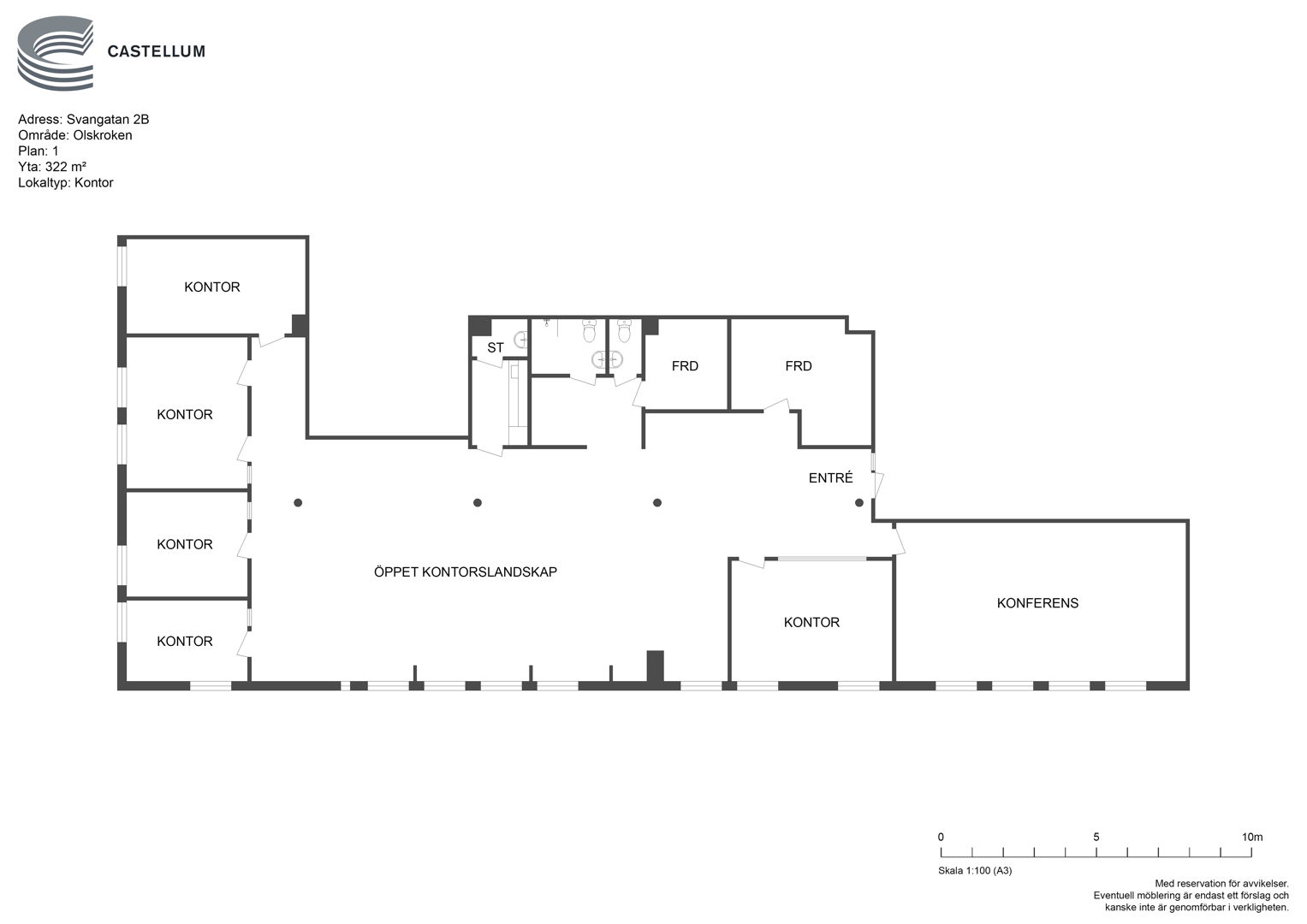
Planlösning
Lokalen har en blandad planlösning med både öppna ytor och enskilda rum. Den generösa takhöjden i kombination med lokalens unika utformning ger en luftig och flexibel känsla. Eftersom lokalen är i behov av renovering finns möjlighet att påverka layouten för att skapa en skräddarsydd lösning.
Parkering
Garage och p-platser finns att hyra.
Service
Gångavstånd till Olskrokstorget med all tänkbar service.
Övrigt
Gammal anrik fastighet, Pellerins Margarinfabrik, som ligger alldeles intill E20. Fastigheten består av 2 äldre delar samt en nyare tillbyggd. P-platser och garage finns att hyra i fastigheten.












