Kontor, Industrivägen 55, Sävedalen, Partille
- 309 m²
Funktionell kontorslokal med lager
Om lokalen
- Lokaltyper
- Kontor / Lagerlokal
- Total yta
- 309 m²
- Adress
- Industrivägen 55
- Område
- Sävedalen
- Kommun
- Partille kommun
- Tillgänglighet
- Enligt överenskommelse
- Objektsnummer
- 41992469
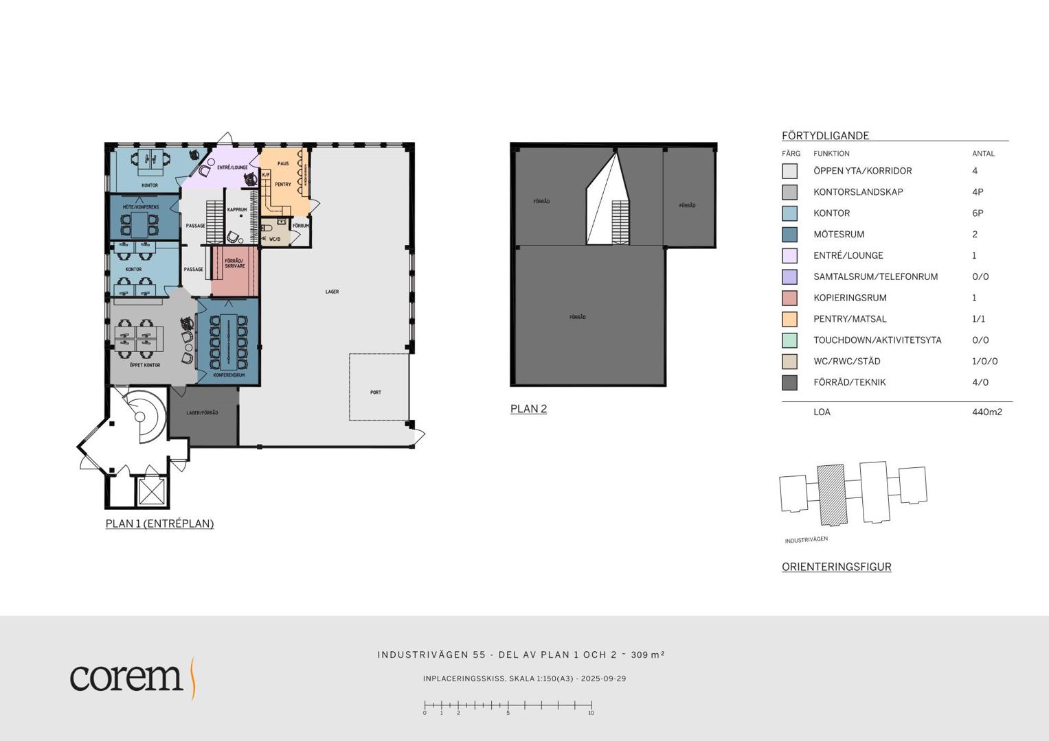
Beskrivning
Välkommen till en modern och välplanerad lokal på Industrivägen 55. Här erbjuds en flexibel arbetsmiljö som kombinerar kontorsfunktioner med lager och personalutrymmen – perfekt för verksamheter med både administrativa och logistiska behov. Du arbetar i ett strategiskt läge, nära motorleder och goda kommunikationer.
På entréplanet återfinns flera konferensrum, cellkontor, öppet kontor, lounge och pentry. Lagerutrymmet utgör cirka 145 m² och här finns en stor markport som möjliggör smidig varumottagning och transporter. Entresolen kompletterar med personalutrymmen och extra yta.
Kontakta oss gärna för mer information eller för att boka en visning.
Omgivning
Sävedalen ligger i Partille kommun strax utanför Göteborg. Du har nära till butiker, lunchrestauranger och kaféer. Allum köpcenter med generösa öppettider ligger bara några minuter bort med bil. I närområdet finns också fina grönområden och bra kommunikationer.
Parkering
Goda parkeringsmöjligheter finns kring fastigheten och i närområdet.












