Verkstad, Backa bergögata 7, Backa, Hisings backa
- 220 m²
- Enligt överenskommelse
Flexibel kontors- och lagerlokal med markport i Backa
Om lokalen
- Lokaltyper
- Verkstad / Kontor / Lagerlokal / Övrig lokal
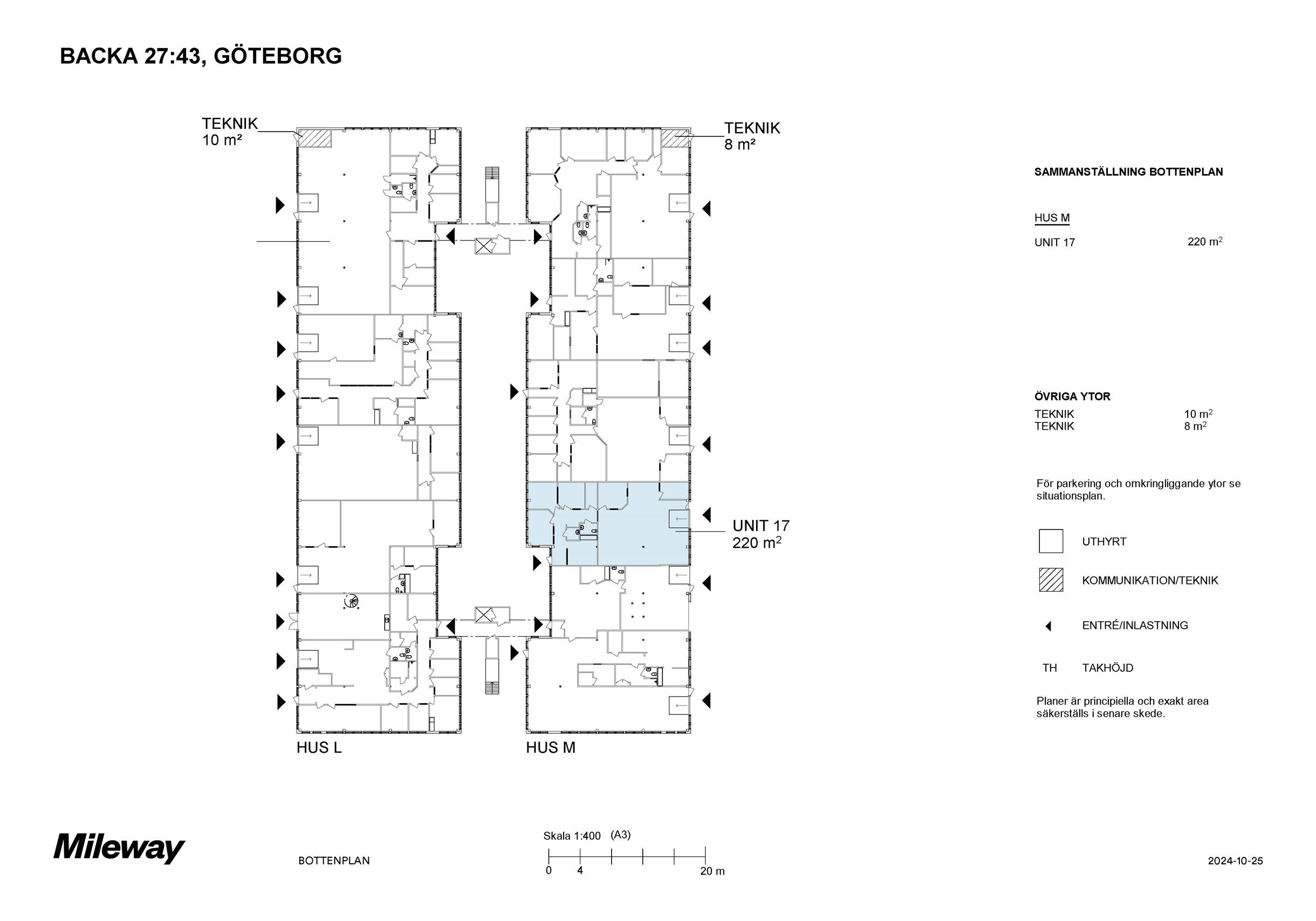
- Total yta
- 220 m²
- Adress
- Backa bergögata 7
- Område
- Backa
- Kommun
- Göteborgs kommun
- Byggår
- 1990
- Våning
- 1
- Tillträde
- Enligt överenskommelse
- Objektsnummer
- 41993118
Beskrivning
Flexibel kontors- och lagerlokal med markport i Backa
Kombilokal om 220 kvm i en fräsch och välskött byggnad i Backa industriområde, cirka 7 minuter norr om centrala Göteborg med direkt anslutning till E6. Lokalen kombinerar moderna kontorsytor med praktisk lageryta.
Lokalen erbjuder en flexibel planlösning med kontorsrum i varierande storlek, konferensrum samt pentry/kök, pausyta, förråd och WC – allt i mycket gott skick. Den ljusa och öppna miljön lämpar sig väl för både kontorsverksamhet, showroom eller kundmottagning.
Lagerytan nås via markport och har en takhöjd på 2,8–3,5 meter. Här finns fiber, 63A elkapacitet och två 3-fasuttag, vilket ger goda förutsättningar för olika typer av verksamheter. Fri parkering med möjlighet till elbilsladdning finns direkt utanför byggnaden.
OmrådetBacka är ett väletablerat industri- och handelsområde med starkt skyltläge mot E6. Här finns ett brett serviceutbud i närliggande Stigs Center och Bäckebol Köpcenter med butiker, restauranger och service. Området har dessutom goda kollektivtrafikförbindelser till centrala Göteborg.
Kommunikationer
Goda kollektivtrafikförbindelser med buss till centrala Göteborg
Planlösning
Se bilder/PDF.
Parkering
Fri parkering
Service
Närhet till levande handelsplats kring Stigs Center och Bäckebol Köpcenter med ett brett serviceutbud av butiker, gym och restauranger
Vägbeskrivning
Direkt anslutning till E6
Närliggande företag
Volvo Car, Swedol, Dagab, PostNord, BGM Logistics AB och Budbee

















