Verkstad, Laholmsvägen 84, Larsfrid, Halmstad
- 189 m²
- Enligt överenskommelse
Lättillgänglig lagerlokal med markport finns att hyra på Laholmsvägen
Om lokalen
- Lokaltyper
- Verkstad / Kontor / Lagerlokal
- Total yta
- 189 m²
- Adress
- Laholmsvägen 84
- Område
- Larsfrid
- Kommun
- Halmstads kommun
- Byggår
- 1959
- Våning
- 1 av 1
- Tillträde
- Enligt överenskommelse
- Objektsnummer
- 41991657
Beskrivning
Lättillgänglig lagerlokal med markport finns att hyra på Laholmsvägen
Industri- och butiksfastighet med ledig lagerlokal om 189 kvm. Lokalen är belägen på markplan och har flera fönster som ger ett naturligt ljusinsläpp. Det finns en egen markport för smidig in och urlastning samt goda möjligheter för effektiv lagerhållning med en takhöjd på 4 meter. Faciliteter erbjuds i form av WC och pentry. Byggnaden består av ett plan med ett flertal butiker och industrilokaler. Det finns fri parkering i anslutning till lokalen.Industriområdet Larsfrid ligger endast 3 km söder om centrala Halmstad och utgör ett optimalt logistikläge i direkt anslutning till E6/E20, nära Halmstad hamn samt vid knutpunkten för riksväg 15, 25 och 26. Högskoleområdet erbjuder ett brett serviceutbud av butiker och restauranger. Det finns goda kollektivtrafikförbindelser med buss till centrala Halmstad.
Kommunikationer
Goda kollektivtrafikförbindelser med buss till centrala Halmstad
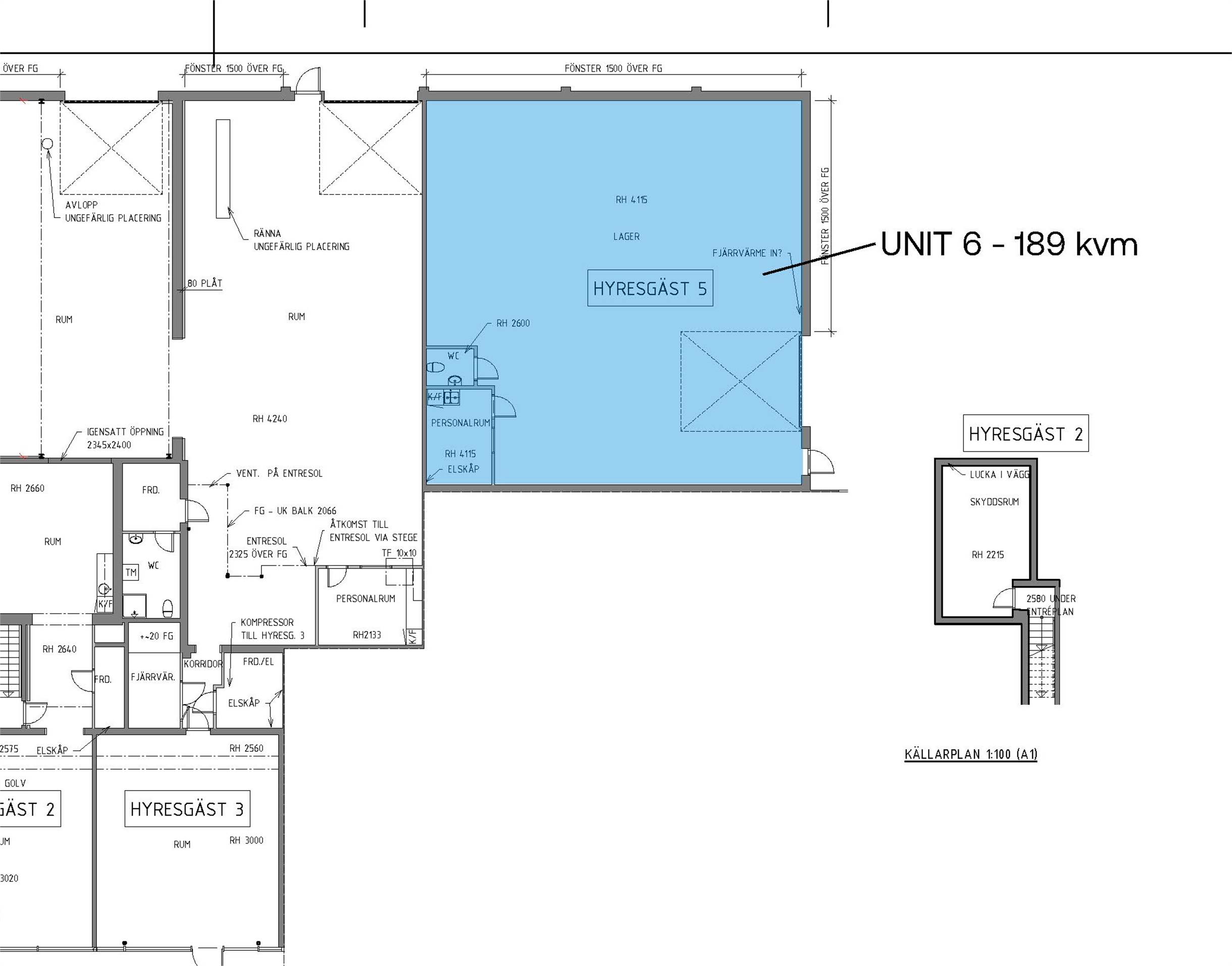
Planlösning
Finns bland bilder/som PDF.
Parkering
Fri parkering
Service
Högskoleområdet erbjuder ett brett serviceutbud av butiker och restauranger
Skyltläge
Bra exponering av skyltläge i ett levande och expansivt område
Närliggande företag
Lidl, Snabbgross, Derome, Biltema Logistics AB och Access Logistics











