Butikslokal, Viksjöplan 43, Viksjö, Järfälla
- 56 m²
- 14 000 kr/mån
Lokal i Viksjö Centrum, Järfälla. 56 kvm
Om lokalen
- Lokaltyper
- Butikslokal / Kontor / Övrig lokal
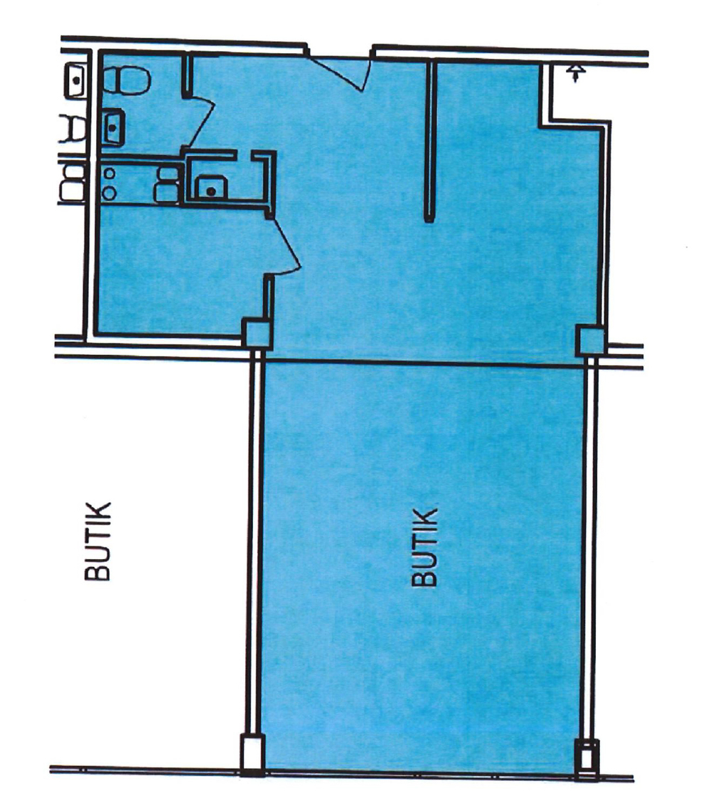
- Total yta
- 56 m²
- Adress
- Viksjöplan 43
- Område
- Viksjö
- Kommun
- Järfälla kommun
- Objektsnummer
- 41995457
- Hyra
-
14 000 kr/mån
3 000 kr/m²/år
Beskrivning
Nu finns möjlighet att hyra en trivsam lokal precis utanför en av entréerna till Viksjö Centrum i Järfälla!
Är möjligt att anpassa lokalen efter egen verksamhet.
Lokalen består idag av en inbjudande entré, behandlingsrum, pentry och wc
Tillgång till kundparkering precis intill centrumet.
Viksjö Centrum är ett levande närcentrum i Järfälla kommun – en av de snabbast växande kommunerna i Stockholms län. Här samsas småbutiker och service med starka varumärken som ICA, Systembolaget, Apotek Hjärtat, Apoteket, Folktandvården, Capio, Vivels Café och Arken Zoo.
En perfekt plats för verksamhet med närhet till både vardagsservice och flöde av besökare.
Ej lämplig för restaurang, café, frisör eller nagelverksamhet.
Kan ev hyras med lokalen bredvid.
Viksjö Centrum
Yta: ca 56 m²
Hyra: ca 14 ooo:- /mån ex moms
Fastighetsskatt tillkommer
Tillträde omgående eller enligt överenskommelse.
Hyresdeposition kommer begäras.
Se över var lokalen är belägen innan vi bokar visning.
Kontakta Michel Rydberg via mail för bokning av visning.
Nextor Group AB • michel@nextor.se













