Kontor, Trädgårdsgatan 5, Centrum, Jönköping
- 126 m²
- 2025-10-14
Trädgårdsgatan 5
Om lokalen
- Lokaltyp
- Kontor
- Total yta
- 126 m²
- Adress
- Trädgårdsgatan 5
- Område
- Centrum
- Kommun
- Jönköpings kommun
- Byggår
- 1963
- Hiss
- Ja
- Våning
- 8
- Tillträde
- 2025-10-14
- Objektsnummer
- 41946601
Beskrivning
Central kontorslokal högst upp i huset på våning 8. Här erbjuds ett modernt och fräscht kontor med utsikt över takåsarna i Jönköpings citykärna. Lokalen befinner sig i samma hus som bl.a Scandic och Glädje och är granne till SF Bio.
Dessutom nära till tåg & bussförbindelser samt det breda utbud av närservice som centrala Jönköping erbjuder.
Omgivning
Stadsdelen Väster har ett stort restaurang- och nöjesutbud. Shoppingmöjligheterna är goda med en stor variation av lokala småbutiker. Parkeringsmöjligheterna är goda med bl.a parkeringshuset Per Brahe.
Kommunikationer
På Väster ligger Resecentrum med tåg- och bussförbindelser. Stadsbussarna trafikerar V. Storgatan som för övrigt är en bilfri väg.
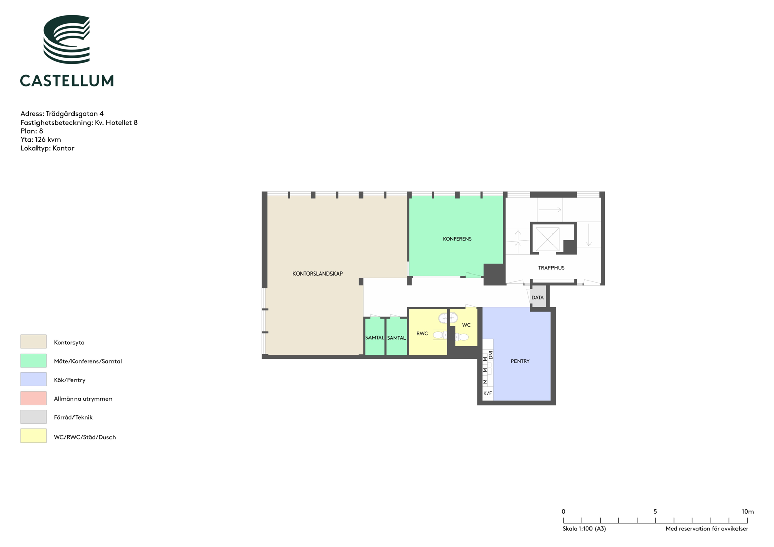
Planlösning
Kontoret lämpar sig väl för arbete i öppet landskap så som det är utformat idag. Kontorslandskapet inrymmer ca 10-12 arbetsplatser med anslutande mötesrum som tidigare varit två mindre samtalsrum. Ytterligare ett större konferensrum med plats för 10-12 personer finns att tillgå i lokalen. Wc & pentry finns i direkt anslutning till entrén.
Parkering
I garaget finns parkeringsplatser för husets hyresgäster att hyra. För hyrning av garageplats vänligen kontakta Malin Berglund på Castellum, tel 036-580 11 52. Utomhus finns allmän parkering med P-automat i anslutning till fastigheten.
Service
I närområdet finns all tänkbar service.
Övrigt
Centralt belägen fastighet uppförd under 1960-talet. Den uthyrningbara ytan uppgår till 19.242 kvm fördelat på åtta våningsplan.






