Rasåsen 157, Rasåsen, Sundsvall
Företag & Kommersiella fastigheter
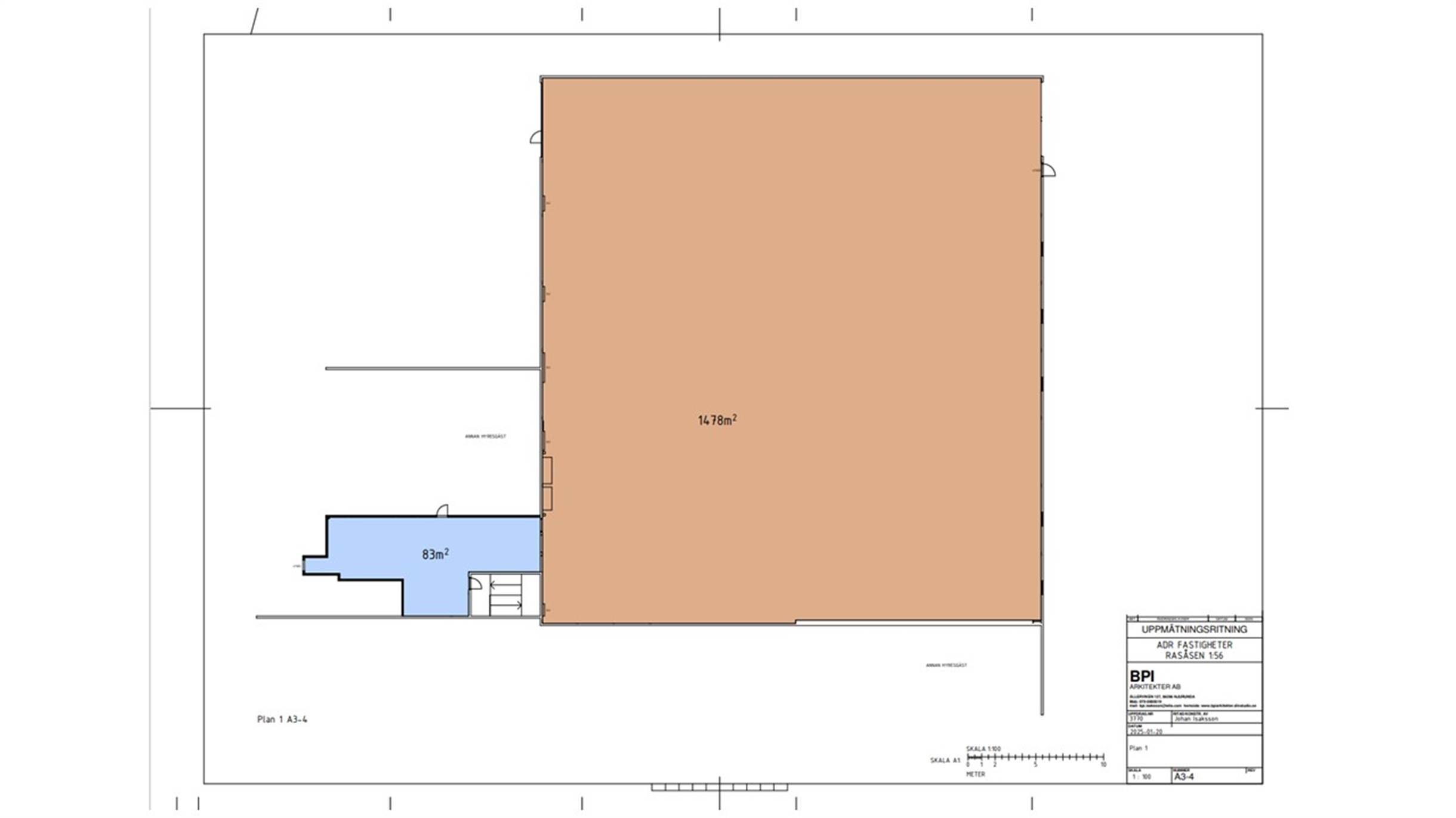
Annons plus1 500 m²
Hyra: Ej angiven
Tillträde: Enligt överenskommelse
Nu finns möjligheten att hyra en rymlig och yteffektiv lokal med uppställningsyta nära E14.
Nu finns möjligheten att hyra en rymlig och yteffektiv lokal nära E14.
Här finns en rymlig och yteffektiv lokal om ca 1 500 kvm med strategiskt läge i Rasåsen, nära E14. Till lokalen finns en uppställningsyta om ca 7200 kvm.
Lokalen erbjuder generös takhöjd som skapar utmärkta förutsättningar för produktion, lager, logistik och eller verkstads/industriverksamhet. Traverser finns - 4st, kapacitet 5ton - 21 ton.
I lokalen finns personalutrymmen i form av pentry, omkädning, wc, kontor.
Det finns bra rangerytor som underlättar transporter och logistikflöden, och vid behov kan fler portar installeras för att möta just er verksamhets behov.
Det här är en lokal med stor flexibilitet och potential för företag som vill etablera sig i Sundsvallsområdet med närhet till både stad och viktiga kommunikationsleder.
Fastigheten hyrs ut av en privat fastighetsägare som månar om sina hyresgäster.
Vänligen kontakta oss för mer information och visning.
Om lokalen
- Kommun
- Sundsvalls kommun
- Tillträde
- Enligt överenskommelse
- Objektsnummer
- 41993687
Planlösning
Stora öppna ytor på baksidan om lokalen finns uppställningsyta.
Närliggande företag
På samma fastighet finns Trioworld.







