Utbildningslokal, Rademachergatan 8, 1060, Eskilstuna
- 740–3 500 m²
- Enligt överenskommelse
Lediga lokaler om 740 - 3 500 kvm
Om lokalen
- Lokaltyper
- Utbildningslokal / Kontor / Kontorshotell / Vårdlokal
- Total yta
- 740–3 500 m²
- Adress
- Rademachergatan 8
- Område
- 1060
- Kommun
- Eskilstuna kommun
- Byggår
- 1976
- Hiss
- Ja
- Tillträde
- Enligt överenskommelse
- Objektsnummer
- 41994526
Beskrivning
Välkommen till möjligheternas kvarter!
Här erbjuder vi effektiva lösningar då lokalerna anpassas efter just er verksamhet. Planlösning och ytskikt skissas fram tillsammans med hyresgästen - vård- eller utbildningslokaler, kontorslandskap, enskilda kontor, konferensrum mm, vilka behov har ni? I Vörten 2 finns möjlighet att hyra lokaler från 740 - 3 500 kvm.
Varmgarage finns i fastigheten.
Flertalet utomhusparkeringar och parkeringshus är belägna inom gångavstånd i centrum.
Varmt välkomna för en dialog och om ni önskar boka en visning!
Omgivning
Fastigheten är belägen mitt i centrum i anslutning till Fristadstorget, gågatan med shopping samt flertalet restauranger alldeles intill.
Ett stort varmgarage finns under fastigheten.
Kommunikationer
Fastigheten ligger endast ett par hundra meter från tågstationen och Resecentrum med täta avgångar till bl a Stockholm, Västerås och Örebro. Ett par minuters promenad till de flesta lokala busslinjerna, vissa direkt utanför fastigheten.
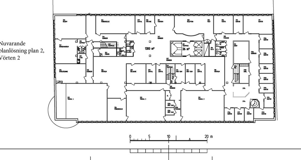
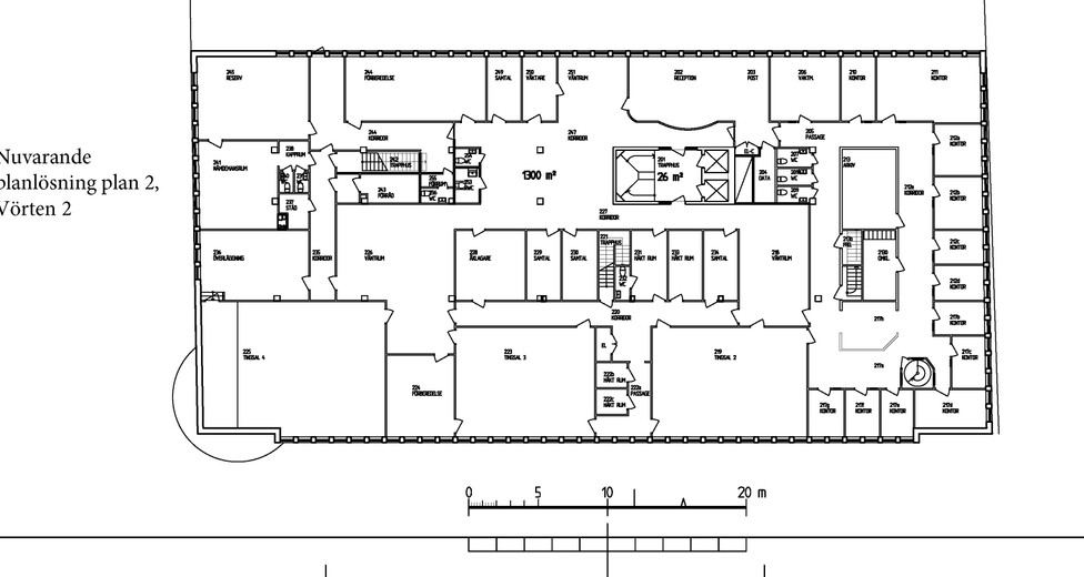
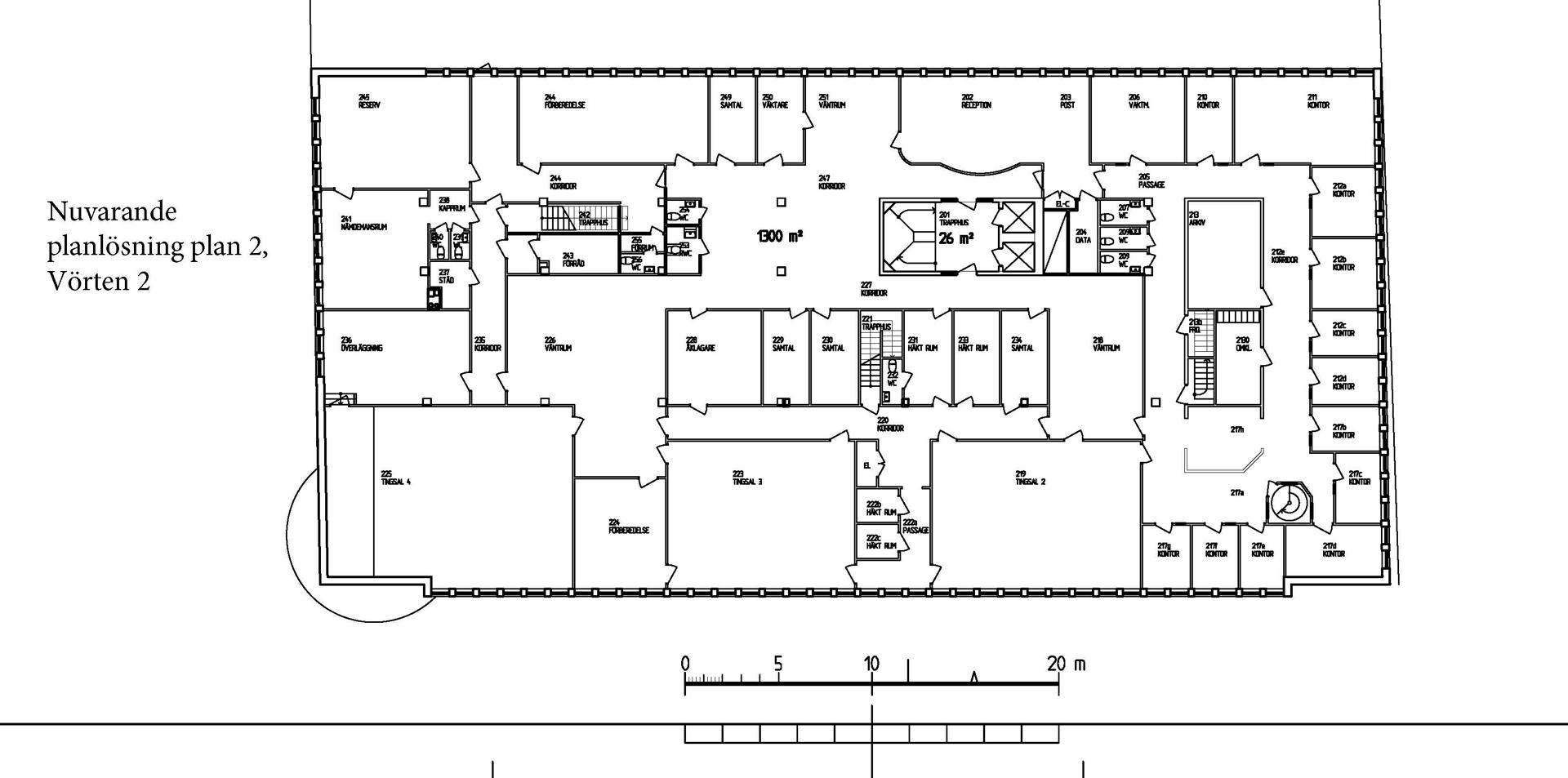
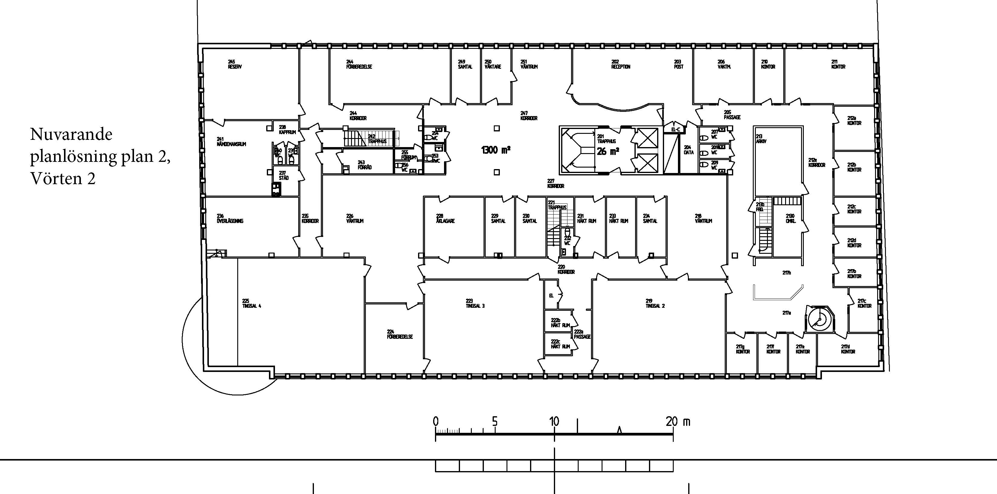
Planlösning
- Vård- eller utbildningslokaler
- Kontorslandskap
- Enskilda kontor
- Konferensrum
- Lunch-, fika- och övriga personalytor
Se planlösningar på lokaler från 740 - 3 500 kvm.
Parkering
Varmgarage finns under fastigheten. Flertalet utomhusparkeringar och parkeringshus är belägna inom gångavstånd i centrum.
Service
Vörten har ett mycket centralt läge med gångavstånd till tåg- och busstation, shopping, restauranger, gym, apotek, frisörer, hotell, Mälardalens Universitet mm. Ett stenkast från fina parker och promenadstråk runt Eskilstunaån. Till Munktellbadet och Volvo CE Arena är det en kort promenad på ca 8 minuter.
Stadsnät finns i fastigheten.
















