Verkstad, Marma 107, Marma Gård, Knivsta
- 400 m²
- 30 000 kr/mån
Rymlig industrilokal i lantlig miljö
Om lokalen
- Lokaltyper
- Verkstad / Kontor / Lagerlokal
- Total yta
- 400 m²
- Adress
- Marma 107
- Område
- Marma Gård
- Kommun
- Knivsta kommun
- Objektsnummer
- 41993609
- Hyra
-
30 000 kr/mån
900 kr/m²/år
Beskrivning
Rymlig industrilokal i lantlig miljö
Välkommen till Marma Gård Företagsby som ligger mellan Uppsala och Knivsta med ett trevligt naturläge. Nu finns möjligheten att hyra denna rymliga industri/lagerlokal om 400 kvm. Den stora lagerytan är luftig med totalt 11 meter till takfot, och i dagsläget är lokalen inredd med dubbla portar, dubbla omklädningsrum, wc samt rwc. Det finns dessutom ett entresol som kan nyttjas som lager eller kontor. Lokalen är modernt utrustad med golvvärme, FTX-ventilation, akustiktak samt LED-belysning.
I direkt anslutning till lokalen finns det gott om parkeringsplatser och uppställningsyta. Det finns även möjlighet att hyra en kontorsdel om ca 200 kvm eller separata kontorsrum. Marma Gård företagsby erbjuder även framtida hyresgäst att hyra konferensrum, festlokal med tillhörande storkök samt vinkällare.
Varmt välkommen att kontakta ansvarig mäklare för vidare information!
Omgivning
Marma Gård Företagsby ligger beläget mellan Knivsta och Uppsala. Avståndet till Uppsala är 13 km, till Arlanda 23 km och till Knivsta är det enbart 5 km. Här erbjuds moderna lokaler med teknik av hög kvalité i en grönskande och trivsam miljö. I dagsläget har företagsbyn flertalet hyresgäster. Flertalet av företaget är unga och nystartade, här finns möjligheten för företag att växa. Lokalen ligger i en vacker miljö men samtidigt med närhet till all form av service i Knivsta, Uppsala och Arlanda.
Kommunikationer
Det är bra bilvägar till Marma Gård företagsby och från E4:ans avfart vid Knivsta är det enbart 5 km. Det finns även bra bussförbindelser och närmsta busshållplats ligger enbart ca. 200 m från Marma Gård.
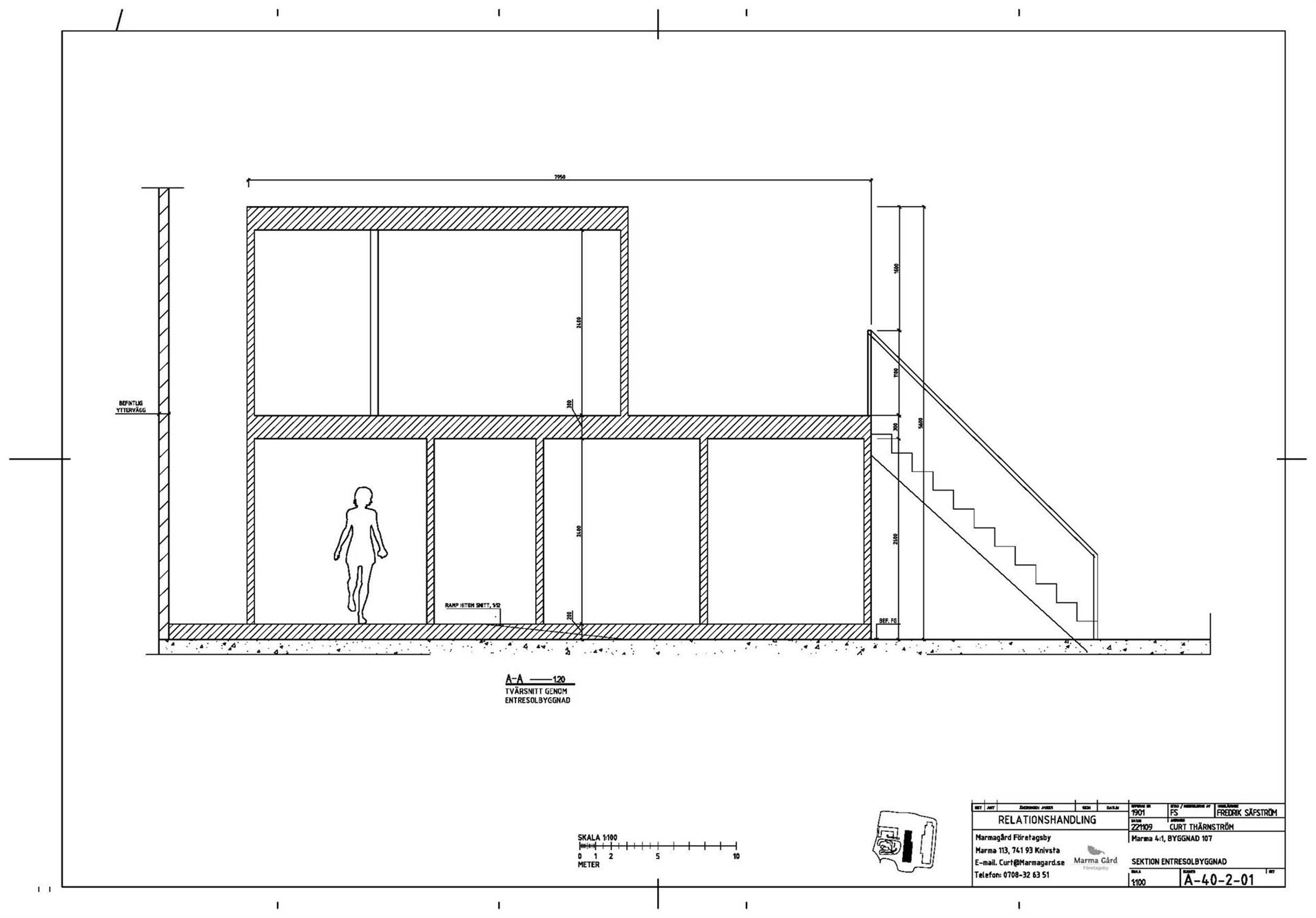
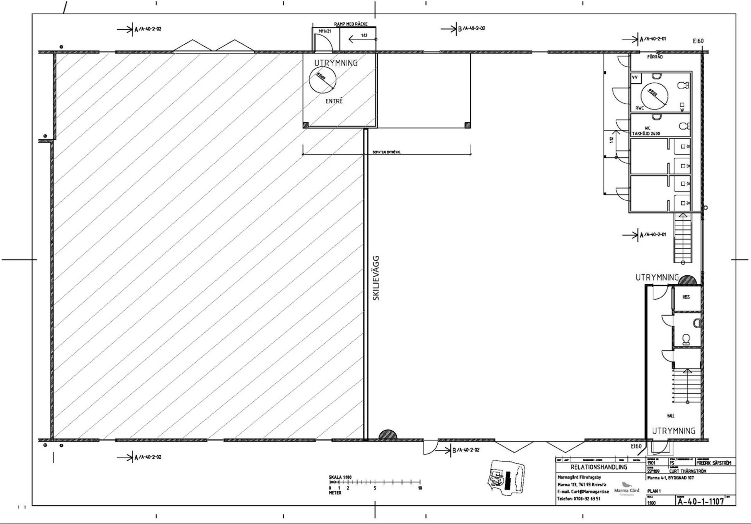
Planlösning
Lagerytan om 400 kvm har en öppen yta med generös takhöjd, totalt 11 meter till takfot, och i dagsläget är lokalen inredd med en dubbla portar och en entrédörr. I lokalen finns ett entresol som kan nyttjas som kontor eller förråd. I markplan finns även dubbla omklädningsrum, wc samt rwc. Lokalen är modernt utrustad med golvvärme, FTX-ventilation, akustiktak samt LED-belysning. Ytan är stor och öppen och går att dela av om behovet finns. Möjlighet finns att hyra ett kontor intill om ca 200 kvm eller separata kontorsrum.
Närliggande företag
Kontoret ligger beläget i en härlig och grön miljö men samtidigt med närhet till all form av service i Knivsta, Uppsala och Arlanda.






















