Butikslokal, Landsvägen 15, Sundbyberg
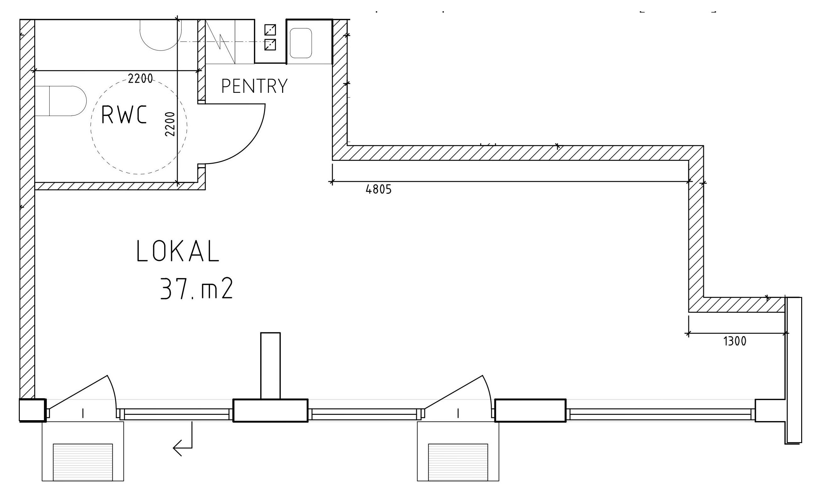
- 37 m²
Nyrenoverad lokal med perfekt skyltläge – din drömbutik väntar på Landsvägen!
Lokaltyp | Butikslokal |
Total yta | 37 m² |
Adress | Landsvägen 15 |
Område | Sundbyberg |
Kommun | Sundbybergs kommun |
Objektsnummer | 41992476 |
Lokalitet | Sundbyberg, Sundbyberg |
Beskrivning
Vår ljusa, nyrenoverade butikslokal på Landsvägen 15 är skräddarsydd för detaljhandel och står redo för inflyttning den 1 augusti. Med ett strategiskt skyltfönsterläge i en av Sundbybergs mest attraktiva handelsgator får du omedelbart tillgång till ett stort kundflöde och etablerade synergieffekter från kringliggande butiker och service.
Här är vad lokalen erbjuder:
✅ Färdigrenoverad från 15 oktober – Genomgående stilren inredning med nya ytskikt.
✅ Flexibel planlösning – Möjlighet till anpassning efter din butikskoncept.
✅ Stora skyltfönster – maximera synligheten och fånga förbipasserandes blick!
✅ Direkt ingång från gatan – Enkelt och smidigt för dina kunder att nå dig.
✅ Pentry och toalett – Praktiskt och funktionellt för din vardag.
Lokalen passar perfekt för butiksverksamhet, men möjligheterna är oändliga. Har du en unik affärsidé som saknas i området? Här får du chansen att skapa något speciellt och dra nytta av ett högt kundflöde.
Fler fördelar:
???? Perfekt läge – Nära kollektivtrafik och Sundbybergs Centrum med allt dess utbud.
???? Ingen övertagskostnad – Spara pengar och satsa på det som verkligen betyder något: din verksamhet!
⚠️ OBS: Lokalen är ej anpassad för café, restaurang eller bar.
Välkommen att kontakta oss för frågor eller att boka en visning.
Parkering
????️ Goda parkeringsmöjligheter i området